Fertighaus mit 100 qm
Entdecken Sie Fertighäuser bis 100 qm – schlüsselfertig oder als Ausbauhaus, in Holzrahmen- oder Holzständerbauweise. Profitieren Sie von flexiblen Grundrissen und einer reichen Auswahl an Fertighausanbietern, die Ihnen dabei helfen, Ihr Wunschhaus zu realisieren. Lassen Sie sich überraschen, wie vielseitig selbst ein kleines Fertighaus von 100 qm sein kann: Von der Gebäudeform über die Außengestaltung bis hin zur Innenausstattung gibt es zahlreiche Möglichkeiten, Ihr Fertighaus bis 100 qm individuell zu gestalten. Ein Haus dieser Größe gehört zwar zu den kleineren Fertighäusern, doch selbst auf dieser vergleichsweise begrenzten Fläche lassen sich durch eine durchdachte Grundrissplanung Ihre individuellen Wünsche und Lebensumstände optimal berücksichtigen.
Aber wer sollte sich Fertighäuser bis 100 qm anschauen? Wie plant man den Grundriss am besten? Welche Grundstücksfläche ist für kleine Häuser ausreichend? Wie hoch sind die durchschnittlichen Kosten für ein Haus, das 100 qm groß ist? Und welche Vorteile bringt der Bau eines kleineren Hauses mit sich, wenn man auf 100 qm Kosten einsparen will?
Entdecken Sie die besten Möglichkeiten, begrenzten Wohnraum optimal zu nutzen, bevor Sie Ihr kleines Fertighaus bauen. Wir helfen Ihnen bei der Suche nach dem passenden Anbieter. Schauen Sie sich in unserer Haussuche alle kleinen Fertighäuser bis 100 qm an – das perfekte Zuhause für Sie ist sicherlich dabei!
Fertighäuser bis 100 qm – für wen sind sie geeignet?
Ein Objekt, ob als Massiv- oder Fertighaus, mit 100 qm gewährt Einzelpersonen reichlich Raum, Paaren eine komfortable Wohnfläche und auch kleinen Familien genügend Platz. Ein reduzierter Wohnstil wird auch diejenigen ansprechen, die ein kleines Haus bauen möchten, aber nur bis zu 100 qm die Kosten für das Eigenheim stemmen wollen oder können. Ähnlich gestaltet sich die Situation, wenn Sie bereits über ein Grundstück verfügen, das aufgrund seiner Größe oder Form optimal mit einem überschaubaren Haus von 100 qm genutzt werden kann.
Die Wahl der Hausart ist ebenfalls eng mit der Eignung eines 100 qm großen Fertighauses als Ihr zukünftiges Zuhause verbunden. Haben Sie beispielsweise ein Kubushaus oder einen Bungalow ins Auge gefasst, können Sie von der besonders gut anpassbaren offenen Raumgestaltung oder dem zusätzlichen Platz durch ein Flachdach profitieren. Gerade beim Fertighaus mit 100 qm gilt wie bei seinen kleineren Verwandten: Eine sorgfältige Grundrissplanung ist das A und O – ein Thema, das wir im weiteren Verlauf noch genauer besprechen werden.
Wie hoch sind die Kosten für ein Fertighaus mit 100 qm?
Sie träumen von einem kompakten Eigenheim und fragen sich, welche Kosten bei einem Massiv- oder Fertighaus von 100 qm zu erwarten sind? Dabei spielen individuelle Ausstattungsmerkmale und der Grad der Fertigstellung eine entscheidende Rolle. In der Regel können Sie jedoch mit einem durchschnittlichen Preis von etwa 2.700 Euro pro Quadratmeter rechnen. Dies bedeutet, dass Sie für ein Fertighaus mit 100 qm Wohnfläche mindestens 270.000 Euro einplanen sollten – selbstverständlich können die Kosten nach oben variieren. Mit Eigenleistung können Sie den Quadratmeterpreis allerdings auch reduzieren: Häuser zum Selbstausbau starten bei etwa 1.800 Euro pro Quadratmeter, Bausatz-Fertighäuser sind bereits ab rund 1.300 Euro pro Quadratmeter erhältlich. Gerade auch im Fertighaus Sektor gibt es freudige Nachrichten: denn im Vergleich zum Vorjahr pendeln sich die Materialkosten für Holz gerade wieder ein.
Bitte beachten Sie, dass diese Preisangaben sich lediglich auf den Teil des Gebäudes oberhalb der Bodenplatte beziehen. Bei Ihrer Finanzplanung sollten Sie daher auch zusätzliche Kosten für Grundstück, Bodenplatte oder Keller, Baunebenkosten, gegebenenfalls Materialkosten für Rohbau, Innenausstattung und Technik sowie weitere relevante Kostenpunkte berücksichtigen. Eine detaillierte Auflistung aller Kosten finden Sie in unserem Artikel zu den Preisen von Fertighäusern.
Welche Vorteile hat ein Fertighaus mit 100 qm?
Kleine Fertighäuser sind eine praktische Wahl für Personen verschiedener Altersgruppen, darunter junge Menschen, die ihren ersten Haushalt gründen, sowie Personen mittleren oder höheren Alters, deren Familiengründungsphase abgeschlossen ist oder deren Kinder bereits ausgezogen sind. Ein kleines Fertighaus bedarf im Vergleich zu einem geräumigen Einfamilienhaus weniger Wartung und Instandhaltung.
Grundstückspreis: Ein Fertighaus bis zu 100 qm erfordert ein vergleichsweise kleineres Grundstück, wodurch Sie den Grundstückspreis erheblich senken können. Darüber hinaus reduzieren sich auch die regelmäßig zu entrichtende Grundsteuer und die beim Kauf anfallende Grunderwerbsteuer bei kleineren Grundstücken.
Hauspreis: Wie wir bereits erwähnt haben, sparen Sie beim Bau eines kleineren Hauses von 100 qm beträchtliche Kosten. Jeder darüber hinausgehende Quadratmeter wirkt sich auf den Gesamtpreis aus. Ein Fertighaus mit 100 qm Wohnfläche ist daher eine budgetschonende Option im Vergleich zu einem Neubau, der nur wenige Quadratmeter größer ist.
Betriebskosten: Nachdem Sie Ihr neues Eigenheim bezogen haben, werden Sie feststellen, dass die Heizkosten für ein 100-qm-Haus deutlich niedriger sind als für eine größere Immobilie.
Ideale Größe für einen Bungalow: Oftmals werden Fertighäuser mit 100 qm als ebenerdige Bungalows ausgeführt. Dies bietet eine Reihe von Vorteilen, wie barrierefreies Wohnen und gestalterische Freiheit, da tragende Wände für das Obergeschoss hier wegfallen.
Fertighaus mit 100 qm: Schlüsselfertig oder Selbstbau?
Wir haben bereits darauf hingewiesen, dass die Kosten eines Fertig- oder Massivhauses bis 100 qm je nach Ausbaustufe und Eigenleistung variieren. Je mehr Sie selbst zum Bauprozess beitragen, desto geringer wird der Hauspreis und damit der zu finanzierende Betrag. Allerdings sollten Sie bedenken, dass zusätzlich Kosten für Materialien und Technik entstehen, die Sie selbst tragen müssen. Ihre Arbeitskraft und vor allem Ihre Arbeitszeit ermöglichen nämlich Einsparungen bei den Handwerkskosten – nicht beim Haus an sich.
Kleinere Häuser mit einer Wohnfläche von bis zu 100 qm eignen sich aufgrund ihres relativ kalkulierbaren Umfangs besonders gut für den Selbst- oder Mitbau, vorausgesetzt, Sie verfügen über entsprechende praktische Kenntnisse:
Bei einem Ausbauhaus können Sie je nach handwerklichem Können und verfügbarer Zeit verschiedene Stufen der Eigenleistung beim Innenausbau übernehmen, von der Installation der Badausstattung bis hin zum Estrich und Boden.
Mit einem Bausatzhaus haben Sie die Möglichkeit, Ihre Baufertigkeiten noch mehr unter Beweis zu stellen, da Sie den gesamten Hausbau ab dem Rohbau selbst durchführen. Bei Ihrem Fertig- oder Massivhaus mit 100 qm Wohnfläche wird die Planung übernommen und Sie erhalten je nach Vertrag Baumaterialien für den Rohbau – weitere Services sind optional hinzubuchbar.
Die schlüsselfertige Ausführung ist die bequemste, aber oft auch teuerste Option für den Bau eines Hauses mit 100 qm. Dabei erhalten Sie von Ihrem Fertighausanbieter ein nahezu oder sogar vollständig fertiggestelltes Haus, je nachdem, was Sie vertraglich vereinbart haben.
Kleines Fertighaus schlüsselfertig
Fertighaus mit 100 qm als Ausbauhaus
Fertighaus klein als Bausatz
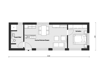
Grundrissgestaltung bei einem Fertighaus mit 100 qm
Ein intelligenter Grundriss ist nicht nur bei kleinen Fertighäusern bis 100 qm essentiell. Sie sollten den Grundriss Ihren aktuellen Bedürfnissen anpassen, aber auch potenzielle zukünftige Änderungen berücksichtigen. Für Familien mit Kindern bietet es sich an, mehrere separate Zimmer einzuplanen und dabei flexible Gipskartonwände zu verwenden, die sich später ohne viel Aufwand wieder entfernen oder umbauen lassen. Für Singles oder Paare ist ein offenes Raumkonzept geeigneter oder ein zusätzliches Zimmer wird gezielt bei der Planung berücksichtigt, sei es als Arbeitszimmer, späteres Kinderzimmer oder Gästezimmer.
Besonderes Augenmerk sollten Sie auf die Verlegung der Leitungen für Strom, Heizung und Wasser legen. Eine räumliche Nähe von Küche, WC und Badezimmer erleichtert und verbilligt das Verlegen der entsprechenden Leitungen. Wenn Sie einen Raum für verschiedene Zwecke nutzen möchten, benötigen Sie möglicherweise zusätzliche Steckdosen.
Tipps für ein geräumiges Wohngefühl in einem 100 qm Haus
Vermeiden Sie möglichst großflächige Dielen und Treppenbereiche und bevorzugen Sie eine offene, funktionale Gestaltung ohne Nischen, wie z.B. eine Wohnküche, deckenhohe Einbauschränke statt separater Vorratsräume und sowie Dachformen mit wenig oder keinen Schrägen wie Flach- oder Walmdach. Bodentiefe Fenster sind zwar teurer, lassen Ihr Zuhause aber größer erscheinen. Es kann auch sinnvoll sein, den Hauswirtschafts- und Technikraum im Souterrain zu planen, falls vorhanden.
Für eine vierköpfige Familie könnten Sie bei einem Massiv- oder Fertighaus mit 100 qm den Grundriss wie folgt aufgliedern:
Bei einer minimalistischen Raumorganisation würden Sie für einen offenen Wohn-Essbereich mit Küche etwa 40 qm einplanen, ein modernes Bad würde 10 qm voraussetzen, ein separates WC würde 4 qm benötigen, und ein Flur würde mindestens 5 qm ausmachen. Die Familie benötigt dann noch ein Elternschlafzimmer mit 16 qm und zwei Kinderzimmer mit jeweils 10,5 qm sowie einen Hauswirtschaftsraum von 3 qm.
Unser Tipp: Lassen Sie sich bei der Grundrissplanung Ihres Fertighauses mit 100 qm Wohnfläche von bewährten Entwürfen unserer Hausanbieter inspirieren.
Grundrisse für Fertighäuser mit 100 qm











































































