Fertighaus mit 150 qm
Fertighäuser mit 150 qm bieten viel Platz für verschiedene Grundriss- und Gestaltungswünsche. Gerade Einfamilienhäuser, gerne mit den klassischen anderthalb Geschossen, werden deswegen häufig in dieser Größenordnung geplant – aber auch große Bungalows mit 150 qm sind möglich. Die Kosten für solche Häuser können je nach Bauausführung variieren, vom günstigen Standardmodell bis hin zum individuell geplanten Luxusdomizil. Sowohl Fertighäuser als auch Massivhäuser mit 150 qm sind für Familien oder Paare geeignet und bieten viele Vorteile, darunter etwa die flexible Anpassbarkeit.
Was Sie im Detail zum Fertighaus mit 150 qm wissen müssen und wie Sie den Grundriss klug planen, um den Raum optimal zu nutzen, erfahren Sie hier.
Wie viel kostet ein Fertighaus mit 150 qm?
Die Kosten für ein Massiv- oder Fertighaus von 150 qm hängen von Faktoren wie der Ausbaustufe, technischen Details und der spezifischen Ausstattung ab. So ist ein schlüsselfertiges Haus mit hohen Energiestandards, ausgefallenem Design und bodentiefen Fensterfronten teurer als ein funktional ausgestattetes Fertighaus gleicher Größe in Standardausführung.
Als allgemeine Richtlinie gilt, dass ein Neubau in der Regel einen Hauspreis von etwa 2.700 Euro pro qm hat. Ein Fertighaus mit 150 qm würde also durchschnittlich 405.000 Euro kosten. Hinzu kämen die Kosten für den Keller oder die Bodenplatte, das Grundstück, Garten, Zufahrt und Pflasterung, sowie die Baunebenkosten.
Um den schlüsselfertigen Preis für ein Fertighaus mit 150 qm zu ermitteln, sollten Sie – je nach Qualitätssegment von günstig bis gehoben – eine Spanne von 2.200 bis 4.000 Euro pro qm berücksichtigen, was zu Gesamtkosten von 330.000 bis 600.000 Euro führt.
Fertighaus-Bungalows mit 150 qm: Preise unserer Anbieter
Alternativen zum schlüsselfertigen Fertighaus mit 150 qm
Wie bereits erwähnt, können die Kosten für ein Massiv- oder Fertighaus mit 150 qm je nach Fertigstellungsgrad reduziert werden. Der Umfang Ihrer Eigenleistung bestimmt den Preis, den Ihnen Ihre Baufirma anbietet, da die Arbeitskosten durch Ihre eigene Arbeitskraft ersetzt werden. Es ist jedoch wichtig, die Materialkosten zu bedenken, die nicht im Vertrag enthalten sind und in Ihrem Budget berücksichtigt werden sollten. Wenn Sie über das nötige Praxiswissen und die entsprechende Zeit verfügen, können Sie Eigenleistungen beim Bau eines Eigenheims in Erwägung ziehen.
- Ein Ausbauhaus erfordert ein gewisses Maß an handwerklichem Geschick, da man nach Absprache verschiedene Aspekte des Innenausbaus übernehmen kann, wie z. B. die Verlegung von Fußböden bis hin zur Installation von Leitungen.
- Beim Bausatzhaus ist ein höheres Maß an handwerklicher Erfahrung erforderlich, da Sie für den Bau des gesamten Hauses ab dem Rohbau verantwortlich sind. Dies ermöglicht eine Reduzierung der Lohnkosten beim Bau Ihres 150 qm großen Fertighauses. Ihre Baufirma plant Ihr Haus, liefert Ihnen die Baumaterialien gemäß dem vereinbarten Vertrag und bietet Ihnen bei Bedarf auch zusätzliche Unterstützung.
- Der schlüsselfertige Preis für ein Fertighaus mit 150 qm ist in der Regel am höchsten. Das liegt daran, dass der Fertighausanbieter fast alle Arbeiten beim Bau des Hauses aus einer Hand leistet, sodass Sie Ihr neues Zuhause bequem und problemlos übernehmen können.
Für wen ist ein Fertighaus mit 150 qm das Richtige?
Ein Fertighaus bis 150 Quadratmetern Wohnfläche lässt sich individuell an unterschiedliche Wohnbedürfnisse anpassen und eignet sich für verschiedene Wohnsituationen.
Ein Fertighaus mit bis zu 150 qm kann verschiedenen Anforderungen gerecht werden, z. B. denen von Paaren, die Home-Office und Gästezimmer mit einplanen, Familien mit zwei bis drei Kindern, die Wert auf getrennte Zimmer legen, oder als kleineres geteiltes Objekt. Denn es kann beispielsweise als Einfamilienhaus, als kosteneffizientes Zweifamilienhaus oder als Mehrgenerationenhaus mit integrierter Einliegerwohnung dienen.
Fertighaus mit 150 qm bauen: Vor- & Nachteile
Haus 150 qm: Vorteile
Ein Massiv- oder Fertighaus mit 150 qm bietet einer Familie mit zwei Kindern ausreichend Platz für ein einträchtiges Zusammenleben, Freizeit und Arbeit. Weitere Informationen finden Sie in unseren Tipps zum Grundriss.
Vor allem auf kleinerem oder ungleichmäßig geschnittenem Baugrund kann es von Vorteil sein, in die Höhe zu bauen. Statt nur ein oder zwei Vollgeschosse zu haben, lässt sich die Wohnfläche eines Fertighauses mit 150 Quadratmetern sinnvoll auf zweieinhalb bis drei Etagen verteilen. Dies ermöglicht eine optimale Ausnutzung des Grundstücks bzw. Einsparpotenziale, denn für ein entsprechend kleineres Grundstück ist weniger Budget nötig und Sie sparen sowohl bei Grunderwerbssteuer als auch Grundsteuer.
Ein Fertighaus mit einer Fläche von 150 qm ermöglicht zudem eine flexible Anpassung an veränderte Lebensumstände. Sei es der Bedarf an einem Arbeitszimmer oder einem zusätzlichen Kinderzimmer, ein Fertighaus dieser Größe bietet reichlich Platz, ohne dabei beengt oder verwinkelt zu wirken.
Zahlreiche Gestaltungsmöglichkeiten ergeben sich aus der Hausgröße von 150 qm beim Fertighaus: Von der modernen Flachdach-Villa mit zwei Vollgeschossen über die klassische Satteldach-Doppelhaushälfte mit 2,5 Etagen bis zum norddeutsch verklinkertem, großen Walmdach-Bungalow mit Garage ist alles möglich.
Haus 150 qm: Nachteile
Je nach Geschossanzahl ist ein sehr großes Grundstück nötig, insbesondere bei einem Bungalow mit 150 qm. Dies erhöht die gesamten Baukosten.
Die Wohnfläche bedingt einen recht hohen Hauspreis im Vergleich zu kleineren, ansonsten ähnlich ausgeführten Objekten.
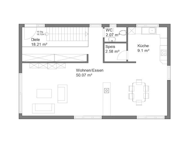
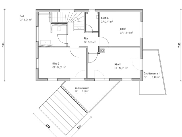
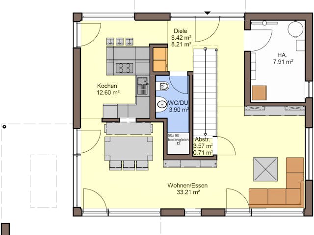
Fertighaus mit 150 qm: Grundrissplanung
Eine kluge Grundrissplanung ist das A und O für ein glückliches Wohnerlebnis, auch in einem Fertighaus mit 150 qm. Es liegt auf der Hand, sowohl Ihre aktuelle Situation als auch zukünftige Entwicklungen zu berücksichtigen. Planen Sie zum Beispiel für Ihre Kinder eigene Zimmer und nutzen Sie Trockenbauwände zur Raumaufteilung. So können Sie Ihr Wohnkonzept leicht umgestalten, wenn Ihre Kinder ausgezogen sind.
Bei der Gestaltung des Grundrisses für ein 150 qm großes Haus ist es zudem unerlässlich, den Bebauungsplan für das Grundstück zu berücksichtigen. Beschränkungen der Dachform, wie z. B. das Verbot eines Flachdachs, können sich auf die Anordnung der Räume im Obergeschoss auswirken. Eine Lösung für dieses Problem ist der Einbau von Einbauschränken, die an den Raum angepasst werden können.
Offene Räume, wie z. B. ein kombinierter Küchen-, Ess- und Wohnbereich, Mehrzweckräume, minimale Verkehrsflächen und eine einfache Grundrissgestaltung maximieren die Nutzbarkeit des verfügbaren Wohnraums. Dies gilt unabhängig davon, ob Sie in einem Fertighaus mit einer Wohnfläche von 150 qm oder weniger leben. Wenn Sie sich für einen einfachen und offenen Grundriss entscheiden, können Sie außerdem Baukosten sparen, da Sie nicht mit mehreren Innenwänden und Türen rechnen müssen.
Nutzen Sie unsere Haussuche, um Angebote für Fertighäuser mit 150 qm zu vergleichen. Sie können sich auch von bewährten Grundrissen inspirieren lassen und einen Haushersteller finden, der Ihre persönlichen Vorstellungen für Ihr Eigenheim am besten erfüllen kann.
Grundrisse von Fertighäusern mit 150 qm vergleichen




































