Haus mit Einliegerwohnung bauen
Ein Haus mit Einliegerwohnung bietet im Hauptgebäude, sei es ein frei stehendes Einfamilienhaus oder ein ebenerdiger Bungalow, eine zusätzliche abgeschlossene Wohnfläche. Ob Ihre Vorstellung ein elegantes Zweifamilienhaus mit Einliegerwohnung zur Miete ist oder Sie ein Haus mit Einliegerwohnung planen, um mit Verwandten unter einem Dach zu leben, die Auswahl an Haustypen, Ausstattungsniveaus, architektonischen Stilen und Dachgestaltungen ist bemerkenswert. Ebenso haben Sie die Freiheit, zwischen einem massiven Bau oder einem Fertighaus mit Einliegerwohnung zu wählen.
Die Vorzüge und Eigenschaften von Häusern mit Einliegerwohnungen sind äußerst vielfältig. Dabei variieren die Kosten erheblich, abhängig davon, für welche Größe, Ausstattung und Ausbaustufe Sie sich für Ihr Massiv- oder Fertighaus mit Einliegerwohnung entscheiden. Wenn Sie die Einliegerwohnung vermieten möchten, sollten Sie zudem einige wichtige Aspekte berücksichtigen. In den nachfolgenden Abschnitten werden wir diese Punkte genauer beleuchten.
Haus mit Einliegerwohnung: Definition
Prinzipiell besitzen Häuser mit Einliegerwohnungen eine zusätzliche, eigenständige und abgegrenzte Wohnfläche. Eine Einliegerwohnung stellt in diesem Zusammenhang eine selbstständige Residenz mit einem eigenen Badezimmer und einer Kochgelegenheit innerhalb eines größeren Wohnkomplexes dar. Eine Mini-Küche oder eine Küchenzeile sind hierfür bereits genügend. Abhängig von der Größe der Fläche und dem beabsichtigten Verwendungszweck kann eine Einliegerwohnung jedoch auch großzügiger gestaltet sein und eine hochwertigere Ausstattung bieten. In einem gut durchdachten Grundriss können sogar zwei geräumige Wohnbereiche geschaffen werden, die den Bedürfnissen unterschiedlich großer Bewohnerzahlen gerecht werden.
Der Eingangsbereich einer Einliegerwohnung kann sich zwar im Haupttreppenhaus befinden, jedoch wird in der Regel ein eigener Zugang an der Seite des Gebäudes eingerichtet. Verfügen Sie über ein ausreichend großes Grundstück, sind Wasser- und Stromleitungen entsprechend verlegt und es existiert eine Baugenehmigung, ist es sogar möglich, eine Einliegerwohnung an ein bereits bestehendes Haus anzubauen. Dadurch wird die klare Abgrenzung zwischen den beiden Wohnbereichen besonders unkompliziert.
Geschichtlich betrachtet leitet sich die Bezeichnung ‘Einliegerwohnung’ davon her, dass früher Landarbeiter auf Bauernhöfen in bestimmten Räumlichkeiten untergebracht wurden. Bis etwa 1900 wurden diese Arbeiter tatsächlich als Einlieger bezeichnet. In Anbetracht des Wohnraummangels nach dem Zweiten Weltkrieg schrieb das erste Wohnungsbaugesetz der Bundesrepublik Deutschland vor, dass in jedem neu errichteten Haus Einliegerwohnungen vorgesehen sein sollten. Somit hat diese praktische Form des Wohnens bei uns eine langjährige Historie.
Mehrgeschossig oder Bungalow mit Einliegerwohnung: Vorteile
Die Planung eines Massiv- oder Fertighauses mit einer Einliegerwohnung läuft auf sehr variable Wohnkonzepte hinaus, die sich perfekt an Ihre aktuelle Lebenssituation anpassen lassen und dabei erhebliche finanzielle Vorteile bieten.
Einkommen: Wenn Sie sich entscheiden, ein Haus mit einer Einliegerwohnung zu errichten und diese entweder langfristig zu vermieten oder als Ferienwohnung anzubieten, können die Mieteinnahmen zunächst zur Deckung der Baukosten und später zur Unterstützung Ihrer Altersvorsorge dienen. Interessanterweise können Sie in Bezug auf energieeffiziente Häuser mit Einliegerwohnungen sogar einen Antrag auf doppelte KfW-Förderung stellen, da es sich um zwei separate Wohneinheiten handelt.
Steuerersparnis: Darüber hinaus haben Sie bei der Vermietung die Möglichkeit, verschiedene Baukosten und finanzielle Aufwendungen, wie beispielsweise Darlehenszinsen, Instandhaltungskosten, Maklergebühren bei Neuvermietung, Instandhaltungsaufwendungen für Haus und Garten oder Renovierungsarbeiten an der Einliegerwohnung, in Ihrer Steuererklärung anzugeben. Hierbei wird der Nutzflächenanteil der Einliegerwohnung von der Gesamtfläche des Hauses abgezogen. Beachten Sie jedoch, dass die Steuervorteile voraussetzen, dass die Fläche der Einliegerwohnung kleiner ist als die Wohnfläche des restlichen Gebäudes. Wenn Sie die Wohnung selbst bewohnen, können diese Kosten nicht steuerlich geltend gemacht werden.
Mehrgenerationenwohnen: Massiv- und Fertighäuser mit Einliegerwohnungen eignen sich hervorragend für Mehrgenerationenhäuser, sei es als erste eigene Wohnung für Ihre erwachsenen Kinder oder – insbesondere als Bungalow mit Einliegerwohnung oder mehrstöckiges Haus mit Einliegerwohnung im Erdgeschoss – als Wohnraum für ältere Verwandte, die in der Nähe der Familie leben möchten.
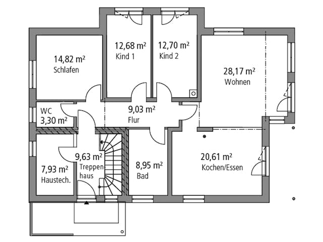
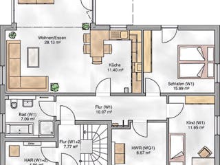
Grundrisse Haus mit Einliegerwohnung
Wie viel kostet ein Einfamilienhaus mit Einliegerwohnung?
Gewiss stellt sich nun die Frage, welcher finanzielle Spielraum vonnöten ist, wenn Sie ein Haus mit einer Einliegerwohnung in Betracht ziehen. Ob Sie sich letztendlich für ein Massivhaus oder ein Fertighaus mit Einliegerwohnung entscheiden, ist in dieser Hinsicht weniger entscheidend. Vielmehr sind Faktoren wie spezielle Ausstattungswünsche, die Wohnfläche, die Art des Daches, lokale Lohnunterschiede bei den Gewerken und vor allem die Ausbaustufe ausschlaggebend für die Kosten.
Im Durchschnitt bewegen sich bei einem Massivbau oder Fertighaus mit Einliegerwohnung schlüsselfertige Preise bei mittlerer Ausführungsqualität zwischen etwa 2.000 bis 2.500 Euro pro Quadratmeter. Das bedeutet, dass für eine Gesamtwohnfläche von 170 Quadratmetern in dieser Qualitäts- und Ausbaustufe durchschnittlich Kosten in Höhe von 340.000 bis 425.000 Euro anfallen.
Haus mit Einliegerwohnung: Preise ca. 30 % höher
Im Allgemeinen ist bei einem Massiv- oder Fertighaus mit Einliegerwohnung ein Preis zu erwarten, der etwa 30 % teurer ist im Vergleich zu einer ansonsten baugleichen Immobilie, die nur für einen Haushalt ausgelegt ist. Dies resultiert zum einen aus der größeren Wohnfläche, die geplant wird, wenn mehrere Haushalte einziehen sollen. Zum anderen erfordert es zusätzliche Leitungen, potenziell Türen, Fenster und Wände.
Zusätzlich zu den reinen Kosten für das Haus mit Einliegerwohnung müssen Sie auch Ausgaben für einen Keller oder eine Bodenplatte, die Gestaltung der Außenanlage und die Baunebenkosten einplanen. Ebenso sollten die Kosten für das Baugrundstück in Ihre Kalkulation einfließen.
Laut dem Statistischen Bundesamt (Stand 2023) liegen die Grundstückspreise in Deutschland beim Durchschnitt von288 Euro den Quadratmeter. Bitte beachten Sie, dass dies ein Durchschnittswert ist und der Preis je nach Lage und Größe des Baugrunds variieren kann!
Bungalow mit Einliegerwohnung
Fertighaus mit Einliegerwohnung
Einfamilienhaus mit Einliegerwohnung als Stadtvilla
Schlüsselfertiges Haus mit Einliegerwohnung
Einliegerwohnung als Mietobjekt
Eine Einliegerwohnung, vor allem, wenn sie barrierefrei gestaltet ist, eröffnet vielfältige Möglichkeiten für die Vermietung – vor allem bei einer Mindestgröße von 60 Quadratmetern und entsprechender Miethöhe. Es ist jedoch ratsam, im Vorfeld klare Vereinbarungen mit dem Mieter zu treffen und bestimmte Regeln festzulegen, wie beispielsweise für die Pflege von Garten und Haus.
Es ist außerdem empfehlenswert, die laufenden Kosten für Strom, Wasser und Heizung der Einliegerwohnung separat zu erfassen und abzurechnen, um eine faire Verteilung zu gewährleisten. Die Bereitstellung getrennter Mülltonnen trägt zur Ordnung bei und verhindert Konflikte.
Darüber hinaus sollte der Mieter eine eigene Haftpflichtversicherung abschließen, und eine Rechtsschutzversicherung für Sie als Vermieter deckt eventuelle rechtliche Kosten ab.
Nicht zuletzt ist ein harmonisches, vertrauensvolles Miteinander entscheidend, wenn Sie bei Ihrem Haus die Einliegerwohnung vermieten, ebenso wie Toleranz.
Häuser mit Einliegerwohnung: Passende Baupartner
Hausbau mit Einliegerwohnung: Häufige Fragen





















































