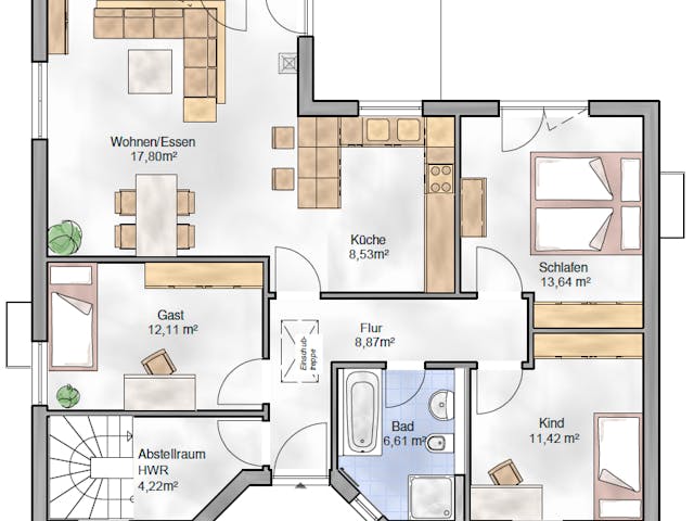
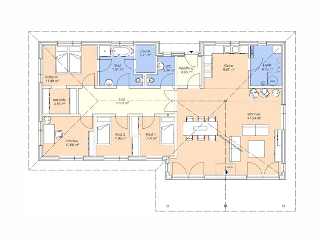
Bungalow als Einfamilienhaus
Entdecken Sie die Welt der Einfamilienhäuser – Ihre Quelle für umfassende Informationen über die Vorzüge dieser Wohnform und den Zugang zu anerkannten, qualitätsgeprüften Baufirmen, die Ihr Traumhaus Wirklichkeit werden lassen.
Die Möglichkeit, ein Zuhause genau nach Ihren Vorstellungen zu schaffen, bietet ein unvergleichliches Maß an Individualisierung und die Chance, sich und Ihrer Familie einen persönlichen Freiraum zu erschaffen. Ob als gemütlicher Rückzugsort für die ganze Familie oder als Manifestation individueller Wohnträume mit besonderem Augenmerk auf Privatsphäre – das Einfamilienhaus steht als Synonym für eine der bevorzugten Wohnformen im Eigenheimsektor. Aber was kennzeichnet eigentlich ein Einfamilienhaus? Wer profitiert am meisten vom Bau eines solchen Hauses? Welche Bauarten, Haustypen und Designs stehen zur Auswahl? Und welche Vorteile bietet ein Einfamilienhaus? Wir gehen diesen Fragen nach und bieten Einblicke in die vielfältigen Möglichkeiten, die sich Ihnen beim Bau eines Einfamilienhauses bieten.
Individualität und Privatsphäre im Einfamilienhaus
Egal, ob als schlüsselfertiges Fertighaus oder als massiv gebautes Unikat, ob als stilvolle Stadtvilla oder als gemütliches Landhaus im skandinavischen Stil – moderne Einfamilienhäuser bieten eine hervorragende Mischung aus Wohnkomfort und individueller Gestaltung, abgestimmt auf Ihre persönlichen Bedürfnisse. Dabei spielt es keine Rolle, ob Ihr Budget eher bescheiden ist oder keine Grenzen kennt; die Flexibilität in der Planung von Grundriss, Architektur, Dachgestaltung, Ausbau, Materialwahl und der gesamten Innen- und Außengestaltung ermöglicht es Ihnen, Ihr Einfamilienhaus ganz nach Ihren Wünschen zu konzipieren.
Ein wesentlicher Pluspunkt des Einfamilienhauses ist die Lage – frei stehend, umgeben von einem Garten, der nicht nur private Rückzugsorte bietet, sondern auch die Nutzung erneuerbarer Energien, wie Solarthermie, erleichtert.
Die Entscheidung für ein Fertighaus-Einfamilienhaus verspricht zudem eine schnelle Bauzeit, feste Preise und eine positive Ökobilanz.
Beim Bau eines massiven Einfamilienhauses bieten viele unserer Partner einen Rundum-sorglos-Service, der Planungssicherheit und umfassende Garantien einschließt.
Definition: Einfamilienhaus
Ein Einfamilienhaus ist eine freistehende Immobilie, die aus einer einzelnen Wohneinheit besteht und in der Regel im Besitz des Bewohners ist. Oft auf großzügigen Grundstücken erbaut, bieten Einfamilienhäuser typischerweise genügend Raum für Familien oder andere Bewohnergruppen. Die Bauformen reichen vom klassischen Siedlungshaus über praktische Konstruktionen mit Einliegerwohnungen bis hin zu lichtdurchfluteten Bungalows oder rustikalen Landhäusern.
Bauarten von Einfamilienhäusern
- Fertigbauweise: Ihr zukünftiges Heim entsteht aus vorproduzierten Teilen, die unabhängig von Wetterbedingungen zusammengefügt werden. Dabei wird häufig auf Holzrahmen- oder Skelettbauweisen zurückgegriffen, was exzellente Dämmeigenschaften mit sich bringt. Gelegentlich finden auch massive Elemente Verwendung.
- Massivbauweise: Hier entsteht Ihr Haus direkt auf der Baustelle, Stein auf Stein. Dies garantiert eine individuelle Anpassung an Ihre Wünsche und bietet natürlichen Schallschutz. Witterungsbedingungen können allerdings den Bauprozess beeinflussen.
- Blockbauweise: Besonders in alpinen Regionen geschätzt, steht diese Bauweise für Naturnähe und Tradition, mit massiven Holzelementen als Basis.
Zielgruppe für Einfamilienhäuser
Einfamilienhäuser eignen sich für eine Vielzahl von Wohnkonzepten, insbesondere aber für kleine bis mittelgroße Familien. Dank durchdachter Gestaltung beim Einfamilienhaus Grundriss entsteht genügend Freiraum für alle Mitglieder, während eine flexible Raumkonzeption zukünftige Veränderungen berücksichtigt. Große Einfamilienhäuser bieten Platz für kinderreiche Familien, während Einfamilienhäuser mit Einliegerwohnungen Möglichkeiten für Mehrgenerationenwohnen oder zusätzliche Einnahmen durch Vermietung bieten. Auch Alleinstehende oder Paare, die Wert auf separate Arbeits- oder Hobbyräume legen, finden im Einfamilienhaus ihr ideales Zuhause, ebenso wie diejenigen, die ein maßgeschneidertes, barrierefreies Wohnen in einem freistehenden Bungalow anstreben.

Vielfalt im Einfamilienhausbau
Die Möglichkeiten, Ihr Einfamilienhaus zu gestalten, sind nahezu unbegrenzt. Ob als modernes Kubushaus, mit traditionellem Fachwerk oder einem klassischen Satteldach – Sie haben die freie Wahl. Im Folgenden stellen wir Ihnen eine Auswahl an Bauvariationen vor, von der eleganten Stadtvilla bis hin zum ökoeffizienten Energiesparhaus.
Vorteile eines Einfamilienhauses
Zusammenfassend bietet der Bau eines Einfamilienhauses zahlreiche Vorteile:
- eine breite Palette an Bauweisen, Gestaltungsmöglichkeiten und Stilen
- ein hohes Maß an Selbstbestimmung
- flexible Einfamilienhaus Grundrisse und Nutzungsmöglichkeiten
- zusätzlichen Wohnraum
- hohe Energieeffizienz
- und eine wertbeständige Investition mit Potenzial zur Wertsteigerung

Viele unserer Baupartner bieten einen nützlichen Grundstücksservice an, der Ihnen hilft, das perfekte Grundstück für Ihr Einfamilienhaus zu finden. Durch lokale Vernetzung sind unsere Partner bestens über verfügbare Bauplätze, Verkaufsgrundstücke und Bebauungspläne informiert.










































