Minihaus bauen: Preise, Kosten & Wissenswertes
In einer Zeit, in der die Kosten für den traditionellen Hausbau durch steigende Zinsen und erhöhte Eigenkapitalanforderungen in die Höhe schnellen, erweist sich das Bauen eines Eigenheims als eine der bedeutsamsten Investitionsentscheidungen im Leben. Zusätzlich machen unerschwingliche Mieten den Wohnungsmarkt für viele unzugänglich. Eine effiziente Lösung, um Bau- und Finanzierungskosten zu reduzieren, liegt darin, ein Heim zu errichten, das genau den persönlichen Bedürfnissen entspricht – nicht größer, aber auch nicht kleiner.
Voll im Trend liegen deshalb Minihäuser, besonders bei der jüngeren Generation, kleinen Familien und Senioren.
Ein Minihaus, ob als schlüsselfertiges Fertighaus, ein massiv gebautes Minihaus oder gar ein mobiles Minihaus auf Rädern, bietet Flexibilität und personalisierte Wohnlösungen. Solche Minihäuser sind ideal für diejenigen, die nach selbstbestimmtem Wohnen mit einem begrenzten Budget und auf kleinem Grundstück streben.
Im Folgenden erfahren Sie alles zu diesem Wohntrend, von der Definition eines Minihauses, über Grundrisse, bis hin zu Preisstrukturen und Kosten.
Was ist ein Minihaus?
In Deutschland existiert keine offizielle Definition für ein Minihaus, doch allgemein wird ein solches bei einer Wohnfläche zwischen 50 und 100 Quadratmetern angesiedelt. Diese Größenordnung überlappt sich oft mit der Kategorie der Tiny Houses. Die Vielfalt in der Gestaltung von Minihäusern ist bemerkenswert, reichend von kompakten Bungalows, die sich auf einer Ebene erstrecken, bis hin zu mehrstöckigen Konstruktionen. Ein Minihaus kann alles sein – von einer bescheidenen Gartenhütte, die über eine einfache Küchenzeile und ein kleines Bad verfügt, bis hin zu einer minimalistisch gestalteten Luxusresidenz.
Was den Bau eines Minihauses angeht, so sind der Kreativität kaum Grenzen gesetzt. Sie können frei wählen, ob Ihr Minihaus als Fertighaus oder als individuell geplantes Objekt entsteht, welche Dachform es haben soll und aus welchen Materialien es erbaut wird. Diese Vielseitigkeit macht das Minihaus zu einer attraktiven Wohnlösung für viele, die nach maßgeschneiderter Architektur und persönlichem Wohnstil suchen.
Eigenheim im Kleinformat: Minihaus bauen
Beachten Sie, dass unabhängig von seiner Größe oder Mobilität ein Minihaus in Deutschland einer offiziellen Baugenehmigung bedarf, wenn es als permanenter Wohnsitz genutzt werden soll. Dies gilt gleichermaßen für stationäre Mini-Häuser, die fest auf einem Fundament stehen, als auch für Varianten auf Rädern, die Mobilität mit Wohnkomfort verbinden.
Die Idee des Minihauses hat ihren Ursprung im Platzen der Immobilienblase im Jahre 2008 in den USA. Ursprünglich als Reaktion auf wirtschaftliche Herausforderungen und Platzmangel entstanden, hat sich das Konzept des Minihauses schnell global verbreitet. Heute steht es symbolisch für eine Bewegung hin zu mehr Minimalismus und ökologischer Nachhaltigkeit im Bereich des Bauens und Wohnens. Diese Entwicklung reflektiert einen globalen Trend, der die Werte der Reduktion und Nachhaltigkeit in den Vordergrund stellt und damit eine Antwort auf die sich wandelnden Wohnbedürfnisse in unserer modernen Gesellschaft bietet.
Minihaus auf Rädern als alternatives Wohnmodell
Falls der Plan besteht, ein Minihaus auf Rädern in gleicher Weise wie einen Wohnwagen zu verwenden, ist die Beachtung straßenverkehrsrechtlicher Regelungen unumgänglich. Für eine solche Nutzung ist eine amtliche Zulassung erforderlich, die durch Institutionen wie den TÜV oder die DEKRA erteilt wird. Diese Zertifizierung stellt sicher, dass Ihr mobiles Minihaus allen Sicherheits- und Verkehrsvorschriften entspricht und somit ordnungsgemäß für die Straße zugelassen ist.
Minihaus-Kosten und Preise im Detail
Die Kosten für ein Minihaus werden primär durch Faktoren wie die Wohnfläche in Quadratmetern, den Grad der Fertigstellung, Energieeffizienzstandards und die Qualität der Ausführung bestimmt. Auch Elemente wie die Dachkonstruktion, der architektonische Stil und regionale Unterschiede in den Handwerkerpreisen spielen eine Rolle in der Preisgestaltung.
Für ein schlüsselfertiges Minihaus variiert der Preis je nach Qualität und Ausstattung. Im Einzelnen bedeutet das: für eine einfachere Ausführung liegen die Quadratmeterpreise zwischen 1.800 und 2.000 Euro, für mittlere Qualität zwischen 2.000 und 2.500 Euro, und für gehobene Anfertigung zwischen2.500 und 3.000 Euro. Ein Quadratmeterpreis über 3.000 Euro ordnet das Minihaus in das Luxussegment ein.
Zu den Hauptkosten eines Minihauses kommen noch zusätzliche Ausgaben hinzu, die separat berechnet werden müssen. Dazu zählen das Grundstück, die Kosten für eine Bodenplatte oder einen Keller, die Gestaltung der Außenanlage, z.B. Garten und Garage, und die Baunebenkosten.
Möchten Sie ein Minihaus bauen, sollten Sie mit etwa 2.000 Euro pro Quadratmeter Wohnfläche plus 15% Baunebenkosten rechnen. Für ein Grundstück in Deutschland sollten Sie im Durchschnitt 288 Euro pro Quadratmeter zur Seite legen (Stand: 2023 des Statistisches Bundesamts).
Gehen Sie also von einer Wohnfläche von mit etwa 90 Quadratmetern aus, kostet das Haus etwa 207.000 Euro. Hinzukommen das Grundstück, sollten Sie dieses noch nicht besitzen.
Bitte bedenken Sie, dass es sich hier um Durchschnittswerte handelt.
Minihaus mit Holz
Minihaus mit schlüsselfertigem Bau
Minihaus als Fertighaus bauen
Minihaus: Welche Baumaterialien eignen sich?
Unabhängig davon, ob Sie sich für ein Minihaus aus Holz in Fertigbauweise, ein charmantes kleines Blockhaus oder ein robustes, massiv gebautes Steinhaus entscheiden, können Sie sich auf moderne Baumaterialien verlassen, die exzellente Dämmwerte liefern. Diese Baustoffe entsprechen nicht nur den Anforderungen des Gebäudeenergiegesetzes (GEG), sondern tragen auch zur Energieeffizienz Ihres Hauses bei.
Eine bahnbrechende Neuerung in der Bautechnik ist der Einsatz von 3D-Druckern, die ein Minihaus mit speziellen Betonmischungen vollständig automatisiert errichten können.
Das passende Dach für Ihr Minihaus
Vor der Einreichung Ihres Bauantrags für ein Minihaus lohnt sich ein genauer Blick in den Bebauungsplan Ihrer Gemeinde. Dieser enthält wesentliche Richtlinien für Bauvorhaben, darunter Vorschriften bezüglich des Haustyps, der zulässigen Stockwerkanzahl und der erlaubten Dachformen. Bei der Wahl des Daches für ein Minihaus tendieren viele Bauherren zu klassischen Satteldächern, die sich ideal für eine Schlafgalerie im Dachgeschoss eignen, zu preiswerten Pultdächern oder zu Flachdächern, die sich sowohl als Gründach als auch für eine Dachterrasse anbieten.
Alle drei Dachvarianten bieten zudem die Möglichkeit zur Installation einer Photovoltaikanlage. Entscheiden Sie sich für ein Flachdach, eröffnen sich, abhängig von den lokalen Bauvorschriften, zusätzliche Optionen für spätere bauliche Erweiterungen, beispielsweise die Hinzufügung zusätzlicher Wohnräume. Generell ist ein Anbau oder eine Aufstockung bei Minihäusern machbar, sofern sie den Bestimmungen des Bebauungsplans entsprechen.
Minihaus bauen: Vor- und Nachteile
Minihaus Vorteile
Ein Minihaus bietet zahlreiche Vorteile, die es zu einer attraktiven Alternative zu größeren Immobilien machen. Zu den herausragenden Merkmalen gehören:
- Kosteneffizienz: Im Vergleich zu größeren, baugleichen Immobilien ist ein Minihaus in der Regel finanziell günstiger.
- Reduzierter Flächenbedarf: Für den Bau eines Minihauses ist weniger Grundstücksfläche erforderlich, was es besonders für kleinere oder schwierig zu bebauende Grundstücke ideal macht.
- Geringerer Wartungsaufwand: Dank ihrer kompakten Größe verursachen Mini-Häuser weniger Instandhaltungsaufwand und -kosten.
- Vielseitigkeit in der Platzierung: Mini-Häuser eignen sich hervorragend für knapp oder ungünstig geschnittene Grundstücke und können effizient in Baugrundlücken integriert werden.
- Flexibilität in der Nutzung: Minihäuser sind sowohl für das dauerhafte Wohnen als auch als charmante Feriendomizile geeignet.
- Erweiterungsmöglichkeit: Ein Minihaus kann auch als Anbau an ein bestehendes Eigenheim realisiert werden, um zusätzlichen Wohnraum zu schaffen.
- Mobilität: Die Variante des Minihauses auf Rädern bietet die einzigartige Möglichkeit, Ihr Zuhause überallhin mitzunehmen.
Minihaus Nachteile
Trotz der vielen Vorteile gibt es auch bestimmte Herausforderungen, die beim Bau eines Minihauses berücksichtigt werden sollten:
- Genehmigungsverfahren: Wie bei jedem regulären Hausbau sind auch für den Bau eines Minihauses die gleichen behördlichen Antrage und Prozesse erforderlich. Dies bedeutet, dass Sie die gleichen formalen Schritte und Auflagen erfüllen müssen.
- Begrenzter Platz: Mini-Häuser sind nicht die beste Option für größere Familien, da der Wohnraum naturgemäß begrenzt ist und möglicherweise nicht den Bedürfnissen aller Familienmitglieder gerecht wird.
- Raumbeschränkungen: Aufgrund ihrer kompakten Größe bieten Mini-Häuser weniger Wohnfläche, was zu eingeschränkten Gestaltungsmöglichkeiten führen kann. Dies erfordert eine kreative Raumnutzung und Organisation, um den verfügbaren Platz optimal zu nutzen.
Minihaus: Grundriss & Gestaltung
Bei der Planung eines Minihauses spielt der Grundriss eine wesentliche Rolle, besonders aufgrund der begrenzten Wohnfläche. Die Gestaltung effizient und durchdacht anzugehen ist unverzichtbar, um trotzdem ein Gefühl von Geräumigkeit zu erzeugen:
- Offene Raumgestaltung: Ähnlich wie bei einem Singlehaus ist es ratsam, den Grundriss eines Minihauses möglichst offen zu gestalten. Dies trägt dazu bei, das Raumgefühl zu maximieren und eine einladende Atmosphäre zu schaffen.
- Zentrale Wohnküche: Das Zentrum eines jeden Minihauses sollte eine großzügige Wohnküche sein, die Funktionalität und Gemütlichkeit vereint.
- Effiziente Raumnutzung: Ein effektiver Grundriss für ein Minihaus vermeidet unnötige Trennwände, enge Nischen, ausgedehnte Flure oder überflüssige Treppen.
- Großflächige Fenster: Der Einsatz von großflächigen Fenstern kann zusätzlich zum Eindruck räumlicher Weite beitragen, indem sie mehr Licht hereinlassen und den Außenbereich visuell einbeziehen.
- Integrierter Stauraum: Anstelle von separaten Lagerräumen sind Einbauschränke eine platzsparende Lösung, um Ordnung und Übersichtlichkeit zu bewahren.
- Barrierefreiheit: Insbesondere bei Mini-Häusern für Senioren ist es empfehlenswert, auf Barrierefreiheit zu achten. Dies bedeutet in der Regel, den Wohnraum ebenerdig zu planen und auf Zugänglichkeit zu achten.
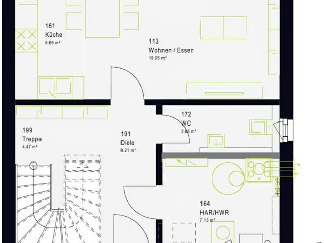
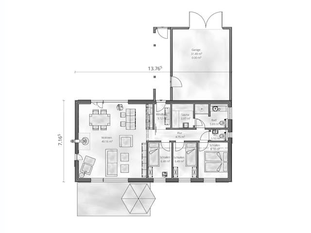
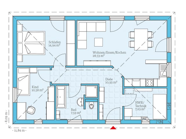
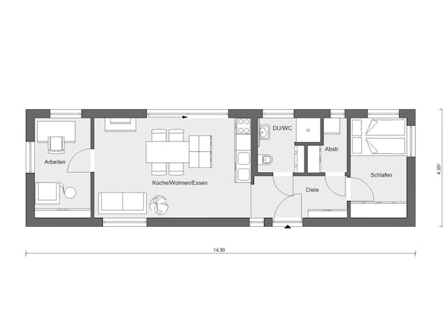
Grundriss Minihaus: Beispiele
Minihaus 50 qm Grundriss
Grundriss Minihaus 80 qm
Bungalow-Minihäuser für Senioren
Häufige Fragen zum Thema Minihaus













































































