





Tiny Haus Dwelli TR#2 von Dwellii House
Preis auf Anfrage
Bewertungen von Dwellii House
4,0
(1)
Wohnfläche
39 m²
Zimmer
2
Ausbaustufe
Schlüsselfertig
Bauweise
Fertighaus
Etagen
1
Energiestandard
Effizienzhaus 55
Dachform
Flachdach
Hausart
Einfamilienhaus
Beschreibung
KOMPAKTES WOHNEN MIT LUXURIÖSEM FLAIR
Der Dwellii TR#02 denkt kompaktes Wohnen neu und bietet eine harmonische Verbindung von Funktionalität und Eleganz. Dieses modulare Zuhause verfügt über ein geräumiges, lichtdurchflutetes Open-Plan-Design. Entspannen Sie im spa-ähnlichen Badezimmer, das mit einer Regendusche und natürlichen Steinoberflächen ausgestattet ist. Mit Fußbodenheizung, einem optionalem Holzofen und einem Wärmerückgewinnungssystem sorgt der TR#02 für gemütlichen Komfort zu jeder Jahreszeit. Perfekt als Urlaubsrefugium oder als semi-permanente Residenz bietet der TR#02 ein luxuriöses Wohnerlebnis auf kleinem Raum.
Sie haben Interesse?
Laden Sie sich jetzt Ihr kostenloses Exposé zu diesem Haus herunter:
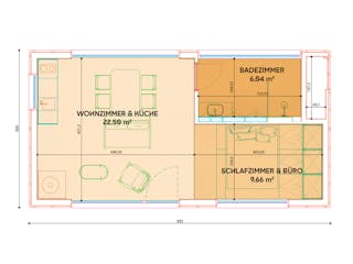
Grundrissfür Tiny Haus Dwelli TR#2
Außenmaße
Länge: 9,55 m
Breite: 5 m
Grundrisse
Der Grundriss entspricht nicht Ihren Vorstellungen?
Passen Sie den Grundriss an Ihre persönlichen Bedürfnisse an und besprechen Sie Ihren individuellen Plan mit einem Bauberater des Anbieters.
Merkmale
Energiestandard und Förderung
Energiestandard
Effizienzhaus 40
Effizienzhaus 40 Plus
Effizienzhaus 55
Dach
Dachform
Flachdach
Preisdetails für Tiny Haus Dwelli TR#2
Schlüsselfertig ab
Preis auf Anfrage
Dieser Preis ist ein Beispiel für den Anfang, ein Berater kann Ihnen ein detailliertes Angebot erstellen, das Ihren Bedürfnissen entspricht.
Möchten Sie bei Ihrem Projekt Geld sparen?
Durch einen Angebotsvergleich mit Bungalow.de können Sie bis zu 20 % Ihrer Baukosten sparen.
Über den Anbieter Dwellii House
Zum Anbieterprofil
Bewertungen
4,0
(1)

Bewertungen
4,0
1 BewertungGut
Dwellii House in Zahlen
Gründungsjahr
2021
Häuser im Angebot
4
Häuser pro Jahr
50
Mitarbeiter
50
Bewertungen von Dwellii House
Aufschlussreich
Aufschlussreich
25 Sep. 2025Wilfried Z.
Leistungsspektrum
Finanzierungsberatung
Preisgarantie
Bauzeit Garantie
Individuelle Planung
Blower Door Test
Persönliche Beratung für Ihre individuellen Wünsche
Finden Sie jetzt Ihren Ansprechpartner
Dwellii House
Ähnliche Häuser Für Tiny Haus Dwelli TR#2