Bungalow mit 4 Zimmern: Grundrisse und Tipps für die perfekte Planung
Ein Bungalow mit 4 Zimmern ist der Inbegriff von Flexibilität und zukunftssicherem Wohnen auf einer Ebene. Diese Raumaufteilung ist bei Bauherren in Deutschland besonders beliebt, denn sie passt sich mühelos an verschiedene Lebensphasen an – von der jungen Familie über Paare mit Homeoffice-Bedarf bis hin zum komfortablen Altersruhesitz mit Platz für Gäste, Hobbys oder Pflegekräfte. Ein durchdachter 4-Zimmer-Grundriss bietet die perfekte Balance zwischen offenem Gemeinschaftsleben und privaten Rückzugsorten. Wir zeigen Ihnen, worauf es bei der Planung ankommt und welche Größe für Ihre Bedürfnisse ideal ist.
Vielseitigkeit: Für wen eignet sich ein 4-Zimmer-Bungalow?
Die große Stärke eines 4-Zimmer-Grundrisses liegt in seiner flexiblen Nutzbarkeit. Die drei privaten Räume können je nach Lebenssituation unterschiedlich gestaltet werden:
- Für Familien: Der Klassiker ist die Aufteilung in ein Elternschlafzimmer und zwei Kinderzimmer plus Wohnbereich. So hat eine typische vierköpfige Familie bequem Platz.
- Für Paare: Paare, die (noch) keine Kinder haben, nutzen die zusätzlichen Zimmer oft als Homeoffice, Gästezimmer oder Hobbyraum. Dies ermöglicht eine klare Trennung zwischen Arbeit, Freizeit und privatem Wohnen.
- Für die Zukunft: Ein heute als Büro genutztes Zimmer kann morgen problemlos zu einem Kinderzimmer oder später zu einem barrierefreien Pflegezimmer umfunktioniert werden. Diese Anpassungsfähigkeit macht den 4-Zimmer-Bungalow zu einer wertvollen und langlebigen Investition.
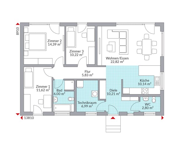
Die ideale Größe: Wie viel Platz braucht ein Bungalow mit 4 Zimmern?
Ein 4-Zimmer-Grundriss lässt sich in verschiedenen Wohnflächen realisieren, die jeweils unterschiedliche Vorzüge bieten.
Die komfortable Lösung (120 - 130 qm)
Dies ist der ideale Größenbereich für einen Bungalow mit 4 Zimmern. Hier lassen sich drei vollwertige Schlafzimmer und ein großzügiger Wohn- und Essbereich unterbringen. Ein typischer Grundriss in dieser Größe umfasst einen offenen Wohnbereich mit 35 - 40 m², zwei Kinderzimmer mit je 12 - 14 m² und eine Eltern-Suite mit rund 16 m² sowie einer Ankleide. Oft ist sogar Platz für zwei Bäder.
Die kompakte Lösung (ca. 100 qm)
Auch auf einer Wohnfläche von rund 100 qm ist ein 4-Zimmer-Grundriss machbar. Hierfür müssen die einzelnen Zimmer oder der Wohnbereich etwas kleiner dimensioniert werden. Diese Variante ist eine sehr effiziente und kostengünstigere Option, die dennoch alle notwendigen Funktionen erfüllt. Selbst auf 90 qm können 4 Zimmer mit etwas Geschick untergebracht werden.
Manchmal wird nach einem Bungalow mit 4 Schlafzimmern gesucht. Das bedeutet in der Regel ein 5-Zimmer-Haus (ein Wohnzimmer plus vier Schlafzimmer). Ein solcher Grundriss erfordert eine deutlich größere Wohnfläche von 150 qm oder mehr und ist eher selten. Für Familien mit Bedarf an mehr als vier Schlafzimmern ist ein zweigeschossiges Haus oft die wirtschaftlichere Lösung, es sei denn, es steht ein sehr großes Grundstück zur Verfügung.
Grundriss-Beispiele und clevere Raumaufteilung
Der Schlüssel zu einem gelungenen 4-Zimmer-Grundriss ist die intelligente Gliederung in einen öffentlichen und einen privaten Bereich.
- Zonierung mit einem Winkelbungalow: Ein L-förmiger Grundriss ist für eine 4-Zimmer-Aufteilung besonders gut geeignet. Er trennt auf natürliche Weise den lauten Wohnflügel vom ruhigen Schlaftrakt. Der Wohn-, Ess- und Kochbereich orientiert sich idealerweise mit großen Fensterfronten zum Garten, während die Schlafzimmer im anderen Flügel Ruhe und Privatsphäre finden.
- Grundriss mit Garage: Ein 4-Zimmer-Grundriss für einen Bungalow mit Garage sollte die Garage sinnvoll integrieren. Eine angebaute Garage mit direktem Zugang zum Hauswirtschaftsraum oder Eingangsbereich ist besonders praktisch und schützt Sie bei jedem Wetter auf dem Weg vom Auto ins Haus.
Fazit: Der flexible Alleskönner für Ihr Leben
Der 4-Zimmer-Bungalow ist eine äußerst beliebte und zukunftssichere Wahl, die sich ideal auf einer Wohnfläche von 120 bis 130 Quadratmetern umsetzen lässt. Durch eine klare Trennung von Wohn- und Schlafbereichen, idealerweise in Form eines Winkelbungalows, entsteht ein hochfunktionales und gleichzeitig gemütliches Zuhause. Er bietet die perfekte Grundlage für das moderne Familienleben, das Arbeiten von zu Hause und passt sich flexibel an alle Veränderungen an, die das Leben mit sich bringt.



