


Generation 13 von allkauf haus
Preis auf Anfrage
Bewertungen von allkauf haus
4,2
(114)
Wohnfläche
263 m²
Zimmer
5
Ausbaustufe
Ausbauhaus
Bauweise
Fertighaus
Etagen
2
Energiestandard
Effizienzhaus 40
Dachform
Walmdach
Hausart
Zweifamilienhaus
Beschreibung
Wenn es um Größe und Flexibilität geht, ist unser Generation 13 Haus die perfekte Wahl. Mit einer beeindruckenden Fläche von über 200 m² steht dir viel Platz zur Verfügung. Neben deinem eigenen Wohnbereich bietet das Haus eine separate, ebenerdige Einliegerwohnung mit einer Nettogrundfläche von 53 m². Diese Einheit eignet sich ideal zur Vermietung und kann zur Finanzierung des Eigenheims beitragen. Das Generation 13 Haus ermöglicht es dir, den Luxus eines großzügigen Wohnraums zu genießen und gleichzeitig von den Mieteinnahmen zu profitieren. Wähle dieses schicke Haus und erlebe Komfort und Möglichkeiten auf höchstem Niveau.
Sie haben Interesse?
Laden Sie sich jetzt Ihr kostenloses Exposé zu diesem Haus herunter:
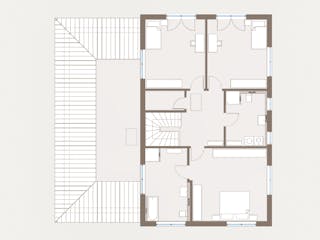
Grundrissfür Generation 13
Außenmaße
Länge: 13,94 m
Breite: 14,24 m
Grundrisse
Der Grundriss entspricht nicht Ihren Vorstellungen?
Passen Sie den Grundriss an Ihre persönlichen Bedürfnisse an und besprechen Sie Ihren individuellen Plan mit einem Bauberater des Anbieters.
Merkmale
Energiestandard und Förderung
Energiestandard
Effizienzhaus 40
U-Wert
0,12
Dach
Dachform
Walmdach
Dachneigung
22°
Kniestockhöhe
40 cm
Preisdetails für Generation 13
Ausbauhaus ab
Preis auf Anfrage
Dieser Preis ist ein Beispiel für den Anfang, ein Berater kann Ihnen ein detailliertes Angebot erstellen, das Ihren Bedürfnissen entspricht.
Möchten Sie bei Ihrem Projekt Geld sparen?
Durch einen Angebotsvergleich mit Bungalow.de können Sie bis zu 20 % Ihrer Baukosten sparen.
Über den Anbieter allkauf haus
Zum Anbieterprofil
Bewertungen
4,2
(114)

Bewertungen
4,2
114 BewertungenHervorragend
allkauf haus in Zahlen
Gründungsjahr
1984
Häuser im Angebot
50
Häuser pro Jahr
900
Häuser gesamt
>17000
Mitarbeiter
1300
Bewertungen von allkauf haus
Sehr freundlicher Kontakt und Kompetent.
Sehr freundlicher Kontakt und Kompetent.
23 März 2026Matthias F.
Sehr gute freundliche Beratung von Hr. Koy.
Sehr gute freundliche Beratung von Hr. Koy.
19 März 2026Barbara K.
sehr kompetent, umfassende Beratung in Poing.
sehr kompetent, umfassende Beratung in Poing.
12 März 2026Kay Oliver M.
Leistungsspektrum
Finanzierungsberatung
Preisgarantie
Bauzeit Garantie
Individuelle Planung
Blower Door Test
Persönliche Beratung für Ihre individuellen Wünsche
Finden Sie jetzt Ihren Ansprechpartner
allkauf haus
Auszeichnungen, Zertifikate & Mitgliedschaften

Ähnliche Häuser Für Generation 13