




Satteldach 160 von ASL Wohnungsbau
Ab 349.665 €
Bewertungen von ASL Wohnungsbau
0
(0)
Wohnfläche
160 m²
Zimmer
5
Ausbaustufe
Schlüsselfertig
Bauweise
Massivhaus
Etagen
1,5
Energiestandard
Effizienzhaus 55
Dachform
Satteldach
Hausart
Einfamilienhaus
Beschreibung
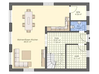
Das Satteldach 160 vereint klassische Architektur mit einer modernen Raumaufteilung und bietet auf über 160 m² Wohnfläche viel Platz für Familien. Im Erdgeschoss öffnet sich der großzügige Wohn-, Ess- und Kochbereich mit fast 49 m² zum Garten hin und bildet den lebendigen Mittelpunkt des Hauses. Eine separate Speisekammer sorgt für zusätzliche Ordnung und Stauraum, während ein Hauswirtschaftsraum und ein Gäste-WC die Alltagstauglichkeit komplettieren.
Im Obergeschoss liegen die privaten Rückzugsräume. Das Elternschlafzimmer mit rund 17 m² wird ergänzt durch zwei Kinderzimmer mit jeweils ca. 16 m² und 15 m². Ein weiteres Zimmer kann flexibel als Gäste- oder Arbeitszimmer genutzt werden. Das Familienbad mit über 11 m² bietet ausreichend Platz für alle und rundet die Etage ab. Die klare Trennung von gemeinschaftlichen Bereichen im Erdgeschoss und privaten Räumen im Obergeschoss macht das Satteldach 160 zu einem idealen Zuhause für Familien, die Wert auf Funktionalität und Komfort legen.
Sie haben Interesse?
Laden Sie sich jetzt Ihr kostenloses Exposé zu diesem Haus herunter:
Grundrissfür Satteldach 160
Außenmaße
Länge: 9,36 m
Breite: 10,86 m
Grundrisse
Der Grundriss entspricht nicht Ihren Vorstellungen?
Passen Sie den Grundriss an Ihre persönlichen Bedürfnisse an und besprechen Sie Ihren individuellen Plan mit einem Bauberater des Anbieters.
Merkmale
Energiestandard und Förderung
Energiestandard
Effizienzhaus 40
Effizienzhaus 40 EE
Effizienzhaus 40 NH
Effizienzhaus 40 Plus
Effizienzhaus 55
Effizienzhaus 55 EE
Effizienzhaus 55 NH
Dach
Dachform
Satteldach
Dachneigung
36°
Preisdetails für Satteldach 160
Schlüsselfertig ab
349.665 €
ab 1.052,64 €
Dieser Preis ist ein Beispiel für den Anfang, ein Berater kann Ihnen ein detailliertes Angebot erstellen, das Ihren Bedürfnissen entspricht.
Möchten Sie bei Ihrem Projekt Geld sparen?
Durch einen Angebotsvergleich mit Bungalow.de können Sie bis zu 20 % Ihrer Baukosten sparen.
Über den Anbieter ASL Wohnungsbau
Zum Anbieterprofil
Bewertungen
0
(0)

Bewertungen
0
0 BewertungenKeine
ASL Wohnungsbau in Zahlen
Gründungsjahr
2018
Häuser im Angebot
12
Häuser pro Jahr
10
Mitarbeiter
6
Leistungsspektrum
Finanzierungsberatung
Preisgarantie
Bauzeit Garantie
Individuelle Planung
Blower Door Test
Persönliche Beratung für Ihre individuellen Wünsche
Finden Sie jetzt Ihren Ansprechpartner
ASL Wohnungsbau
Ähnliche Häuser Für Satteldach 160