




BALANCE 145 V3 von Bien-Zenker
Ab 378.277 €
Bewertungen von Bien-Zenker
4,1
(271)
Wohnfläche
146 m²
Ausbaustufe
Schlüsselfertig
Bauweise
Fertighaus
Energiestandard
Effizienzhaus 55
Dachform
Flachdach
Hausart
Einfamilienhaus
Beschreibung
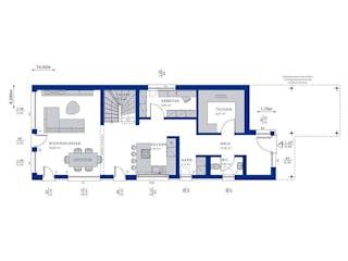
Einfamilienhaus mit großem, offenen Koch-Ess-Wohnbereich und Carport
Das BALANCE 145 ist ein clever konzipiertes Einfamilienhaus, das trotz seiner Größe hervorragend auch auf schmalen Grundstücken Platz findet. Puristisch-funktional beschreibt am besten das architektonische Konzept der Variante 3, deren integrierter Carport samt Eingangsüberdachung eine Klasse für sich darstellt.
Im Inneren überrascht das Haus mit einem Höchstmaß an Funktionalität durch das Gäste-WC am Eingang, und den gegenüber liegenden Technikraum. Dieser erübrigt eine Unterkellerung und weist üppige Flächen für hauswirtschaftliches Arbeiten auf. Es folgen Garderobenecke und Arbeitszimmer, bevor sich der Koch-Ess-Wohnbereich in einer Ausdehnung öffnet, die man kaum vermutet hätte. Nach oben führt eine platzsparende Treppe – in ein Luxus-Wohngeschoss! Mit zwei Bädern, einer Riesenankleide für die Eltern und zwei Kinderzimmern, die für den Nachwuchs ein Traum sind.
Der Preis bezieht sich auf die Ausbaustufe ZAF als Effizienzhaus 55 inkl. Bodenplatte gemäß aktuell gültiger Bau- und Leistungsbeschreibung. Grundrisse und Abbildungen können Extras zeigen. Flächenangaben nach DIN 277.
Sie haben Interesse?
Laden Sie sich jetzt Ihr kostenloses Exposé zu diesem Haus herunter:
Merkmale
Energiestandard und Förderung
Energiestandard
Effizienzhaus 40 Plus
Effizienzhaus 55
Plusenergiehaus
Dach
Dachform
Flachdach
Preisdetailsfür BALANCE 145 V3
Schlüsselfertig ab
378.277 €
ab 1.138,77 €
Dieser Preis ist ein Beispiel für den Anfang, ein Berater kann Ihnen ein detailliertes Angebot erstellen, das Ihren Bedürfnissen entspricht.
Möchten Sie bei Ihrem Projekt Geld sparen?
Durch einen Angebotsvergleich mit Bungalow.de können Sie bis zu 20 % Ihrer Baukosten sparen.
Über den Anbieter Bien-Zenker
Zum Anbieterprofil
Bewertungen
4,1
(271)

Bewertungen
4,1
271 BewertungenGut
Bien-Zenker in Zahlen
Gründungsjahr
1906
Häuser im Angebot
99
Häuser pro Jahr
> 100
Häuser gesamt
> 80.000
Mitarbeiter
> 600
Bewertungen von Bien-Zenker
Sind noch am Anfang
Sind noch am Anfang
17 Feb. 2026Marco L.
Sehr freundliche Mitarbeiterin . Wir konnten ...
Sehr freundliche Mitarbeiterin . Wir konnten schnell einen passenden Termin vereinbaren.
29 Jan. 2026Litke P.
Es waren 6 Unternehmen, die mich kontaktiert ...
Es waren 6 Unternehmen, die mich kontaktiert haben und ich habe derzeit mit 4 Unternehmen Termine gemacht.
21 Jan. 2026Heike S.
Leistungsspektrum
Finanzierungsberatung
Preisgarantie
Bauzeit Garantie
Individuelle Planung
Blower Door Test
Persönliche Beratung für Ihre individuellen Wünsche
Finden Sie jetzt Ihren Ansprechpartner
Bien-Zenker
Auszeichnungen, Zertifikate & Mitgliedschaften














Ähnliche Häuser Für BALANCE 145 V3