








Haus Bohlingen von Bodenseehaus
Preis auf Anfrage
Bewertungen von Bodenseehaus
4,0
(7)
Wohnfläche
355 m²
Bauweise
Fertighaus
Etagen
2
Energiestandard
Effizienzhaus 55
Dachform
Walmdach
Hausart
Einfamilienhaus
Beschreibung
Mit dem „Runden Turm“ im Bild-Hintergrund und dem Fluss Aach im Vordergrund ist das Wohnen in diesem dreistöckigen Bodenseehaus einfach ein Rundum-Erlebnis. Das Gebäude ist ökologisch sowie behindertengerecht, barrierefrei geplant und gebaut. Es verfügt über eine zentrale Luft-Wasser-Wärmepumpe mit Warmwasserspeicher und kontrollierter Be- und Entlüftung.
Die „vorgehängten“ Balkone bilden durch ihre separate Konstruktion keine Kältebrücken zum Haus und bieten hohen Freizeitwert – bei der Landschaft ganz besonders.
Preise auf Anfrage
Merkmale
- Fahrstuhl
- Gästezimmer
- Balkon
Sie haben Interesse?
Laden Sie sich jetzt Ihr kostenloses Exposé zu diesem Haus herunter:
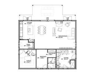
Grundrissfür Haus Bohlingen
Außenmaße
Länge: 13,5 m
Breite: 11,5 m
Grundrisse
Der Grundriss entspricht nicht Ihren Vorstellungen?
Passen Sie den Grundriss an Ihre persönlichen Bedürfnisse an und besprechen Sie Ihren individuellen Plan mit einem Bauberater des Anbieters.
Merkmale
Energiestandard und Förderung
Energiestandard
Effizienzhaus 55
Dach
Dachform
Walmdach
Dachneigung
22°
Preisdetails für Haus Bohlingen
Preis auf Anfrage
Dieser Preis ist ein Beispiel für den Anfang, ein Berater kann Ihnen ein detailliertes Angebot erstellen, das Ihren Bedürfnissen entspricht.
Möchten Sie bei Ihrem Projekt Geld sparen?
Durch einen Angebotsvergleich mit Bungalow.de können Sie bis zu 20 % Ihrer Baukosten sparen.
Über den Anbieter Bodenseehaus
Zum Anbieterprofil
Bewertungen
4,0
(7)

Bewertungen
4,0
7 BewertungenGut
Bodenseehaus in Zahlen
Gründungsjahr
1977
Häuser im Angebot
5
Häuser pro Jahr
50
Häuser gesamt
2150
Mitarbeiter
26
Bewertungen von Bodenseehaus
Über email Angebot erhalten un Fragen Beantwo...
Über email Angebot erhalten un Fragen Beantwortet
19 Apr. 2025Robert M.
Sehr freundlich, zuverlässig und kompetent. S...
Sehr freundlich, zuverlässig und kompetent. Sehr nette Beratung und Telefonat.
09 Juni 2024Elissa L.
Leistungsspektrum
Finanzierungsberatung
Preisgarantie
Bauzeit Garantie
Individuelle Planung
Blower Door Test
Persönliche Beratung für Ihre individuellen Wünsche
Finden Sie jetzt Ihren Ansprechpartner
Bodenseehaus
Ähnliche Häuser Für Haus Bohlingen