











Vitalis von Büdenbender Hausbau
Preis auf Anfrage
Bewertungen von Büdenbender Hausbau
4,1
(61)
Wohnfläche
165 m²
Zimmer
6
Ausbaustufe
Schlüsselfertig
Bauweise
Fertighaus
Etagen
2
Energiestandard
Effizienzhaus 40 Plus
Dachform
Satteldach
Hausart
Einfamilienhaus
Beschreibung
Puristische Architektur - klare Formensprache
Das Musterhaus Vitalis setzt neue Maßstäbe in Sachen Energieeffizienz, Haustechnik und Wohnkomfort. Die puristische Architektur, die klare, inspirierende Gestaltung in Verbindung mit der modernen, zukunftsweisenden Haustechnik schaffen im neuen Musterhaus Vitalis eine einzigartige Wohnatmosphäre, die begeistert. Der eigenständige Anbau verfügt zusätzlich über eine Wohnfläche von 43,80 m² (nicht im Preis enthalten).
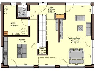
Im offen gestalteten, hellen Erdgeschoss mit seinen bodentiefen Fensterelementen dominiert der großzügige Wohn- und Essbereich, an den sich die luftige Küche mit Kochinsel anschließt. Von allen Bereichen des Wohnraumes aus gelangt man auf die teilüberdachte Terrasse und in den Garten. Dies ist der perfekte Platz, um sich gemütlich zurückzuziehen und zu entspannen. Im Erdgeschoss befinden sich außerdem ein praktischer Hauswirtschaftsraum und das Gäste-WC.
Von der Galerie im Obergeschoss erreicht man zwei freundliche Kinderzimmer, das separate Kinderbad und den luxuriösen Elterntrakt. Dem Elternschlafzimmer schließt sich die schicke Ankleide an. Das traumhaft schön gestaltete Bad lässt keine Wünsche offen. Es ist mit zwei Waschtischen, einer Badewanne, einer bodengleichen Dusche und WC ausgestattet.
Die separate Wohnung im Anbau verfügt über einen Wohn-und Essbereich, Küche, Schlafzimmer und ein Duschbad. Großformatige Fensterelemente sowie klare Farben und Materialien schaffen eine harmonische Atmosphäre in der gesamten Innen- und Außengestaltung.
Besonders hervorzuheben ist die haustechnische Ausstattung des Musterhauses mit der neuesten Viessmann Haustechnik, nämlich der Vitocal 300 A Luft-Wasser-Wärmepumpe, der Photovoltaikanlage mit Batteriespeicher und der kontrollierten Be- und Entlüftung mit Wärmerückgewinnung. Technisch innovativ ist der Einbau des Smart Home Systems Vitocomfort 200 von Viessmann. Dieses System vernetzt alle technischen Geräte im Haushalt und man kann Licht, Rollläden und Heizung ganz bequem mit einer App per Smartphone steuern.
Selbstverständlich ist das Büdenbender Musterhaus Vitalis mit der bewährten Klimawand atmo-tec® ausgestattet, deren patentierter Wandaufbau für eine natürliche Feuchtigkeitsregulation sorgt und damit ein gesundes, angenehmes Wohnklima schafft.
Angaben zum Preis: Schlüsselfertig gem. allgemeiner Bau- und Leistungsbeschreibung TB 02/19, ab OK Bodenplatte. Änderungen am Grundriss sind möglich.
Sie haben Interesse?
Laden Sie sich jetzt Ihr kostenloses Exposé zu diesem Haus herunter:
Grundrissfür Vitalis
Außenmaße
Länge: 12,1 m
Breite: 8,5 m
Grundrisse
Der Grundriss entspricht nicht Ihren Vorstellungen?
Passen Sie den Grundriss an Ihre persönlichen Bedürfnisse an und besprechen Sie Ihren individuellen Plan mit einem Bauberater des Anbieters.
Merkmale
Energiestandard und Förderung
Energiestandard
Effizienzhaus 40
Effizienzhaus 40 Plus
U-Wert
0,141
Dach
Dachform
Satteldach
Dachneigung
30°
Kniestockhöhe
25 cm
Preisdetails für Vitalis
Schlüsselfertig ab
Preis auf Anfrage
Dieser Preis ist ein Beispiel für den Anfang, ein Berater kann Ihnen ein detailliertes Angebot erstellen, das Ihren Bedürfnissen entspricht.
Möchten Sie bei Ihrem Projekt Geld sparen?
Durch einen Angebotsvergleich mit Bungalow.de können Sie bis zu 20 % Ihrer Baukosten sparen.
Über den Anbieter Büdenbender Hausbau
Zum Anbieterprofil
Bewertungen
4,1
(61)

Bewertungen
4,1
61 BewertungenGut
Büdenbender Hausbau in Zahlen
Gründungsjahr
1946
Häuser im Angebot
36
Häuser pro Jahr
165
Häuser gesamt
7.000
Mitarbeiter
170
Leistungsspektrum
Finanzierungsberatung
Preisgarantie
Bauzeit Garantie
Individuelle Planung
Blower Door Test
Persönliche Beratung für Ihre individuellen Wünsche
Finden Sie jetzt Ihren Ansprechpartner
Büdenbender Hausbau
Ähnliche Häuser Für Vitalis