







Duo Stadtvilla 130 von ECO System HAUS
Ab 292.600 €
Bewertungen von ECO System HAUS
3,2
(5)
Wohnfläche
130 m²
Zimmer
5
Ausbaustufe
Schlüsselfertig
Bauweise
Massivhaus
Energiestandard
Effizienzhaus 40
Dachform
Walmdach
Hausart
Doppelhaus
Beschreibung
Wir bauen Doppelhäuser ab 100 m² Wohnfläche je Haushälfte bei freier Raum- und Grundrissaufteilung individuell nach Ihren Wünschen!
Wenn sich zwei Bauherren ein Grundstück teilen, kann dennoch jeder dabei seinen Wohnstil verwirklichen. Denn in unseren Doppelhäusern Duo lassen sich unterschiedliche Raum- und Grundrissaufteilungen realisieren. Gut zu wissen, dass alle Bauherren von unseren umfangreichen Inklusivleistungen profitieren.
Auf unserer Homepage finden Sie unter anderem eine Homestory mit vielen Infos und Bildern zur Duo Stadtvilla 130!
Wir bauen Massivhäuser in Schleswig-Holstein, Hamburg, Bremen, Niedersachsen, Mecklenburg-Vorpommern, Brandenburg und Berlin. Vereinbaren Sie gern einen individuellen Besichtigungstermin bei einem unserer 350 Musterhauskunden!
Sie haben Interesse?
Laden Sie sich jetzt Ihr kostenloses Exposé zu diesem Haus herunter:
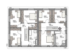
Grundrissfür Duo Stadtvilla 130
Grundrisse
Der Grundriss entspricht nicht Ihren Vorstellungen?
Passen Sie den Grundriss an Ihre persönlichen Bedürfnisse an und besprechen Sie Ihren individuellen Plan mit einem Bauberater des Anbieters.
Merkmale
Energiestandard und Förderung
Energiestandard
Effizienzhaus 40
Effizienzhaus 40 Plus
Effizienzhaus 55
Dach
Dachform
Walmdach
Preisdetails für Duo Stadtvilla 130
Schlüsselfertig ab
292.600 €
ab 880,85 €
Dieser Preis ist ein Beispiel für den Anfang, ein Berater kann Ihnen ein detailliertes Angebot erstellen, das Ihren Bedürfnissen entspricht.
Möchten Sie bei Ihrem Projekt Geld sparen?
Durch einen Angebotsvergleich mit Bungalow.de können Sie bis zu 20 % Ihrer Baukosten sparen.
Über den Anbieter ECO System HAUS
Zum Anbieterprofil
Bewertungen
3,2
(5)

Bewertungen
3,2
5 BewertungenAkzeptabel
ECO System HAUS in Zahlen
Gründungsjahr
1996
Häuser im Angebot
23
Häuser pro Jahr
> 100
Mitarbeiter
51-100
Bewertungen von ECO System HAUS
3-4 Jahre Planung + Bau Katastrophe. 2 Jahre...
3-4 Jahre Planung + Bau Katastrophe. 2 Jahre Planung. Die schlechte Kommunikation kommt nach ~ 2 Jahren zum erliegen. Ecohaus antwortet nicht mehr. Anrufe, Emails und Einschreiben bleiben auch nach ~9 Monaten unbeantwortet. Treibt die Baukosten unnötig in die Höhe. Teurer Anbieter. Ecohaus versteht vieles nicht.
16 Apr. 2026Matthias M.
Trifft unseren Geschmack
Trifft unseren Geschmack
30 Nov. 2024Anne W.
Wir mussten das Projekt verschieben, da der B...
Wir mussten das Projekt verschieben, da der Baugrund noch nicht erworben wurde.
15 Sep. 2024Delf J.
Persönliche Beratung für Ihre individuellen Wünsche
Finden Sie jetzt Ihren Ansprechpartner
ECO System HAUS
Ähnliche Häuser Für Duo Stadtvilla 130