










Kapitänshaus 180 von ECO System HAUS
Ab 385.500 €
Bewertungen von ECO System HAUS
3,2
(5)
Wohnfläche
0 m²
Zimmer
7
Ausbaustufe
Schlüsselfertig
Bauweise
Massivhaus
Etagen
1,5
Energiestandard
Effizienzhaus 40
Dachform
Satteldach
Beschreibung
Merkmale
- Gästezimmer
Sie haben Interesse?
Laden Sie sich jetzt Ihr kostenloses Exposé zu diesem Haus herunter:
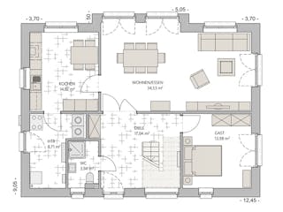
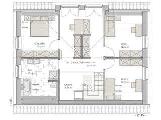
Grundrissfür Kapitänshaus 180
Außenmaße
Länge: 9,05 m
Breite: 12,45 m
Grundrisse
Der Grundriss entspricht nicht Ihren Vorstellungen?
Passen Sie den Grundriss an Ihre persönlichen Bedürfnisse an und besprechen Sie Ihren individuellen Plan mit einem Bauberater des Anbieters.
Merkmale
Energiestandard und Förderung
Energiestandard
Effizienzhaus 40
Dach
Dachform
Satteldach
Preisdetails für Kapitänshaus 180
Schlüsselfertig ab
385.500 €
ab 1.160,52 €
Dieser Preis ist ein Beispiel für den Anfang, ein Berater kann Ihnen ein detailliertes Angebot erstellen, das Ihren Bedürfnissen entspricht.
Möchten Sie bei Ihrem Projekt Geld sparen?
Durch einen Angebotsvergleich mit Bungalow.de können Sie bis zu 20 % Ihrer Baukosten sparen.
Über den Anbieter ECO System HAUS
Zum Anbieterprofil
Bewertungen
3,2
(5)

Bewertungen
3,2
5 BewertungenAkzeptabel
ECO System HAUS in Zahlen
Gründungsjahr
1996
Häuser im Angebot
23
Häuser pro Jahr
> 100
Mitarbeiter
51-100
Bewertungen von ECO System HAUS
3-4 Jahre Planung + Bau Katastrophe. 2 Jahre...
3-4 Jahre Planung + Bau Katastrophe. 2 Jahre Planung. Die schlechte Kommunikation kommt nach ~ 2 Jahren zum erliegen. Ecohaus antwortet nicht mehr. Anrufe, Emails und Einschreiben bleiben auch nach ~9 Monaten unbeantwortet. Treibt die Baukosten unnötig in die Höhe. Teurer Anbieter. Ecohaus versteht vieles nicht.
16 Apr. 2026Matthias M.
Trifft unseren Geschmack
Trifft unseren Geschmack
30 Nov. 2024Anne W.
Wir mussten das Projekt verschieben, da der B...
Wir mussten das Projekt verschieben, da der Baugrund noch nicht erworben wurde.
15 Sep. 2024Delf J.
Persönliche Beratung für Ihre individuellen Wünsche
Finden Sie jetzt Ihren Ansprechpartner
ECO System HAUS
Ähnliche Häuser Für Kapitänshaus 180