









Cilia von Fingerhut Haus
Ab 474.890 €
Bewertungen von Fingerhut Haus
4,2
(100)
Wohnfläche
142 m²
Zimmer
3,5
Ausbaustufe
Schlüsselfertig
Bauweise
Fertighaus
Etagen
1
Energiestandard
Effizienzhaus 55
Dachform
Walmdach
Hausart
Einfamilienhaus
Beschreibung
Vorgesorgt!
Bauen ohne Hindernisse - für viele ein absolut zukunftsfähiges Wohnkonzept. Doch auch mit 'nur' einer Ebene, muss man auf nichts verzichten. Unser Haus Cilia ist das beste Beispiel für das durchdachte Konzept des Bungalows.
Das ebenerdige Wohnhaus wirkt auf den ersten Blick sehr geradlinig. Durch die Walmdachkonstruktion hat das Wohnhaus einiges im Petto; Der Garagenanbau und das Haus bieten praktisch durch ein Verbindungsdach einen wettergeschützten Durchgang. So können beispielsweise Einkäufe leicht vom Auto in den Hauswirtschaftsraum gebracht werden, ohne dabei nasse Füße zu bekommen.
Ein Mauerrücksprung am Hauseingang wirkt nicht nur optisch hochwertig, auch schützte es den Eingangsbereich vor Wind und Wetter. Im Hauswinkel wurde geschickt eine Sonnenterrasse platziert, sodass diese von beiden Seiten vor Wind und Blicken geschützt ist.
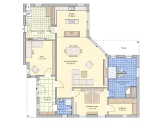
Beim Betreten des Hauses findet der Besucher zunächst die Gästetoilette und ein Büro, abgetrennt durch den Flur vom eigentlichen Wohnraum und dem Schlafbereich.
Der Schlafbereich umfasst das lichtdurchflutete Schlafzimmer, sowie die daran anschließende Ankleide und das große Wellnessbad. Die ebenerdige Dusche und die verglaste Saune lassen den Raum besonders hochwertig und extravagant wirken.
Die großen Fensterfronten ermöglichen einen direkt Blick in den Garten. Der offene Wohn-, Ess- und Kochbereich wird durch eine mittig im Wohnraum platzierte Doppelglasschiebetür mit der Terrasse verbunden. So ist auch hier ein barrierefreier Zugang geschaffen.
Der Bungalow Cilia zeigt: Komfortables und praktisches Wohnen auf einer Ebene ist nicht nur möglich, sondern auch sehr schön
Angaben zum Preis:
Die gezeigten Abbildungen zeigen zum Teil Sonderleistungen gegen Mehrpreis. Preis der entsprechenden Ausbaustufe inkl. Fingerhut-Bodenplatte und 19 % MwSt. gemäß der Fingerhut-Bau- und Leistungsbeschreibung 1012, Preisliste P05/25.
Sie haben Interesse?
Laden Sie sich jetzt Ihr kostenloses Exposé zu diesem Haus herunter:
Grundrissfür Cilia
Grundrisse
Der Grundriss entspricht nicht Ihren Vorstellungen?
Passen Sie den Grundriss an Ihre persönlichen Bedürfnisse an und besprechen Sie Ihren individuellen Plan mit einem Bauberater des Anbieters.
Merkmale
Energiestandard und Förderung
Energiestandard
Effizienzhaus 40
Effizienzhaus 40 Plus
Effizienzhaus 55
Plusenergiehaus
U-Wert
0,14
Dach
Dachform
Walmdach
Dachneigung
22°
Preisdetails für Cilia
Schlüsselfertig ab
474.890 €
Ausbauhaus ab311.946 €
ab 1.429,62 €
Dieser Preis ist ein Beispiel für den Anfang, ein Berater kann Ihnen ein detailliertes Angebot erstellen, das Ihren Bedürfnissen entspricht.
Möchten Sie bei Ihrem Projekt Geld sparen?
Durch einen Angebotsvergleich mit Bungalow.de können Sie bis zu 20 % Ihrer Baukosten sparen.
Über den Anbieter Fingerhut Haus
Zum Anbieterprofil
Bewertungen
4,2
(100)

Bewertungen
4,2
100 BewertungenHervorragend
Fingerhut Haus in Zahlen
Gründungsjahr
1903
Häuser im Angebot
100
Mitarbeiter
145
Bewertungen von Fingerhut Haus
Tolle Qualität, Transparenz. Werden jedoch d...
Tolle Qualität, Transparenz. Werden jedoch das alte Haus nicht abreißen lassen sondern Sanieren. Das spart viel Geld.
15 März 2026Martina W.
Sehr nette und kompetente Beratung.
Sehr nette und kompetente Beratung.
01 Feb. 2026Torsten D.
kein kommentar
kein kommentar
10 Jan. 2026Bernd W.
Leistungsspektrum
Finanzierungsberatung
Preisgarantie
Bauzeit Garantie
Individuelle Planung
Blower Door Test
Persönliche Beratung für Ihre individuellen Wünsche
Finden Sie jetzt Ihren Ansprechpartner
Fingerhut Haus
Ähnliche Häuser Für Cilia