




Duett 175 von Fingerhut Haus
Ab 482.163 €
Bewertungen von Fingerhut Haus
4,2
(100)
Wohnfläche
157 m²
Zimmer
7
Ausbaustufe
Schlüsselfertig
Bauweise
Fertighaus
Etagen
2,5
Energiestandard
Effizienzhaus 55
Dachform
Pultdach
Hausart
Doppelhaus
Beschreibung
Sonnenseite hoch drei
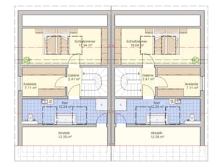
In dem exklusiven Duett 175 dreht sich alles um die Zahl 3: Platz auf drei Ebenen für eine Familie mit bis zu drei Kindern. Ein Trio unschlagbarer Vorteile: Individualität, Exklusivität und Modernität. Bereits das Entree des Hauses lässt die Freiräume erkennen, die sich hier eröffnen. Das klar strukturierte Erdgeschoss bringt den großzügig angelegten Wohn-, Ess und separaten Küchenbereich in Einklang. Dusche/WC, der Abstellraum und der Hauswirtschaftsraum runden das hochwertig ausgestattete Erdgeschoss ab. Die Wohnqualität setzt sich im Ober- und Dachgeschoss nahtlos fort. An die Galerie im Obergeschoss grenzen drei mögliche Kinderzimmer (alternativ Raum für Homeoffice) - ebenso wie das 12 m² große Bad. Der Abstellraum bietet zusätzlichen Stauraum. Im Dachgeschoss - die exklusive Penthouse Etage - präsentiert sich ein optimales Refugium für die Eltern: ein komfortables Schlafzimmer mit geräumiger angrenzender Ankleide. Das gegenüberliegende exklusive Bad sorgt für Wellnessfeeling.
Angaben zum Preis:
Die gezeigten Abbildungen zeigen zum Teil Sonderleistungen gegen Mehrpreis. Preis der entsprechenden Ausbaustufe inkl. Fingerhut-Bodenplatte und 19 % MwSt. gemäß der Fingerhut-Bau- und Leistungsbeschreibung 1012, Preisliste P05/25.
Sie haben Interesse?
Laden Sie sich jetzt Ihr kostenloses Exposé zu diesem Haus herunter:
Grundrissfür Duett 175
Grundrisse
Der Grundriss entspricht nicht Ihren Vorstellungen?
Passen Sie den Grundriss an Ihre persönlichen Bedürfnisse an und besprechen Sie Ihren individuellen Plan mit einem Bauberater des Anbieters.
Merkmale
Energiestandard und Förderung
Energiestandard
Effizienzhaus 40
Effizienzhaus 40 Plus
Effizienzhaus 55
Plusenergiehaus
U-Wert
0,14
Dach
Dachform
Pultdach
Dachneigung
30°
Preisdetails für Duett 175
Schlüsselfertig ab
482.163 €
Ausbauhaus ab282.319 €
ab 1.451,51 €
Dieser Preis ist ein Beispiel für den Anfang, ein Berater kann Ihnen ein detailliertes Angebot erstellen, das Ihren Bedürfnissen entspricht.
Möchten Sie bei Ihrem Projekt Geld sparen?
Durch einen Angebotsvergleich mit Bungalow.de können Sie bis zu 20 % Ihrer Baukosten sparen.
Über den Anbieter Fingerhut Haus
Zum Anbieterprofil
Bewertungen
4,2
(100)

Bewertungen
4,2
100 BewertungenHervorragend
Fingerhut Haus in Zahlen
Gründungsjahr
1903
Häuser im Angebot
100
Mitarbeiter
145
Bewertungen von Fingerhut Haus
Tolle Qualität, Transparenz. Werden jedoch d...
Tolle Qualität, Transparenz. Werden jedoch das alte Haus nicht abreißen lassen sondern Sanieren. Das spart viel Geld.
15 März 2026Martina W.
Sehr nette und kompetente Beratung.
Sehr nette und kompetente Beratung.
01 Feb. 2026Torsten D.
kein kommentar
kein kommentar
10 Jan. 2026Bernd W.
Leistungsspektrum
Finanzierungsberatung
Preisgarantie
Bauzeit Garantie
Individuelle Planung
Blower Door Test
Persönliche Beratung für Ihre individuellen Wünsche
Finden Sie jetzt Ihren Ansprechpartner
Fingerhut Haus
Ähnliche Häuser Für Duett 175