



Linea von Fingerhut Haus
Ab 531.052 €
Bewertungen von Fingerhut Haus
4,2
(100)
Wohnfläche
181 m²
Zimmer
5
Ausbaustufe
Schlüsselfertig
Bauweise
Fertighaus
Etagen
2
Energiestandard
Effizienzhaus 55
Dachform
Flachdach
Hausart
Einfamilienhaus
Beschreibung
Zurück in die Zukunft
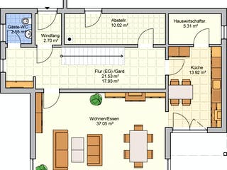
Bauhausarchitektur mit zeitloser Ästhetik - modern, ausdrucksstark und mit luxuriösen Details. Geometrische Formen bestimmen bei diesem Hausentwurf das gesamte Konzept. Von außen sorgen ein Mix aus Materialien, dem Außenputz und eine Teil-Holzverschalung für eine moderne Optik. Der Grundriss des Hauses verbindet einen modernen Look und Funktionalität perfekt miteinander. Im Erdgeschoss finden ein Gäste-WC, eine Abstellkammer und ein Hauswirtschaftraum ihren Platz. Der große Wohn- und Essbereich bildet das Herzstück des Geschosses. Die Küche ist direkt mit dem großen Raum verbunden. Durch große Fenster wird der gesamte Raum mit Licht durchflutet. Im Dachgeschoss bietet die große Galerie Platz zum Entspannen. Neben dem großen Badezimmer und den beiden Kinderzimmern findet hier noch ein Schlafzimmer mit anschließender Ankleide und direktem Zugang zur Terrasse Platz.
Angaben zum Preis:
Die gezeigten Abbildungen zeigen zum Teil Sonderleistungen gegen Mehrpreis. Preis der entsprechenden Ausbaustufe inkl. Fingerhut-Bodenplatte und 19 % MwSt. gemäß der Fingerhut-Bau- und Leistungsbeschreibung 1012, Preisliste P05/25.
Merkmale
- Dachterrasse
Sie haben Interesse?
Laden Sie sich jetzt Ihr kostenloses Exposé zu diesem Haus herunter:
Grundrissfür Linea
Grundrisse
Der Grundriss entspricht nicht Ihren Vorstellungen?
Passen Sie den Grundriss an Ihre persönlichen Bedürfnisse an und besprechen Sie Ihren individuellen Plan mit einem Bauberater des Anbieters.
Merkmale
Energiestandard und Förderung
Energiestandard
Effizienzhaus 40
Effizienzhaus 40 Plus
Effizienzhaus 55
Plusenergiehaus
U-Wert
0,14
Dach
Dachform
Flachdach
Preisdetails für Linea
Schlüsselfertig ab
531.052 €
Ausbauhaus ab353.387 €
ab 1.598,69 €
Dieser Preis ist ein Beispiel für den Anfang, ein Berater kann Ihnen ein detailliertes Angebot erstellen, das Ihren Bedürfnissen entspricht.
Möchten Sie bei Ihrem Projekt Geld sparen?
Durch einen Angebotsvergleich mit Bungalow.de können Sie bis zu 20 % Ihrer Baukosten sparen.
Über den Anbieter Fingerhut Haus
Zum Anbieterprofil
Bewertungen
4,2
(100)

Bewertungen
4,2
100 BewertungenHervorragend
Fingerhut Haus in Zahlen
Gründungsjahr
1903
Häuser im Angebot
100
Mitarbeiter
145
Bewertungen von Fingerhut Haus
Tolle Qualität, Transparenz. Werden jedoch d...
Tolle Qualität, Transparenz. Werden jedoch das alte Haus nicht abreißen lassen sondern Sanieren. Das spart viel Geld.
15 März 2026Martina W.
Sehr nette und kompetente Beratung.
Sehr nette und kompetente Beratung.
01 Feb. 2026Torsten D.
kein kommentar
kein kommentar
10 Jan. 2026Bernd W.
Leistungsspektrum
Finanzierungsberatung
Preisgarantie
Bauzeit Garantie
Individuelle Planung
Blower Door Test
Persönliche Beratung für Ihre individuellen Wünsche
Finden Sie jetzt Ihren Ansprechpartner
Fingerhut Haus
Ähnliche Häuser Für Linea