




Felico von Fingerhut Haus
Ab 498.985 €
Bewertungen von Fingerhut Haus
4,2
(100)
Wohnfläche
157 m²
Zimmer
6
Ausbaustufe
Schlüsselfertig
Bauweise
Fertighaus
Etagen
1,5
Energiestandard
Effizienzhaus 55
Dachform
Satteldach
Hausart
Einfamilienhaus
Beschreibung
Die Sonnenseite des Lebens
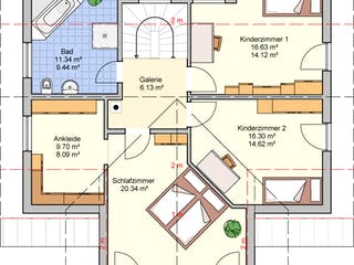
Unser Hausentwurf Felico ist nicht nur von außen wunderschön und mit liebevollen Details versehen. Auch der Grundriss ist bis ins letzte Detail perfekt durchdacht. Von der Diele aus führt eine Tür direkt in das Büro und das Gäste-WC, sowie den Hauswirtschaftraum. Eine große Flügeltüre eröffnet den Zugang zu dem Herzstück des Hauses und Treffpunkt der gesamten Familie - Der große Ess- Wohn und Kochbereich bietet ausreichend Platz um gemeinsam Zeit zu verbringen. Hier sorgt der Giebel geschickt für eine Abtrennung des Wohn- und Essbereiches, ohne dass dafür die charakterisierende Transparenz aufgegeben werden muss. Die bodentiefen Fenster und Fenstertüren durchfluten den gesamten Raum mit viel Licht und sorgen für einen wunderbaren Ausblick. Über die Treppe gelangt man in das Dachgeschoss. Hier wurden zwei Kinderzimmer, ein großes Badezimmer und das elterliche Schlafzimmer mit anschließender Ankleide eingeplant. Die schräge Wand und der Giebel sorgen für eine außergewöhnliche Raumaufteilung. Die bodentiefen Flügelfenster versorgen den Raum mit viel natürlichem Licht. Vom Schlafzimmer aus kann der schöne Balkon betreten werden.
Angaben zum Preis:
Die gezeigten Abbildungen zeigen zum Teil Sonderleistungen gegen Mehrpreis. Preis der entsprechenden Ausbaustufe inkl. Fingerhut-Bodenplatte und 19 % MwSt. gemäß der Fingerhut-Bau- und Leistungsbeschreibung 1012, Preisliste P05/25.
Merkmale
- Gästezimmer
Sie haben Interesse?
Laden Sie sich jetzt Ihr kostenloses Exposé zu diesem Haus herunter:
Grundrissfür Felico
Grundrisse
Der Grundriss entspricht nicht Ihren Vorstellungen?
Passen Sie den Grundriss an Ihre persönlichen Bedürfnisse an und besprechen Sie Ihren individuellen Plan mit einem Bauberater des Anbieters.
Merkmale
Energiestandard und Förderung
Energiestandard
Effizienzhaus 40
Effizienzhaus 40 Plus
Effizienzhaus 55
Plusenergiehaus
U-Wert
0,14
Dach
Dachform
Satteldach
Dachneigung
30°
Kniestockhöhe
140 cm
Preisdetails für Felico
Schlüsselfertig ab
498.985 €
Ausbauhaus ab319.033 €
ab 1.502,15 €
Dieser Preis ist ein Beispiel für den Anfang, ein Berater kann Ihnen ein detailliertes Angebot erstellen, das Ihren Bedürfnissen entspricht.
Möchten Sie bei Ihrem Projekt Geld sparen?
Durch einen Angebotsvergleich mit Bungalow.de können Sie bis zu 20 % Ihrer Baukosten sparen.
Über den Anbieter Fingerhut Haus
Zum Anbieterprofil
Bewertungen
4,2
(100)

Bewertungen
4,2
100 BewertungenHervorragend
Fingerhut Haus in Zahlen
Gründungsjahr
1903
Häuser im Angebot
100
Mitarbeiter
145
Bewertungen von Fingerhut Haus
Tolle Qualität, Transparenz. Werden jedoch d...
Tolle Qualität, Transparenz. Werden jedoch das alte Haus nicht abreißen lassen sondern Sanieren. Das spart viel Geld.
15 März 2026Martina W.
Sehr nette und kompetente Beratung.
Sehr nette und kompetente Beratung.
01 Feb. 2026Torsten D.
kein kommentar
kein kommentar
10 Jan. 2026Bernd W.
Leistungsspektrum
Finanzierungsberatung
Preisgarantie
Bauzeit Garantie
Individuelle Planung
Blower Door Test
Persönliche Beratung für Ihre individuellen Wünsche
Finden Sie jetzt Ihren Ansprechpartner
Fingerhut Haus
Ähnliche Häuser Für Felico