












Tasko von Fingerhut Haus
Ab 973.096 €
Bewertungen von Fingerhut Haus
4,2
(100)
Wohnfläche
383 m²
Zimmer
9
Ausbaustufe
Schlüsselfertig
Bauweise
Fertighaus
Etagen
3
Energiestandard
Effizienzhaus 55
Dachform
Pultdach
Hausart
Zweifamilienhaus
Beschreibung
Individuell geplant
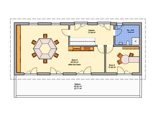
Unser Haus Tasko wurde für ein Unternehmen geplant - das macht deutlich: Individuell wie ein Fingerabdruck. Das Pultdachhaus erstreckt sich über 3 Etagen. Im Erdgeschoss wurden ein großer Empfangsbereich und eine Küche untergebracht. Des Weiteren finden hier zwei Einzelbüros, ein Konferenzraum, sowie eine 'Relaxzone' und die Toiletten ihren Platz. In der zweiten Etage wurden fünf Einzel-Büros eingeplant. Ebenso eine Abstellkammer und ein weiteres WC.
Das Dachgeschoss ist wie gemacht für einen Gemeinschaftsraum mit Küche oder einen weiteren Konferenzraum. Ebenso finden wir hier ein großes Badezimmer mit Dusche und ein weiteres Büro. Das Highlight des hochmodernen Bürogebäudes findet sich im Dachgeschoss. Hier können die Mitarbeiter Ihre Pause gemütlich in einer Lounge verbringen. Gemeinschaftliche After-Work Partys können hier schön stattfinden. Gerade an den warmen Sommer-Tagen bietet sich der Balkon für ein solches Event gut an. Die bodentiefen Fenster sorgen für lichtdurchflutete Räume und eine angenehme Atmosphäre.
Angaben zum Preis:
Die gezeigten Abbildungen zeigen zum Teil Sonderleistungen gegen Mehrpreis. Preis der entsprechenden Ausbaustufe inkl. Fingerhut-Bodenplatte und 19 % MwSt. gemäß der Fingerhut-Bau- und Leistungsbeschreibung 1012, Preisliste P05/25.
Sie haben Interesse?
Laden Sie sich jetzt Ihr kostenloses Exposé zu diesem Haus herunter:
Grundrissfür Tasko
Grundrisse
Der Grundriss entspricht nicht Ihren Vorstellungen?
Passen Sie den Grundriss an Ihre persönlichen Bedürfnisse an und besprechen Sie Ihren individuellen Plan mit einem Bauberater des Anbieters.
Merkmale
Energiestandard und Förderung
Energiestandard
Effizienzhaus 40
Effizienzhaus 40 Plus
Effizienzhaus 55
Plusenergiehaus
U-Wert
0,14
Dach
Dachform
Pultdach
Dachneigung
10°
Preisdetails für Tasko
Schlüsselfertig ab
973.096 €
Ausbauhaus ab682.655 €
ab 2.929,42 €
Dieser Preis ist ein Beispiel für den Anfang, ein Berater kann Ihnen ein detailliertes Angebot erstellen, das Ihren Bedürfnissen entspricht.
Möchten Sie bei Ihrem Projekt Geld sparen?
Durch einen Angebotsvergleich mit Bungalow.de können Sie bis zu 20 % Ihrer Baukosten sparen.
Über den Anbieter Fingerhut Haus
Zum Anbieterprofil
Bewertungen
4,2
(100)

Bewertungen
4,2
100 BewertungenHervorragend
Fingerhut Haus in Zahlen
Gründungsjahr
1903
Häuser im Angebot
100
Mitarbeiter
145
Bewertungen von Fingerhut Haus
Tolle Qualität, Transparenz. Werden jedoch d...
Tolle Qualität, Transparenz. Werden jedoch das alte Haus nicht abreißen lassen sondern Sanieren. Das spart viel Geld.
15 März 2026Martina W.
Sehr nette und kompetente Beratung.
Sehr nette und kompetente Beratung.
01 Feb. 2026Torsten D.
kein kommentar
kein kommentar
10 Jan. 2026Bernd W.
Leistungsspektrum
Finanzierungsberatung
Preisgarantie
Bauzeit Garantie
Individuelle Planung
Blower Door Test
Persönliche Beratung für Ihre individuellen Wünsche
Finden Sie jetzt Ihren Ansprechpartner
Fingerhut Haus
Ähnliche Häuser Für Tasko