



Junto 168 von Fingerhut Haus
Ab 599.262 €
Bewertungen von Fingerhut Haus
4,2
(100)
Wohnfläche
160 m²
Zimmer
7
Ausbaustufe
Schlüsselfertig
Bauweise
Fertighaus
Etagen
2
Energiestandard
Effizienzhaus 55
Dachform
Pultdach
Hausart
Zweifamilienhaus
Beschreibung
Raffinierter Grundriss und modernste Bauweise
Die verschiedenen Dachformen verleihen dem Haus einen ganz besonderen Look. Individuell wie die Dächer, sind auch die beiden Wohnungen gestaltet. Unter dem Pultdachhaus birgt sich eine Wohnung mit Platz für einen zwei-Personenhaushalt auf zwei Etagen. Unter dem Flachdachhaus ist ebenso Platz für ein Paar, wobei diese Wohnung ohne Treppen auch seniorengerecht gestaltet wurde.
Angaben zum Preis:
Die gezeigten Abbildungen zeigen zum Teil Sonderleistungen gegen Mehrpreis. Preis der entsprechenden Ausbaustufe inkl. Fingerhut-Bodenplatte und 19 % MwSt. gemäß der Fingerhut-Bau- und Leistungsbeschreibung 1012, Preisliste P05/25.
Sie haben Interesse?
Laden Sie sich jetzt Ihr kostenloses Exposé zu diesem Haus herunter:
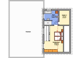
Grundrissfür Junto 168
Grundrisse
Der Grundriss entspricht nicht Ihren Vorstellungen?
Passen Sie den Grundriss an Ihre persönlichen Bedürfnisse an und besprechen Sie Ihren individuellen Plan mit einem Bauberater des Anbieters.
Merkmale
Energiestandard und Förderung
Energiestandard
Effizienzhaus 40
Effizienzhaus 40 Plus
Effizienzhaus 55
Plusenergiehaus
U-Wert
0,14
Dach
Dachform
Pultdach
Dachneigung
15°
Kniestockhöhe
150 cm
Preisdetails für Junto 168
Schlüsselfertig ab
599.262 €
Ausbauhaus ab349.483 €
ab 1.804,03 €
Dieser Preis ist ein Beispiel für den Anfang, ein Berater kann Ihnen ein detailliertes Angebot erstellen, das Ihren Bedürfnissen entspricht.
Möchten Sie bei Ihrem Projekt Geld sparen?
Durch einen Angebotsvergleich mit Bungalow.de können Sie bis zu 20 % Ihrer Baukosten sparen.
Über den Anbieter Fingerhut Haus
Zum Anbieterprofil
Bewertungen
4,2
(100)

Bewertungen
4,2
100 BewertungenHervorragend
Fingerhut Haus in Zahlen
Gründungsjahr
1903
Häuser im Angebot
100
Mitarbeiter
145
Bewertungen von Fingerhut Haus
Tolle Qualität, Transparenz. Werden jedoch d...
Tolle Qualität, Transparenz. Werden jedoch das alte Haus nicht abreißen lassen sondern Sanieren. Das spart viel Geld.
15 März 2026Martina W.
Sehr nette und kompetente Beratung.
Sehr nette und kompetente Beratung.
01 Feb. 2026Torsten D.
kein kommentar
kein kommentar
10 Jan. 2026Bernd W.
Leistungsspektrum
Finanzierungsberatung
Preisgarantie
Bauzeit Garantie
Individuelle Planung
Blower Door Test
Persönliche Beratung für Ihre individuellen Wünsche
Finden Sie jetzt Ihren Ansprechpartner
Fingerhut Haus
Ähnliche Häuser Für Junto 168