












Mondo von Fingerhut Haus
Ab 637.631 €
Bewertungen von Fingerhut Haus
4,2
(100)
Wohnfläche
207 m²
Zimmer
7,5
Ausbaustufe
Schlüsselfertig
Bauweise
Fertighaus
Etagen
1,5
Energiestandard
Effizienzhaus 55
Dachform
Satteldach
Hausart
Einfamilienhaus
Beschreibung
Wohn(t)raum auf zwei Etagen
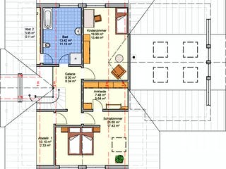
Von der Wohnzimmercouch bis unters Dach sehen, gläserne Wände und eine geräumige Küche - in unserem Haus Mondo wurden alle Wünsche der Bewohner erfüllt. Im Wohnzimmer ist auf 70m² Wohnraum mehr als genug Platz zum Wohlfühlen. Highlight bleibt: die Glasfassade und die damit verbundene Freiheit die das Haus vermittelt.
Auch die Küche mit anschließendem Esszimmer ist großzügig geplant und bietet ausreichend Platz für die ganze Familie. Große Flügeltüren sorgen auch in diesen Räumen für viel Licht. Ebenso wurden ein Gäste-WC und ein Gästezimmer, sowie eine Ankleide im Erdgeschoss eingeplant. Im Dachgeschoss findet das elterliche Schlafzimmer mit anschließender Ankleide und einer Abstellkammer ihren Platz. Zudem ein großes Badezimmer und ein weiterer Raum, welcher beispielsweise als Kinderzimmer genutzt werden kann.
Wem dieser Platz noch nicht ausreicht, der hat immer die Möglichkeit das geplante Kellergeschoss auszubauen.
Angaben zum Preis:
Die gezeigten Abbildungen zeigen zum Teil Sonderleistungen gegen Mehrpreis. Preis der entsprechenden Ausbaustufe inkl. Fingerhut-Bodenplatte und 19 % MwSt. gemäß der Fingerhut-Bau- und Leistungsbeschreibung 1012, Preisliste P05/25.
Merkmale
- Gästezimmer
Sie haben Interesse?
Laden Sie sich jetzt Ihr kostenloses Exposé zu diesem Haus herunter:
Grundrissfür Mondo
Grundrisse
Der Grundriss entspricht nicht Ihren Vorstellungen?
Passen Sie den Grundriss an Ihre persönlichen Bedürfnisse an und besprechen Sie Ihren individuellen Plan mit einem Bauberater des Anbieters.
Merkmale
Energiestandard und Förderung
Energiestandard
Effizienzhaus 40
Effizienzhaus 40 Plus
Effizienzhaus 55
Plusenergiehaus
U-Wert
0,14
Dach
Dachform
Satteldach
Dachneigung
38°
Preisdetails für Mondo
Schlüsselfertig ab
637.631 €
Ausbauhaus ab403.272 €
ab 1.919,54 €
Dieser Preis ist ein Beispiel für den Anfang, ein Berater kann Ihnen ein detailliertes Angebot erstellen, das Ihren Bedürfnissen entspricht.
Möchten Sie bei Ihrem Projekt Geld sparen?
Durch einen Angebotsvergleich mit Bungalow.de können Sie bis zu 20 % Ihrer Baukosten sparen.
Über den Anbieter Fingerhut Haus
Zum Anbieterprofil
Bewertungen
4,2
(100)

Bewertungen
4,2
100 BewertungenHervorragend
Fingerhut Haus in Zahlen
Gründungsjahr
1903
Häuser im Angebot
100
Mitarbeiter
145
Bewertungen von Fingerhut Haus
Tolle Qualität, Transparenz. Werden jedoch d...
Tolle Qualität, Transparenz. Werden jedoch das alte Haus nicht abreißen lassen sondern Sanieren. Das spart viel Geld.
15 März 2026Martina W.
Sehr nette und kompetente Beratung.
Sehr nette und kompetente Beratung.
01 Feb. 2026Torsten D.
kein kommentar
kein kommentar
10 Jan. 2026Bernd W.
Leistungsspektrum
Finanzierungsberatung
Preisgarantie
Bauzeit Garantie
Individuelle Planung
Blower Door Test
Persönliche Beratung für Ihre individuellen Wünsche
Finden Sie jetzt Ihren Ansprechpartner
Fingerhut Haus
Ähnliche Häuser Für Mondo