





Balance von Fingerhut Haus
Ab 463.021 €
Bewertungen von Fingerhut Haus
4,2
(100)
Wohnfläche
160 m²
Zimmer
5
Ausbaustufe
Schlüsselfertig
Bauweise
Fertighaus
Etagen
2
Energiestandard
Effizienzhaus 55
Dachform
Satteldach
Hausart
Einfamilienhaus
Beschreibung
Höchste Funktionalität und Effizienz trifft Modernität
Das Haus Balance ist ein echter "Energiesparer", welcher als Effizienzhaus 40, 55, 70 und als EnergiePlus Haus umgesetzt werden kann. Die innovative Heiztechnik und die wärmedämmende Gebäudehülle sorgen für die Energieersparnis.
Die gesamte Raum- und Heiztechnik des Hauses findet im dafür vorgesehenen Raum im Erdgeschoss Platz.
Die attraktive Architektur des Hauses zeichnet sich durch den hohen Kniestock und das zeitlose Satteldach aus. Die optionale Fassadengestaltung setzt den schönen Baukörper noch einmal ganz besonders in Szene. Das stilvolle Ambiente des Hauses wird durch den Flachdach-Erker noch einmal besonders hervorgehoben.
Die obere Etage ist einfach vom offenen Ess-, Wohn- und Kochbereich durch die geradläufige, integrierte Treppe zu erreichen. Auch hier können die Bewohner sich frei entfalten und großzügig möblieren. Außerdem finden sich hier zwei gleichgroße, geräumige Kinderzimmer mit einem eigenen Kinder-/Jugendbad. Auch das Elternschlafzimmer hat Zugang zu einem eigenen Badezimmer und einem Ankleideraum. Eine geschickte Lösung um Staubsauger, Bügelbrett und Co zu verstauen bietet die Galerie ganz simpel durch eine Nische, in welche einfach ein Wandschrank eingebaut werden kann. Das komfortable Wohngefüge wird durch das Gästezimmer im Erdgeschoss abgerundet, welches auch den Gästen einen optimalen Rückzugsort bietet.
Angaben zum Preis:
Die gezeigten Abbildungen zeigen zum Teil Sonderleistungen gegen Mehrpreis. Preis der entsprechenden Ausbaustufe inkl. Fingerhut-Bodenplatte und 19 % MwSt. gemäß der Fingerhut-Bau- und Leistungsbeschreibung 1012, Preisliste P05/25.
Merkmale
- Gästezimmer
Sie haben Interesse?
Laden Sie sich jetzt Ihr kostenloses Exposé zu diesem Haus herunter:
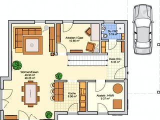
Grundrissfür Balance
Grundrisse
Der Grundriss entspricht nicht Ihren Vorstellungen?
Passen Sie den Grundriss an Ihre persönlichen Bedürfnisse an und besprechen Sie Ihren individuellen Plan mit einem Bauberater des Anbieters.
Merkmale
Energiestandard und Förderung
Energiestandard
Effizienzhaus 40
Effizienzhaus 40 Plus
Effizienzhaus 55
Plusenergiehaus
U-Wert
0,14
Dach
Dachform
Satteldach
Dachneigung
22°
Kniestockhöhe
226 cm
Preisdetails für Balance
Schlüsselfertig ab
463.021 €
Ausbauhaus ab272.834 €
ab 1.393,89 €
Dieser Preis ist ein Beispiel für den Anfang, ein Berater kann Ihnen ein detailliertes Angebot erstellen, das Ihren Bedürfnissen entspricht.
Möchten Sie bei Ihrem Projekt Geld sparen?
Durch einen Angebotsvergleich mit Bungalow.de können Sie bis zu 20 % Ihrer Baukosten sparen.
Über den Anbieter Fingerhut Haus
Zum Anbieterprofil
Bewertungen
4,2
(100)

Bewertungen
4,2
100 BewertungenHervorragend
Fingerhut Haus in Zahlen
Gründungsjahr
1903
Häuser im Angebot
100
Mitarbeiter
145
Bewertungen von Fingerhut Haus
Tolle Qualität, Transparenz. Werden jedoch d...
Tolle Qualität, Transparenz. Werden jedoch das alte Haus nicht abreißen lassen sondern Sanieren. Das spart viel Geld.
15 März 2026Martina W.
Sehr nette und kompetente Beratung.
Sehr nette und kompetente Beratung.
01 Feb. 2026Torsten D.
kein kommentar
kein kommentar
10 Jan. 2026Bernd W.
Leistungsspektrum
Finanzierungsberatung
Preisgarantie
Bauzeit Garantie
Individuelle Planung
Blower Door Test
Persönliche Beratung für Ihre individuellen Wünsche
Finden Sie jetzt Ihren Ansprechpartner
Fingerhut Haus
Ähnliche Häuser Für Balance