












Koblenz von Fingerhut Haus
Ab 571.552 €
Bewertungen von Fingerhut Haus
4,2
(100)
Wohnfläche
183 m²
Zimmer
5,5
Ausbaustufe
Schlüsselfertig
Bauweise
Fertighaus
Etagen
1,5
Energiestandard
Effizienzhaus 55
Dachform
Satteldach
Hausart
Einfamilienhaus
Beschreibung
Glasbrücke und Smart Home
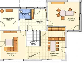
Unser Musterhaus Koblenz - variabel gestaltbar, offen, puristisch und dennoch traditionell. Das Exterieur des Satteldachhauses wirkt durch den farblich abgesetzten Kubus-Anbau modern und extravagant. Dies spiegelt sich auch im Inneren des Hauses wieder. Im Erdgeschoss befindet sich neben einem großen Büro, dem Hauswirtschaftsraum und einem Gäste-WC der Wohn- und Essbereich. Der zusätzliche Raum des Flachdachanbaus kann beispielsweise als zusätzliches Kinderzimmer oder separater Bürobereich genutzt werden. Die freitragende Eingangsüberdachung, die als Flachdachverlängerung aus dem Kubus entspringt, bildet das einladende Entree. Die Besonderheit des Grundrisses ist der Luftraum zwischen Wohn- und Esszimmer, wodurch Gäste durch ein hell gestaltetes Raumprogramm empfangen werden. Die Podest-Treppe separiert Wohn- und Essbereich geschickt.
Das Dachgeschoss verbindet das elterliche Schlafzimmer mit den Kinderzimmern durch eine hochmoderne Glasbrücke. Diese ist auch von Erdgeschoss aus zu sehen und gibt dem gesamten Haus noch einmal einen besonders hochwertigen und ausgefallenen Look. Außerdem findet sich hier ein großes Badezimmer mit direktem Zugang zur Ankleide des Schlafzimmers, sowie ein zusätzliches Badezimmer für die Kinder.
Durch die Photovoltaikanlage und eine hochwärmedämmende Gebäudehülle, unterschreitet unser Haus Koblenz die Förderkriterien zum KfW- Effizienzhaus 55 deutlich. Zusätzlichen Komfort bietet das Haus durch die intelligente Haussteuerungsanlage, welche problemlos Heizung, Rollläden und Musik sowie die Programmierung von Lichtszenarien und Gebäudeüberwachung.
Angaben zum Preis:
Die gezeigten Abbildungen zeigen zum Teil Sonderleistungen gegen Mehrpreis. Preis der entsprechenden Ausbaustufe inkl. Fingerhut-Bodenplatte und 19 % MwSt. gemäß der Fingerhut-Bau- und Leistungsbeschreibung 1012, Preisliste P05/25.
Merkmale
- Gästezimmer
Sie haben Interesse?
Laden Sie sich jetzt Ihr kostenloses Exposé zu diesem Haus herunter:
Grundrissfür Koblenz
Grundrisse
Der Grundriss entspricht nicht Ihren Vorstellungen?
Passen Sie den Grundriss an Ihre persönlichen Bedürfnisse an und besprechen Sie Ihren individuellen Plan mit einem Bauberater des Anbieters.
Merkmale
Energiestandard und Förderung
Energiestandard
Effizienzhaus 40
Effizienzhaus 40 Plus
Effizienzhaus 55
Plusenergiehaus
U-Wert
0,14
Dach
Dachform
Satteldach
Dachneigung
35°
Kniestockhöhe
140 cm
Preisdetails für Koblenz
Schlüsselfertig ab
571.552 €
Ausbauhaus ab347.705 €
ab 1.720,61 €
Dieser Preis ist ein Beispiel für den Anfang, ein Berater kann Ihnen ein detailliertes Angebot erstellen, das Ihren Bedürfnissen entspricht.
Möchten Sie bei Ihrem Projekt Geld sparen?
Durch einen Angebotsvergleich mit Bungalow.de können Sie bis zu 20 % Ihrer Baukosten sparen.
Über den Anbieter Fingerhut Haus
Zum Anbieterprofil
Bewertungen
4,2
(100)

Bewertungen
4,2
100 BewertungenHervorragend
Fingerhut Haus in Zahlen
Gründungsjahr
1903
Häuser im Angebot
100
Mitarbeiter
145
Bewertungen von Fingerhut Haus
Tolle Qualität, Transparenz. Werden jedoch d...
Tolle Qualität, Transparenz. Werden jedoch das alte Haus nicht abreißen lassen sondern Sanieren. Das spart viel Geld.
15 März 2026Martina W.
Sehr nette und kompetente Beratung.
Sehr nette und kompetente Beratung.
01 Feb. 2026Torsten D.
kein kommentar
kein kommentar
10 Jan. 2026Bernd W.
Leistungsspektrum
Finanzierungsberatung
Preisgarantie
Bauzeit Garantie
Individuelle Planung
Blower Door Test
Persönliche Beratung für Ihre individuellen Wünsche
Finden Sie jetzt Ihren Ansprechpartner
Fingerhut Haus
Ähnliche Häuser Für Koblenz