










Modern 154 von FischerHaus
Ab 585.412 €
Bewertungen von FischerHaus
4,7
(15)
Wohnfläche
154 m²
Zimmer
5
Ausbaustufe
Schlüsselfertig
Bauweise
Fertighaus
Etagen
2
Energiestandard
Effizienzhaus 40 Plus
Dachform
Satteldach
Hausart
Einfamilienhaus
Beschreibung
Mit dem Modern 154 hat sich das junge Baupaar einen Traum erfüllt. Der langgezogene moderne Baukörper wurde durch eine Garage mit zusätzlicher Ankleide ergänzt. So kann sich vor der schmutzigen Gartenarbeit draußen umgezogen werden und der Dreck gelangt gar nicht erst ins Haus.
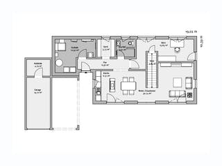
Das Erdgeschoss bietet neben der großen offenen Küche mit Essbereich und dem angrenzendem Wohnzimmer – das durch eine Schiebetür abgetrennt werden kann – genug Platz für ein großzügiges Büro, eine Garderobe und einen Technik-Hauswirtschaftsraum.
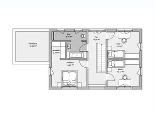
Durch die geländerlose Holztreppe gelangt man ins Obergeschoss. Neben den beiden identischen Kinderzimmern wurde das Elternschlafzimmer durch eine Ankleide erweitert, von der man dann auf die kleine Dachterrasse gelangt. Das Badezimmer bietet mit der Wohlfühlbadewanne und der großen offenen Dusche den perfekten Ort zum Entspannen.
Ein kleines Highlight des FischerHauses ist für das Baupaar das Sitzfenster im Obergeschoss. Dort genießen sie gemeinsam nach einem ansträngenden Tag den Sonnenuntergang und die ruhige Zeit zu weit.
Das moderne FischerHaus passt sich perfekt in die Wohngegend ein, sticht durch seine gelbe Farbe aber zwischen den schlichten weißen Häusern dennoch etwas hervor.
Merkmale
- Garage
- Gästezimmer
- Dachterrasse
Sie haben Interesse?
Laden Sie sich jetzt Ihr kostenloses Exposé zu diesem Haus herunter:
Grundrissfür Modern 154
Außenmaße
Länge: 10,39 m
Breite: 19,02 m
Grundrisse
Der Grundriss entspricht nicht Ihren Vorstellungen?
Passen Sie den Grundriss an Ihre persönlichen Bedürfnisse an und besprechen Sie Ihren individuellen Plan mit einem Bauberater des Anbieters.
Merkmale
Energiestandard und Förderung
Energiestandard
Effizienzhaus 40 Plus
Dach
Dachform
Satteldach
Dachneigung
20°
Preisdetails für Modern 154
Schlüsselfertig ab
585.412 €
Ausbauhaus ab292.331 €
ab 1.762,33 €
Dieser Preis ist ein Beispiel für den Anfang, ein Berater kann Ihnen ein detailliertes Angebot erstellen, das Ihren Bedürfnissen entspricht.
Möchten Sie bei Ihrem Projekt Geld sparen?
Durch einen Angebotsvergleich mit Bungalow.de können Sie bis zu 20 % Ihrer Baukosten sparen.
Über den Anbieter FischerHaus
Zum Anbieterprofil
Bewertungen
4,7
(15)

Bewertungen
4,7
15 BewertungenHervorragend
FischerHaus in Zahlen
Gründungsjahr
1961
Häuser im Angebot
40
Häuser pro Jahr
140
Häuser gesamt
>13.000
Mitarbeiter
135
Bewertungen von FischerHaus
Schnelle Zusendung der Unterlagen
Schnelle Zusendung der Unterlagen
28 Jan. 2026Nicole H.
Bisher läuft alles super mit der Planung
Bisher läuft alles super mit der Planung
10 März 2024Charly Z.
Leistungsspektrum
Finanzierungsberatung
Preisgarantie
Bauzeit Garantie
Individuelle Planung
Blower Door Test
Persönliche Beratung für Ihre individuellen Wünsche
Finden Sie jetzt Ihren Ansprechpartner
FischerHaus
Auszeichnungen, Zertifikate & Mitgliedschaften






Ähnliche Häuser Für Modern 154