







Klassisch 144 von FischerHaus
Ab 491.077 €
Bewertungen von FischerHaus
4,7
(15)
Wohnfläche
141 m²
Zimmer
9
Ausbaustufe
Schlüsselfertig
Bauweise
Fertighaus
Etagen
2
Energiestandard
Effizienzhaus 40 Plus
Dachform
Satteldach
Hausart
Zweifamilienhaus
Beschreibung
Mehrgenerationenhaus zum Anfassen - Mehrgenerationenhäuser werden immer mehr zum Trend
Alt und Jung unter einem Dach: Dank des demografischen und sozialen Wandels suchen immer mehr Menschen nach neuen Wohnformen und werden im Mehrgenerationenhaus fündig, weil hier die Vorzüge der ehemals weit verbreiteten Großfamilie auch in der heutigen Zeit genutzt werden können. So kann beispielsweise die junge Generation davon profitieren, dass die Senioren die Kinderbetreuung übernehmen. Im Gegenzug dürfen die älteren Bewohner auf Unterstützung beim Kochen oder Einkaufen zählen. Wichtig für ein harmonisches Miteinander ist, dass alle Bewohner ihre eigenen Räume besitzen und separat nutzen können. Die Senioren leben in der Regel barrierefrei ebenerdig. Die Jüngeren – Paare, Familien oder Singles – finden ihr Reich dafür eher in den oberen Etagen. Kein Wunder, dass diese Wohnform seit einigen Jahren stark im Kommen ist.
Es gibt aber auch noch weitere Gründe für die zunehmende Beliebtheit dieses Bautyps: In städtischen Regionen, in denen Baugrundstücke meist rar sind und somit auch sehr teuer, ist ein Mehrgenerationenhaus eine Möglichkeit, Baukosten zu sparen. Denn mit dieser Gebäudeart lässt sich auf geringerer Fläche als bei mehreren Einzelhäusern großzügiger Wohnraum für alle Bewohner schaffen. Und wenn der Nachwuchs flügge wird und das gemeinsame Haus verlässt, bietet sich den Eltern die Option, eine Wohnung zu vermieten und sich mit den Mieteinnahmen ihre Rente aufzubessern – ein willkommenes Zusatzgeld als Altersvorsorge.
Merkmale
- Erker
Sie haben Interesse?
Laden Sie sich jetzt Ihr kostenloses Exposé zu diesem Haus herunter:
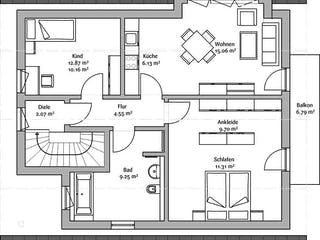
Grundrissfür Klassisch 144
Außenmaße
Länge: 9,81 m
Breite: 11,43 m
Grundrisse
Der Grundriss entspricht nicht Ihren Vorstellungen?
Passen Sie den Grundriss an Ihre persönlichen Bedürfnisse an und besprechen Sie Ihren individuellen Plan mit einem Bauberater des Anbieters.
Merkmale
Energiestandard und Förderung
Energiestandard
Effizienzhaus 40 Plus
Dach
Dachform
Satteldach
Dachneigung
27°
Preisdetails für Klassisch 144
Schlüsselfertig ab
491.077 €
Ausbauhaus ab243.956 €
ab 1.478,35 €
Dieser Preis ist ein Beispiel für den Anfang, ein Berater kann Ihnen ein detailliertes Angebot erstellen, das Ihren Bedürfnissen entspricht.
Möchten Sie bei Ihrem Projekt Geld sparen?
Durch einen Angebotsvergleich mit Bungalow.de können Sie bis zu 20 % Ihrer Baukosten sparen.
Über den Anbieter FischerHaus
Zum Anbieterprofil
Bewertungen
4,7
(15)

Bewertungen
4,7
15 BewertungenHervorragend
FischerHaus in Zahlen
Gründungsjahr
1961
Häuser im Angebot
40
Häuser pro Jahr
140
Häuser gesamt
>13.000
Mitarbeiter
135
Bewertungen von FischerHaus
Schnelle Zusendung der Unterlagen
Schnelle Zusendung der Unterlagen
28 Jan. 2026Nicole H.
Bisher läuft alles super mit der Planung
Bisher läuft alles super mit der Planung
10 März 2024Charly Z.
Leistungsspektrum
Finanzierungsberatung
Preisgarantie
Bauzeit Garantie
Individuelle Planung
Blower Door Test
Persönliche Beratung für Ihre individuellen Wünsche
Finden Sie jetzt Ihren Ansprechpartner
FischerHaus
Auszeichnungen, Zertifikate & Mitgliedschaften






Ähnliche Häuser Für Klassisch 144