






Klassisch 148 von FischerHaus
Ab 478.006 €
Bewertungen von FischerHaus
4,7
(15)
Wohnfläche
146 m²
Zimmer
10
Ausbaustufe
Schlüsselfertig
Bauweise
Fertighaus
Etagen
2
Energiestandard
Effizienzhaus 40 Plus
Dachform
Satteldach
Hausart
Einfamilienhaus
Beschreibung
Klassisch-modernes Einfamilienhaus
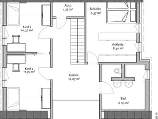
Das Fertighaus überzeugt mit freien Sichtachsen nach außen und innen. Sitzen Sie auf der Couch im Wohnzimmer des Einfamilienhauses, kann Ihr Blick durch die großflächigen Terrassentüren in den Garten schweifen. Zugleich haben Sie auch die Küche und den Essbereich im Blick. Über die geradlinige Treppe gelangen Sie in den Flur im Dachgeschoss. Von ihm gehen zwei Kinderzimmer, das Elternschlafzimmer mit direktem Zugang zum Ankleidezimmer und das Familienbad ab. Da das Einfamilienhaus im Erdgeschoss ein weiteres Bad mit Dusche und ein Schlafzimmer besitzt, bietet es ideal für Familien mit drei Kindern oder einem Gästezimmer.
Merkmale
- Erker
- Gästezimmer
Sie haben Interesse?
Laden Sie sich jetzt Ihr kostenloses Exposé zu diesem Haus herunter:
Grundrissfür Klassisch 148
Außenmaße
Länge: 10,56 m
Breite: 10,93 m
Grundrisse
Der Grundriss entspricht nicht Ihren Vorstellungen?
Passen Sie den Grundriss an Ihre persönlichen Bedürfnisse an und besprechen Sie Ihren individuellen Plan mit einem Bauberater des Anbieters.
Merkmale
Energiestandard und Förderung
Energiestandard
Effizienzhaus 40 Plus
Dach
Dachform
Satteldach
Dachneigung
45°
Kniestockhöhe
75 cm
Preisdetails für Klassisch 148
Schlüsselfertig ab
478.006 €
Ausbauhaus ab229.404 €
ab 1.439 €
Dieser Preis ist ein Beispiel für den Anfang, ein Berater kann Ihnen ein detailliertes Angebot erstellen, das Ihren Bedürfnissen entspricht.
Möchten Sie bei Ihrem Projekt Geld sparen?
Durch einen Angebotsvergleich mit Bungalow.de können Sie bis zu 20 % Ihrer Baukosten sparen.
Über den Anbieter FischerHaus
Zum Anbieterprofil
Bewertungen
4,7
(15)

Bewertungen
4,7
15 BewertungenHervorragend
FischerHaus in Zahlen
Gründungsjahr
1961
Häuser im Angebot
40
Häuser pro Jahr
140
Häuser gesamt
>13.000
Mitarbeiter
135
Bewertungen von FischerHaus
Schnelle Zusendung der Unterlagen
Schnelle Zusendung der Unterlagen
28 Jan. 2026Nicole H.
Bisher läuft alles super mit der Planung
Bisher läuft alles super mit der Planung
10 März 2024Charly Z.
Leistungsspektrum
Finanzierungsberatung
Preisgarantie
Bauzeit Garantie
Individuelle Planung
Blower Door Test
Persönliche Beratung für Ihre individuellen Wünsche
Finden Sie jetzt Ihren Ansprechpartner
FischerHaus
Auszeichnungen, Zertifikate & Mitgliedschaften






Ähnliche Häuser Für Klassisch 148