







Klassisch 187 von FischerHaus
Ab 527.935 €
Bewertungen von FischerHaus
4,7
(15)
Wohnfläche
180 m²
Zimmer
11
Ausbaustufe
Schlüsselfertig
Bauweise
Fertighaus
Etagen
2
Energiestandard
Effizienzhaus 40 Plus
Dachform
Satteldach
Hausart
Einfamilienhaus
Beschreibung
>Ein rollstuhlgerechtes Haus
Die Begriffe barrierefreies Haus sowie alters- und behindertengerecht Bauen bezeichnen ähnliche Anforderungen an den Wohnungsbau, die immer mehr Bedeutung erlangen. Dabei verdrängt das Attribut altersgerecht mit seiner etwas weiter gefassten Bedeutung zunehmen die Bezeichnungen alten- und seniorengerecht. Es bezeichnet eine Bauweise, die versucht, Menschen jeden Alters gerecht zu werden, und nicht nur eine speziell auf die Bedürfnisse von Senioren ausgelegte Form. Diese Unterscheidung ist wichtig, weil sich die Anforderungen bei verschiedenen Altersgruppen zum Teil widersprechen. Wenn Sie beispielsweise ein Waschbecken in kindgerechter Höhe anbringen, erfordert die Benutzung durch einen Erwachsenen meist eine rückenschädliche, nach vorn gebeugte Haltung. Genauso barrierefrei ist dieses Fertighaus von FischerHaus auf individuellen Kundenwunsch gebaut worden.
Merkmale
- Gästezimmer
Sie haben Interesse?
Laden Sie sich jetzt Ihr kostenloses Exposé zu diesem Haus herunter:
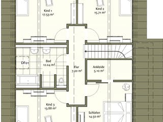
Grundrissfür Klassisch 187
Außenmaße
Länge: 11,6 m
Breite: 10,55 m
Grundrisse
Der Grundriss entspricht nicht Ihren Vorstellungen?
Passen Sie den Grundriss an Ihre persönlichen Bedürfnisse an und besprechen Sie Ihren individuellen Plan mit einem Bauberater des Anbieters.
Merkmale
Energiestandard und Förderung
Energiestandard
Effizienzhaus 40 Plus
Dach
Dachform
Satteldach
Dachneigung
45°
Kniestockhöhe
100 cm
Preisdetails für Klassisch 187
Schlüsselfertig ab
527.935 €
Ausbauhaus ab244.164 €
ab 1.589,30 €
Dieser Preis ist ein Beispiel für den Anfang, ein Berater kann Ihnen ein detailliertes Angebot erstellen, das Ihren Bedürfnissen entspricht.
Möchten Sie bei Ihrem Projekt Geld sparen?
Durch einen Angebotsvergleich mit Bungalow.de können Sie bis zu 20 % Ihrer Baukosten sparen.
Über den Anbieter FischerHaus
Zum Anbieterprofil
Bewertungen
4,7
(15)

Bewertungen
4,7
15 BewertungenHervorragend
FischerHaus in Zahlen
Gründungsjahr
1961
Häuser im Angebot
40
Häuser pro Jahr
140
Häuser gesamt
>13.000
Mitarbeiter
135
Bewertungen von FischerHaus
Schnelle Zusendung der Unterlagen
Schnelle Zusendung der Unterlagen
28 Jan. 2026Nicole H.
Bisher läuft alles super mit der Planung
Bisher läuft alles super mit der Planung
10 März 2024Charly Z.
Leistungsspektrum
Finanzierungsberatung
Preisgarantie
Bauzeit Garantie
Individuelle Planung
Blower Door Test
Persönliche Beratung für Ihre individuellen Wünsche
Finden Sie jetzt Ihren Ansprechpartner
FischerHaus
Auszeichnungen, Zertifikate & Mitgliedschaften






Ähnliche Häuser Für Klassisch 187