






Modern 145 von FischerHaus
Ab 435.521 €
Bewertungen von FischerHaus
4,7
(15)
Wohnfläche
149 m²
Zimmer
8
Ausbaustufe
Schlüsselfertig
Bauweise
Fertighaus
Etagen
2
Energiestandard
Effizienzhaus 40 Plus
Dachform
Satteldach
Hausart
Einfamilienhaus
Beschreibung
Tschüss Stromriesen
Ein Haus, das den eigenen Energiebedarf deckt: Diese Idee, sich von den steigenden Strompreisen der Versorgungsunternehmen ein Stück unabhängiger zu machen, ist verlockend. Mit einem Fertighaus als Effizienzhaus Plus ist dieses Ziel für viele Bauherren erreichbar. Solche Effizienzhäuser, auch Plus-Energie-Häuser genannt, weisen laut Definition des Bundes sowohl einen negativen Jahres-Primärenergiebedarf als auch einen negativen Jahres-Endenergiebedarf auf. „Das heißt: Wer ein Plus-Energie-Haus baut, ist nicht länger Energieverbraucher, sondern wird zum Energieerzeuger“, erklärt der Hauptgeschäftsführer des Bundesverbandes Deutscher Fertigbau (BDF), Dirk-Uwe Klaas. Viele Hersteller von Fertighäusern bieten ihren Kunden diesen neuen Standard als komfortable Paketlösung an.
Merkmale
- Carport
Sie haben Interesse?
Laden Sie sich jetzt Ihr kostenloses Exposé zu diesem Haus herunter:
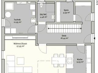
Grundrissfür Modern 145
Außenmaße
Länge: 11,74 m
Breite: 8,31 m
Grundrisse
Der Grundriss entspricht nicht Ihren Vorstellungen?
Passen Sie den Grundriss an Ihre persönlichen Bedürfnisse an und besprechen Sie Ihren individuellen Plan mit einem Bauberater des Anbieters.
Merkmale
Energiestandard und Förderung
Energiestandard
Effizienzhaus 40 Plus
Dach
Dachform
Satteldach
Dachneigung
22°
Kniestockhöhe
230 cm
Preisdetails für Modern 145
Schlüsselfertig ab
435.521 €
Ausbauhaus ab204.680 €
ab 1.311,10 €
Dieser Preis ist ein Beispiel für den Anfang, ein Berater kann Ihnen ein detailliertes Angebot erstellen, das Ihren Bedürfnissen entspricht.
Möchten Sie bei Ihrem Projekt Geld sparen?
Durch einen Angebotsvergleich mit Bungalow.de können Sie bis zu 20 % Ihrer Baukosten sparen.
Über den Anbieter FischerHaus
Zum Anbieterprofil
Bewertungen
4,7
(15)

Bewertungen
4,7
15 BewertungenHervorragend
FischerHaus in Zahlen
Gründungsjahr
1961
Häuser im Angebot
40
Häuser pro Jahr
140
Häuser gesamt
>13.000
Mitarbeiter
135
Bewertungen von FischerHaus
Schnelle Zusendung der Unterlagen
Schnelle Zusendung der Unterlagen
28 Jan. 2026Nicole H.
Bisher läuft alles super mit der Planung
Bisher läuft alles super mit der Planung
10 März 2024Charly Z.
Leistungsspektrum
Finanzierungsberatung
Preisgarantie
Bauzeit Garantie
Individuelle Planung
Blower Door Test
Persönliche Beratung für Ihre individuellen Wünsche
Finden Sie jetzt Ihren Ansprechpartner
FischerHaus
Auszeichnungen, Zertifikate & Mitgliedschaften






Ähnliche Häuser Für Modern 145