










D176 Becker von Frammelsberger Holzbau
Preis auf Anfrage
Bewertungen von Frammelsberger Holzbau
3,8
(16)
Wohnfläche
176 m²
Zimmer
6,5
Bauweise
Blockhaus
Etagen
1,5
Energiestandard
Effizienzhaus 55
Dachform
Satteldach
Hausart
Einfamilienhaus
Beschreibung
Ökologisch gebautes Effizienzhaus für die Großfamilie
Ein Sechs-Personen-Haushalt will gut organisiert sein, damit der Familienalltag reibungslos funktioniert. Die Basis dafür ist ein passendes Heim, mit viel Raum für die Gemeinschaft aber auch genügend Rückzugsmöglichkeiten für alle Familienmitglieder. Neben einem großzügigen Platzangebot achteten die Hauseigentümer besonders auf Wohngesundheit. Die Wärmegewinnung erfolgt mit einer solaren Warmwassererwärmung, der gesamte Stromverbrauch wird mit Hilfe der eigenen Photovoltaikanlage selbst produziert.
Der Baukörper gleicht einem kompakten Quader, dem ein klassisches Satteldach aufgesetzt wurde. Die grau-weiße Fassade, das dunkle Dach und die anthrazitfarbenen Fensterrahmen betonen die Schwere des Gebäudes, während die zahlreichen, bodentiefen Fenster rundum für Auflockerung sorgen; besonders das verglaste Zwerchhaus, das als Erker mit daraufgesetzter, vollgeschossiger Gaube aus der westlichen Traufseite hervorspringt, verleiht dem Haus durch seine Transparenz viel Leichtigkeit und lässt den Gesamtentwurf ausgewogen und kurzweilig wirken.
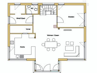
Küche, Esszimmer, Wohnzimmer und Flur ergeben zusammen einen sehr großzügigen, offenen Wohnbereich. Große Fensterflächen, größtenteils bodentief, sorgen den ganzen Tag für reichlich natürlichen Lichteinfall.
Betritt man das Erdgeschoss, gelangt man zuerst in einen abgeschlossenen Windfang mit Garderobe und Zugang zur Gästetoilette. Über den angrenzenden offenen Flur erreicht man das Arbeitszimmer, den großflächigen Wohn-Ess-Koch-Bereich sowie linker Hand das ebenfalls zum Wohnbereich offene Treppenhaus. Praktischerweise gibt es zwischen Windfang und Küche einen Vorratsraum, der ausschließlich von der Küche per Schiebetür zugänglich ist.
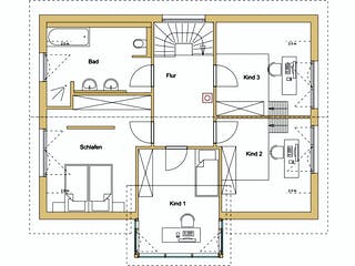
Das Dachgeschoss ist bis zum First offen, wodurch sich eine enorme Raumhöhe ergibt, die vor allem in zwei der Kinderzimmer perfekt ausgenutzt wird: Dort wurde jeweils ein Hochbett eingebaut, was das Platzangebot deutlich erweitert. Ein Schlafzimmer und ein Wohnbad komplettieren das Raumangebot im Dachgeschoss, wo sich alle Zimmer um eine mittig gelegene Galerie reihen.
Das äußere Farbkonzept mit dunkelbraunen Dach, anthrazitfarbene Fenstern und grau-weißer Fassade setzt sich im Hausinnern fort, wo im Erdgeschoss alle Böden mit großen, quadratischen Fliesen in hellem grau belegt, die Wände weiß gestrichen sind und die glatte Massivholzdecke ebenfalls weiß lasiert ist. Passend zur Geschossdecke sind auch die Fensterrahmen innen aus weiß lasiertem Holz.
Damit sich das Haus mit den vielen großen Glasflächen im Sommer nicht zu sehr aufheizt, wurden im Erdgeschoss überall Jalousien und im Obergeschoss Rollladen installiert.
Details/ Extras: Außenwand als Ökowand mit Installationsebene (KFW 70), Fassade als Putz- oder Holzfassade, Gipsfaserplatten
Preis auf Anfrage
Merkmale
- Erker
- Gästezimmer
- Kamin
Sie haben Interesse?
Laden Sie sich jetzt Ihr kostenloses Exposé zu diesem Haus herunter:
Grundrissfür D176 Becker
Außenmaße
Länge: 8,6 m
Breite: 11,71 m
Grundrisse
Der Grundriss entspricht nicht Ihren Vorstellungen?
Passen Sie den Grundriss an Ihre persönlichen Bedürfnisse an und besprechen Sie Ihren individuellen Plan mit einem Bauberater des Anbieters.
Merkmale
Energiestandard und Förderung
Energiestandard
Effizienzhaus 40
Effizienzhaus 40 Plus
Effizienzhaus 55
Plusenergiehaus
U-Wert
0,15
Dach
Dachform
Satteldach
Dachneigung
35°
Preisdetails für D176 Becker
Preis auf Anfrage
Dieser Preis ist ein Beispiel für den Anfang, ein Berater kann Ihnen ein detailliertes Angebot erstellen, das Ihren Bedürfnissen entspricht.
Möchten Sie bei Ihrem Projekt Geld sparen?
Durch einen Angebotsvergleich mit Bungalow.de können Sie bis zu 20 % Ihrer Baukosten sparen.
Über den Anbieter Frammelsberger Holzbau
Zum Anbieterprofil
Bewertungen
3,8
(16)

Bewertungen
3,8
16 BewertungenGut
Frammelsberger Holzbau in Zahlen
Gründungsjahr
1984
Häuser im Angebot
24
Häuser pro Jahr
50-60
Mitarbeiter
57
Leistungsspektrum
Finanzierungsberatung
Preisgarantie
Bauzeit Garantie
Individuelle Planung
Blower Door Test
Persönliche Beratung für Ihre individuellen Wünsche
Finden Sie jetzt Ihren Ansprechpartner
Frammelsberger Holzbau
Auszeichnungen, Zertifikate & Mitgliedschaften

Weitere Häuser
Ähnliche Häuser Für D176 Becker