











D243 Schmidt von Frammelsberger Holzbau
Preis auf Anfrage
Bewertungen von Frammelsberger Holzbau
3,8
(16)
Wohnfläche
237 m²
Zimmer
11
Bauweise
Blockhaus
Etagen
3
Energiestandard
Effizienzhaus 55
Dachform
Flachdach
Hausart
Einfamilienhaus
Beschreibung
Schmidt D243 – ein gesundes Ökohaus für Großfamilien
Der dreigeschossige Kubus wird von einem Flachdach bedeckt. Während die Fassade vom Erdgeschoss und vom ersten Obergeschoss verputzt und Sonnengelb gestrichen ist, besitzt das zweite, vom Grundriss her kleinere, Obergeschoss eine weiß gestrichene Holzverkleidung aus horizontalen, schmalen Massivholzbrettern. Auch der rechteckige eingeschossige Erkervorbau an der Gartenseite (Ostseite) wurde mit den gleichen Brettern verschalt. Passend dazu entschieden sich die Eigentümer für weiße Fensterrahmen, weiße Holzklappläden sowie eine weiße Haustür (Westseite). Auf dem Erkervorsprung befindet sich ein Balkon und ein Stockwerk darüber wird etwa ein Drittel der obersten Etage als Terrasse genutzt. Viele Fenster verschiedener Größen und Formen lassen rundherum den ganzen Tag reichlich natürliches Licht ins Haus.
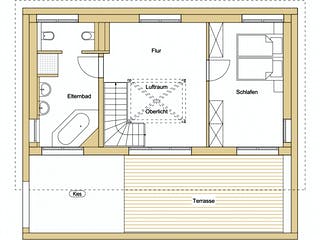
Der Hausgrundriss erinnert an altrömische Villen mit mittig platziertem, rechteckigem Atrium. Allerdings dient das Atrium hier als Eingangshalle, die sich vertikal über drei Geschosse bis hin zum Hausdach erstreckt. Der Blick hinauf ist atemberaubend, auch wegen der beeindruckenden Treppenkonstruktion aus Massivholz, die den hohen Luftraum umschließt.
Im Erdgeschoss reihen sich eine Küche, ein weitläufiger Wohn-Essbereich und ein Musikzimmer um den Empfangsbereich, außerdem gibt es ein kleines Gäste-WC rechts neben der Eingangstüre. Alle Räume haben separate Zugänge vom Atrium aus, gleichzeitig kann man aber auch durch Verbindungstüren von einem Zimmer zum Nächsten gelangen.
Im ersten Obergeschoss geht es zu den vier Kinderzimmern und einem Kinderbad; im zweiten Obergeschoss befinden sich das Elternschlafzimmer, -badezimmer und die großzügige Dachterrasse. Dank des verglasten Oberlichts über dem Luftraum sowie der flächig verglasten Sonnenterrasse, gelangt stets Tageslicht in alle Geschossflure und die Eingangshalle.
Das Farbkonzept von außen setzt sich in den weiß lasierten Holzbalkendecken, dem weiß gestrichenen Treppengebälk, den weißen Innentüren (teils zum Schieben) und den zart-gelb gestrichenen Wänden fort. Dazu harmoniert das naturfarbene Holz der Eichendielenböden, der Treppenstufen und des Handlaufs wunderbar, und verstärkt die sanfte und fröhliche Atmosphäre.
Neben der Wohngesundheit war im Haus Design 237 auch ein vernünftiger Umgang mit Energie wichtig. Zum Betrieb der Fußbodenheizung werden ausschließlich erneuerbare Energien genutzt (Fernwärme aus dem lokalen Holzpellets-Kraftwerk) und dank der sehr gut isolierenden Hauswände besteht ein niedrigen Heizenergieverbrauch.
Merkmale
- Dachterrasse
- Balkon
Sie haben Interesse?
Laden Sie sich jetzt Ihr kostenloses Exposé zu diesem Haus herunter:
Grundrissfür D243 Schmidt
Außenmaße
Länge: 9,98 m
Breite: 11,85 m
Grundrisse
Der Grundriss entspricht nicht Ihren Vorstellungen?
Passen Sie den Grundriss an Ihre persönlichen Bedürfnisse an und besprechen Sie Ihren individuellen Plan mit einem Bauberater des Anbieters.
Merkmale
Energiestandard und Förderung
Energiestandard
Effizienzhaus 40
Effizienzhaus 40 Plus
Effizienzhaus 55
Plusenergiehaus
U-Wert
0,15
Dach
Dachform
Flachdach
Preisdetails für D243 Schmidt
Preis auf Anfrage
Dieser Preis ist ein Beispiel für den Anfang, ein Berater kann Ihnen ein detailliertes Angebot erstellen, das Ihren Bedürfnissen entspricht.
Möchten Sie bei Ihrem Projekt Geld sparen?
Durch einen Angebotsvergleich mit Bungalow.de können Sie bis zu 20 % Ihrer Baukosten sparen.
Über den Anbieter Frammelsberger Holzbau
Zum Anbieterprofil
Bewertungen
3,8
(16)

Bewertungen
3,8
16 BewertungenGut
Frammelsberger Holzbau in Zahlen
Gründungsjahr
1984
Häuser im Angebot
24
Häuser pro Jahr
50-60
Mitarbeiter
57
Leistungsspektrum
Finanzierungsberatung
Preisgarantie
Bauzeit Garantie
Individuelle Planung
Blower Door Test
Persönliche Beratung für Ihre individuellen Wünsche
Finden Sie jetzt Ihren Ansprechpartner
Frammelsberger Holzbau
Auszeichnungen, Zertifikate & Mitgliedschaften

Weitere Häuser
Ähnliche Häuser Für D243 Schmidt