

















D282 Kocher von Frammelsberger Holzbau
Preis auf Anfrage
Bewertungen von Frammelsberger Holzbau
3,8
(16)
Wohnfläche
282 m²
Zimmer
7,5
Bauweise
Blockhaus
Etagen
1,5
Energiestandard
Effizienzhaus 55
Dachform
Satteldach
Hausart
Einfamilienhaus
Beschreibung
Helligkeit, Großzügigkeit und Ruhe fürs Auge
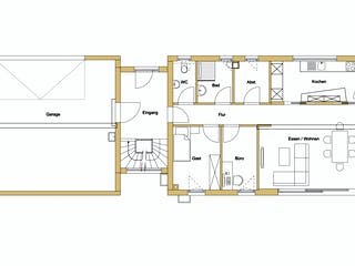
Das eigentliche Wohnhaus ist mit der Garage durch ein zum Garten großzügig verglastes Treppenhaus verbunden. Hier befindet sich auch der Hauseingang, und man gelangt trockenen Fußes direkt von der Garage ins Haus. Die eineinhalb Geschosse des Haupthauses wurden durch einen extra hohen Kniestock (140 cm) aufgestockt, was mehr Platz im Dachgeschoss beschert. Die anthrazitfarbenen Alufensterrahmen harmonieren außen farblich mit dem Satteldach und setzen sich innen farblich an zwei Natursteinwänden (im Treppenhaus und im Wohnzimmer) und in den Fliesenböden fort. Auch der Boden im Tanz- und Spielsaal über der Garage hat einen hellen Holzboden bekommen. Ein sehr modernes Treppen- und Galeriegeländer aus Glas und Stahl betont die Transparenz und die klaren Linien der modernen Innenarchitektur. Nur eins wollten die Bauherren nicht: eine zum Wohnzimmer offene Küche. Deshalb ist die schlauchförmige Küche vom Wohn/Essbereich abgetrennt und durch zwei Glasschiebetüren erreichbar.
Das Wohnhaus besitzt einen kompakten rechteckigen Grundriss plus das Verbindungsrechteck des Treppenhauses. Ein langer schmaler Flur führt vom Treppenhaus zum Wohnbereich. Links und rechts des Flures befinden sich ein Gäste-WC, Gäste-Bad, HWR, Arbeitszimmer und Gästezimmer. In die Küche gelangt viel natürliches Licht durch ein langgezogenes Fensterband über der Arbeitsplatte und eine bodentiefe Fenstertür, so dass es in der Küche fast so hell ist wie im vom Tageslicht verwöhnten Wohn/Essbereich. Abends sorgt die außergewöhnliche, perfekt durchdachte Beleuchtung von Küche, Wohnen und Flur für Licht und Atmosphäre. Im Dachgeschoss befinden sich ein großes Badezimmer mit integrierter finnischer Sauna, zwei Kinderzimmer sowie das Schlafzimmer der Eltern mit angeschlossener Ankleide. In diesem Geschoss sind die Decken nicht aus Holz, sondern verputzt und weiß gestrichen. Darüber gibt es noch einen Dachboden und unterkellert ist das Haus ebenfalls.
Bei der Beleuchtung innen und außen legten die Bauherren Wert auf viel natürliches Licht im Haus. Auch die Zimmerdecken, im Erdgeschoss aus glattem Holz bestehend, sind weiß lasiert und passen perfekt zu den klaren, sachlichen Linien und Formen des Hauses.
Neben ästhetischen Gesichtspunkten waren auch praktische Dinge im Haus wichtig, damit der Wohnalltag reibungslos und möglichst stressfrei funktioniert - eine zentrale Staubsaugeranlage, ein Wäscheschacht von den Bädern in die Waschküche und pflegeleichte Fliesenböden erleichtern das Leben ungemein. Dazu kommt noch die smarte Steuerung der Haustechnik von Heizung über Elektronik und Licht bis zur Bedienung der Jalousien.
Die Bauherren entschieden sich für eine Luft/Wasser-Wärmepumpe, mit der das Belüftungssystem mit Wärmerückgewinnung, das Warmwasser und die Fußbodenheizung betrieben werden. Um autark und unabhängig von schwankenden Energiepreisen zu sein, montierten sie außerdem eine Photovoltaikanlage mit Überschussproduktion auf dem Dach.
Außenwand als Ökowand mit Installationsebene, Fassade als Putzfassade mit Holzelementen, Gipsfaserplatten, Verschattung mit Rollladen/Jalousien, sichtbare Brettstapeldecke
Preis auf Anfrage
Merkmale
- Gästezimmer
Sie haben Interesse?
Laden Sie sich jetzt Ihr kostenloses Exposé zu diesem Haus herunter:
Grundrissfür D282 Kocher
Außenmaße
Länge: 7,97 m
Breite: 11,71 m
Grundrisse
Der Grundriss entspricht nicht Ihren Vorstellungen?
Passen Sie den Grundriss an Ihre persönlichen Bedürfnisse an und besprechen Sie Ihren individuellen Plan mit einem Bauberater des Anbieters.
Merkmale
Energiestandard und Förderung
Energiestandard
Effizienzhaus 40
Effizienzhaus 40 Plus
Effizienzhaus 55
Plusenergiehaus
U-Wert
0,13
Dach
Dachform
Satteldach
Dachneigung
40°
Preisdetails für D282 Kocher
Preis auf Anfrage
Dieser Preis ist ein Beispiel für den Anfang, ein Berater kann Ihnen ein detailliertes Angebot erstellen, das Ihren Bedürfnissen entspricht.
Möchten Sie bei Ihrem Projekt Geld sparen?
Durch einen Angebotsvergleich mit Bungalow.de können Sie bis zu 20 % Ihrer Baukosten sparen.
Über den Anbieter Frammelsberger Holzbau
Zum Anbieterprofil
Bewertungen
3,8
(16)

Bewertungen
3,8
16 BewertungenGut
Frammelsberger Holzbau in Zahlen
Gründungsjahr
1984
Häuser im Angebot
24
Häuser pro Jahr
50-60
Mitarbeiter
57
Leistungsspektrum
Finanzierungsberatung
Preisgarantie
Bauzeit Garantie
Individuelle Planung
Blower Door Test
Persönliche Beratung für Ihre individuellen Wünsche
Finden Sie jetzt Ihren Ansprechpartner
Frammelsberger Holzbau
Auszeichnungen, Zertifikate & Mitgliedschaften

Weitere Häuser
Ähnliche Häuser Für D282 Kocher