


Cubus 148 von Hanse Haus
Ab 429.547 €
Bewertungen von Hanse Haus
4,1
(389)
Wohnfläche
141 m²
Zimmer
5,5
Ausbaustufe
Schlüsselfertig
Bauweise
Fertighaus
Etagen
2
Energiestandard
Effizienzhaus 40 Plus
Dachform
Flachdach
Hausart
Einfamilienhaus
Beschreibung
Der Entwurf Cubus 148 ist Ausdruck moderner Lebensart. Klare Linien und eine sachliche Architektur, die sich Stilmitteln des Bauhauses bedient, machen den vornehmen und doch zurückhaltenden Charakter aus. Das ist gelebtes Understatement pur. Den kubischen Grundbaukörper können Sie auf Wunsch noch mit einem Flachdachanbau mit darüberliegender Loggia erweitern.
Besonders gut zur Geltung kommt der Anbau in einem starken Farbkontrast oder unter Verwendung eines anderen Materials, wie beispielsweise in Form einer Echtholzverschalung oder Fassadenplatten. Im Erdgeschoss beeindruckt der mit fast 50 m. riesige Wohn- und Kochbereich. Seine großen Fensterflächen lassen auch im Winter wohltuende Sonnenstrahlen ins Haus und durchfluten den Raum mit Licht. Die Schlafräume sind im Obergeschoss untergebracht. An das Elternschlafzimmer grenzt ein eigenes Ankleidezimmer.
ENERGIE-EFFIZIENZ
Standardmäßig entspricht die Gebäudehülle der Hanse-Häuser den Anforderungen zum Bau von KfW-40 Effizienzhäusern. In Kombination mit einem der Heiz- und Haustechnikpakete werden die Förderkriterien der Kreditanstalt für Wiederaufbau (KfW) zum Erhalt von günstigen Finanzierungskonditionen erfüllt. Hanse-Häuser können als Effizienzhaus oder als Passivhaus bzw. PlusEnergie-Haus realisiert werden.
Angaben zum Preis: schlüsselfertig mit Bodenplatte; evtl. Preisabweichungen durch Sonderausstattung möglich.
Merkmale
- Erker
Sie haben Interesse?
Laden Sie sich jetzt Ihr kostenloses Exposé zu diesem Haus herunter:
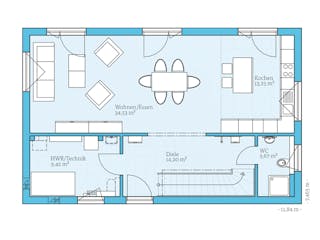
Grundrissfür Cubus 148
Außenmaße
Länge: 11,84 m
Breite: 7,47 m
Grundrisse
Der Grundriss entspricht nicht Ihren Vorstellungen?
Passen Sie den Grundriss an Ihre persönlichen Bedürfnisse an und besprechen Sie Ihren individuellen Plan mit einem Bauberater des Anbieters.
Merkmale
Energiestandard und Förderung
Energiestandard
Effizienzhaus 40
Effizienzhaus 40 Plus
Plusenergiehaus
U-Wert
0,116
Dach
Dachform
Flachdach
Preisdetails für Cubus 148
Schlüsselfertig ab
429.547 €
ab 1.293,12 €
Dieser Preis ist ein Beispiel für den Anfang, ein Berater kann Ihnen ein detailliertes Angebot erstellen, das Ihren Bedürfnissen entspricht.
Möchten Sie bei Ihrem Projekt Geld sparen?
Durch einen Angebotsvergleich mit Bungalow.de können Sie bis zu 20 % Ihrer Baukosten sparen.
Über den Anbieter Hanse Haus
Zum Anbieterprofil
Bewertungen
4,1
(389)

Bewertungen
4,1
389 BewertungenGut
Hanse Haus in Zahlen
Gründungsjahr
1929
Häuser im Angebot
66
Häuser pro Jahr
ca. 750
Häuser gesamt
39.000
Mitarbeiter
1000
Bewertungen von Hanse Haus
Besprechungstermin findet demnächst statt.
Besprechungstermin findet demnächst statt.
16 März 2026Kirsten L.
Einfach nur schlecht! Die Beratung war unteri...
Einfach nur schlecht! Die Beratung war unterirdisch!! Der Berater ist nicht auf unsere wünsche eingegangen.
07 März 2026Michael W.
Sehr gute Beratung, schnelle Kontktaufnahme
Sehr gute Beratung, schnelle Kontktaufnahme
02 Feb. 2026Juliane B.
Leistungsspektrum
Preisgarantie
Bauzeit Garantie
Individuelle Planung
Blower Door Test
Persönliche Beratung für Ihre individuellen Wünsche
Finden Sie jetzt Ihren Ansprechpartner
Hanse Haus
Auszeichnungen, Zertifikate & Mitgliedschaften






Ähnliche Häuser Für Cubus 148