


Vita 156 von Hanse Haus
Preis auf Anfrage
Bewertungen von Hanse Haus
4,1
(389)
Wohnfläche
149 m²
Zimmer
6,5
Ausbaustufe
Schlüsselfertig
Bauweise
Fertighaus
Etagen
2
Energiestandard
Effizienzhaus 40 Plus
Dachform
Pultdach
Hausart
Einfamilienhaus
Beschreibung
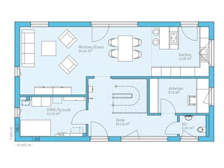
Die Grundrisse aller Vita-Entwürfe sind so geplant, dass die Häuser sowohl mit einem normalen als auch mit einem versetzten Pultdach realisiert werden können. Dank der zwei Vollgeschosse ist die Grundfläche des Hauses auch im Obergeschoss vollständig nutzbar, ohne dass Dachschrägen die Raumnutzung einschränken. So finden beim Entwurf Vita 156 z. B. im Obergeschoss neben dem Elternschlafzimmer auch noch zwei Kinderzimmer, ein Bad und ein Ankleidezimmer für die Eltern Platz. Das Erdgeschoss wird von der großen Glasfront im Essbereich geprägt, die für ein lichtdurchflutetes Ambiente sorgt. Ein optionaler Erker, der sich über beide Geschosse erstreckt, erweitert den Wohnbereich und ein Kinderzimmer noch zusätzlich.
ENERGIE-EFFIZIENZ
Standardmäßig entspricht die Gebäudehülle der Hanse-Häuser den Anforderungen zum Bau von KfW-40 Effizienzhäusern. In Kombination mit einem der Heiz- und Haustechnikpakete werden die Förderkriterien der Kreditanstalt für Wiederaufbau (KfW) zum Erhalt von günstigen Finanzierungskonditionen erfüllt. Hanse-Häuser können als Effizienzhaus oder als Passivhaus bzw. PlusEnergie-Haus realisiert werden.
Angaben zum Preis: schlüsselfertig mit Bodenplatte; evtl. Preisabweichungen durch Sonderausstattung möglich.
Merkmale
- Erker
- Gästezimmer
Sie haben Interesse?
Laden Sie sich jetzt Ihr kostenloses Exposé zu diesem Haus herunter:
Grundrissfür Vita 156
Außenmaße
Länge: 7,47 m
Breite: 12,47 m
Grundrisse
Der Grundriss entspricht nicht Ihren Vorstellungen?
Passen Sie den Grundriss an Ihre persönlichen Bedürfnisse an und besprechen Sie Ihren individuellen Plan mit einem Bauberater des Anbieters.
Merkmale
Energiestandard und Förderung
Energiestandard
Effizienzhaus 40
Effizienzhaus 40 Plus
Plusenergiehaus
U-Wert
0,116
Dach
Dachform
Pultdach
Dachneigung
5°
Preisdetails für Vita 156
Schlüsselfertig ab
Preis auf Anfrage
Dieser Preis ist ein Beispiel für den Anfang, ein Berater kann Ihnen ein detailliertes Angebot erstellen, das Ihren Bedürfnissen entspricht.
Möchten Sie bei Ihrem Projekt Geld sparen?
Durch einen Angebotsvergleich mit Bungalow.de können Sie bis zu 20 % Ihrer Baukosten sparen.
Über den Anbieter Hanse Haus
Zum Anbieterprofil
Bewertungen
4,1
(389)

Bewertungen
4,1
389 BewertungenGut
Hanse Haus in Zahlen
Gründungsjahr
1929
Häuser im Angebot
66
Häuser pro Jahr
ca. 750
Häuser gesamt
39.000
Mitarbeiter
1000
Bewertungen von Hanse Haus
Besprechungstermin findet demnächst statt.
Besprechungstermin findet demnächst statt.
16 März 2026Kirsten L.
Einfach nur schlecht! Die Beratung war unteri...
Einfach nur schlecht! Die Beratung war unterirdisch!! Der Berater ist nicht auf unsere wünsche eingegangen.
07 März 2026Michael W.
Sehr gute Beratung, schnelle Kontktaufnahme
Sehr gute Beratung, schnelle Kontktaufnahme
02 Feb. 2026Juliane B.
Leistungsspektrum
Preisgarantie
Bauzeit Garantie
Individuelle Planung
Blower Door Test
Persönliche Beratung für Ihre individuellen Wünsche
Finden Sie jetzt Ihren Ansprechpartner
Hanse Haus
Auszeichnungen, Zertifikate & Mitgliedschaften






Ähnliche Häuser Für Vita 156