





Lifestyle 173.1 von Haus der Handwerker
Preis auf Anfrage
Bewertungen von Haus der Handwerker
4,5
(4)
Wohnfläche
173 m²
Zimmer
4,5
Ausbaustufe
Schlüsselfertig
Bauweise
Massivhaus
Etagen
2
Energiestandard
Effizienzhaus 55
Dachform
Flachdach
Hausart
Einfamilienhaus
Beschreibung
Lifestyle 173.1 - Design-Haus mit Flachdach und großzügiger Raumplanung
Das LIFESTYLE 173.1 überzeugt mit einem architektonisch klaren Design und bietet auf rund 173 m² Wohnfläche ein durchdachtes Wohnkonzept für anspruchsvolle Familien und Paare mit Platzbedarf. Der offen gestaltete Wohn- und Essbereich im Erdgeschoss beeindruckt mit über 62 m² und schafft ein luftiges Ambiente. Diele, Gäste-WC sowie praktische Abstell- und Technikflächen runden das Erdgeschoss funktional ab.
Im Obergeschoss erwarten Sie ein großzügiges Schlafzimmer mit Ankleide, zwei nahezu gleich große Kinder- oder Arbeitszimmer sowie zwei vollwertige Bäder – perfekt für den Alltag mit Familie oder Gästen. Ein echtes Highlight ist der über 28 m² große Balkon, der als geschützter Rückzugsort im Freien dient.
Das LIFESTYLE 173.1 verbindet klare Formensprache mit wohnlicher Großzügigkeit und lässt sich flexibel an Ihre persönlichen Wünsche anpassen – für ein Zuhause, das genauso individuell ist wie Sie.Beim Lifestyle 118.1 handelt es sich um ein Typenhaus. Es wird in massiver Bauweise Stein auf Stein errichtet. Zum Einsatz kommen nur Produkte namhafter Markenhersteller.
Alle unsere Haustypen sind auf Wunsch auch als KfW-40-Effizienzhäuser mit QNG-Zertifizierung erhältlich - für zukunftssicheres Bauen mit attraktiver staatlicher Förderung.
Individuelles Bauen gehört zu unserem Markenkern. Deshalb planen wir Ihr Wunschhaus ganz individuell nach Ihren Vorgaben. Unsere Architekten setzen Ihre Vorstellungen dabei in kreativer Weise um und geben Ihnen wertvolle Tipps
Merkmale
- Balkon
Sie haben Interesse?
Laden Sie sich jetzt Ihr kostenloses Exposé zu diesem Haus herunter:
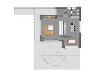
Grundrissfür Lifestyle 173.1
Außenmaße
Länge: 11,77 m
Breite: 10,48 m
Grundrisse
Der Grundriss entspricht nicht Ihren Vorstellungen?
Passen Sie den Grundriss an Ihre persönlichen Bedürfnisse an und besprechen Sie Ihren individuellen Plan mit einem Bauberater des Anbieters.
Merkmale
Energiestandard und Förderung
Energiestandard
Effizienzhaus 40
Effizienzhaus 40 EE
Effizienzhaus 40 NH
Effizienzhaus 40 Plus
Effizienzhaus 55
Plusenergiehaus
Dach
Dachform
Flachdach
Preisdetails für Lifestyle 173.1
Schlüsselfertig ab
Preis auf Anfrage
Dieser Preis ist ein Beispiel für den Anfang, ein Berater kann Ihnen ein detailliertes Angebot erstellen, das Ihren Bedürfnissen entspricht.
Möchten Sie bei Ihrem Projekt Geld sparen?
Durch einen Angebotsvergleich mit Bungalow.de können Sie bis zu 20 % Ihrer Baukosten sparen.
Über den Anbieter Haus der Handwerker
Zum Anbieterprofil
Bewertungen
4,5
(4)

Bewertungen
4,5
4 BewertungenHervorragend
Haus der Handwerker in Zahlen
Gründungsjahr
2007
Häuser im Angebot
16
Häuser gesamt
948
Bewertungen von Haus der Handwerker
Sehr gute Preis Leitungsverhältnis, gute Beratung, sehr ausführliche und offene Beratung
Haus der Handwerker hat mich überzeugt, Herr Feil hat das Unternehmen und die Bauleistungen sehr gut präsentiert. Auch das preis Leistungsverhältnis ist für mich sehr gut, natürlich kann erst zum Schluss eine ausführliche Bewertung gemacht werden, bis zum jetzigen Stand gehört HDW zu den Favoriten !!
09 März 2026Frank M.
Schelle und kompetente Kontaktaufnahme. Verzö...
Schelle und kompetente Kontaktaufnahme. Verzögerung ist unsererseits entstanden. Neben dem noch ausstehenden, persönlichen Gespräch sind wir gemeinsam auf der Suche nach einem Grundstück. Bekommen immer wieder Vorschläge seitens dem Anbieter. Fühlen uns aktuell sehr gut betreut. Erste Preisvorstellung nach Sichtung der Unterlagen / Fixierung auf ein Modell ebenfalls erhalten. Detailiertes Angebot denke ich erfolgt nach persönlichem Gespräch vor Ort.
01 Dez. 2025Andreas B.
Freundlicher Kontakt !
Freundlicher Kontakt !
26 Nov. 2025Frank M.
Leistungsspektrum
Finanzierungsberatung
Preisgarantie
Bauzeit Garantie
Individuelle Planung
Blower Door Test
Persönliche Beratung für Ihre individuellen Wünsche
Finden Sie jetzt Ihren Ansprechpartner
Haus der Handwerker
Ähnliche Häuser Für Lifestyle 173.1