




Concept 8 von KAMPA
Ab 1.114.890 €
Bewertungen von KAMPA
4,2
(118)
Wohnfläche
232 m²
Zimmer
4
Ausbaustufe
Schlüsselfertig
Bauweise
Fertighaus
Etagen
2
Energiestandard
Effizienzhaus 40 Plus
Dachform
Flachdach
Hausart
Einfamilienhaus
Beschreibung
Im Concept 8 erwartet Sie ein durchdachtes Wohnkonzept: Trockenen Fußes gelangen Sie vom Auto direkt ins Haus, während ein zusätzlicher Abstellraum an der Garage praktischen Stauraum bietet.
Dieses Haus ist ein stilvoller und funktionaler Rückzugsort. Der repräsentative Eingangsbereich empfängt Sie und Ihre Gäste mit besonderem Charme. Ein separates Gästezimmer sorgt für die Privatsphäre Ihrer Besucher. Die großzügigen Fenster verbinden Innen und Außen im Wohn- und Essbereich mit großer Küche und Speis, welche zum Lebensmittelpunkt Ihrer Familie wird. Die angrenzende Terrasse ist ideal, um unvergessliche Momente mit Familie und Freunden zu verbringen – sei es bei einem gemütlichen Abendessen oder einem entspannten Nachmittag im Freien.
Der luxuriöse Elternbereich mit Ankleide und freistehender Badewanne im Elternbad lässt keine Wünsche offen. Zwei gleichgroße Kinderzimmer mit eigenem Kinderbad bieten den perfekten Raum für Ihre Kinder. Und die großzügige Dachterrasse lädt zum Entspannen und Genießen ein.
Dieses Haus ist mehr als nur ein Wohnort – es ist ein Ort, an dem Sie sich wirklich zu Hause fühlen können. Ein Ort, der Ruhe und Inspiration bietet und Ihnen ermöglicht, das Leben in vollen Zügen zu genießen.
Merkmale
- Gästezimmer
Sie haben Interesse?
Laden Sie sich jetzt Ihr kostenloses Exposé zu diesem Haus herunter:
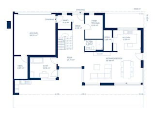
Grundrissfür Concept 8
Außenmaße
Länge: 19,9 m
Breite: 12,57 m
Grundrisse
Der Grundriss entspricht nicht Ihren Vorstellungen?
Passen Sie den Grundriss an Ihre persönlichen Bedürfnisse an und besprechen Sie Ihren individuellen Plan mit einem Bauberater des Anbieters.
Merkmale
Energiestandard und Förderung
Energiestandard
Effizienzhaus 40 Plus
Plusenergiehaus
Dach
Dachform
Flachdach
Preisdetails für Concept 8
Schlüsselfertig ab
1.114.890 €
Ausbauhaus ab1.013.053 €
ab 3.356,28 €
Dieser Preis ist ein Beispiel für den Anfang, ein Berater kann Ihnen ein detailliertes Angebot erstellen, das Ihren Bedürfnissen entspricht.
Möchten Sie bei Ihrem Projekt Geld sparen?
Durch einen Angebotsvergleich mit Bungalow.de können Sie bis zu 20 % Ihrer Baukosten sparen.
Über den Anbieter KAMPA
Zum Anbieterprofil
Bewertungen
4,2
(118)

Bewertungen
4,2
118 BewertungenHervorragend
KAMPA in Zahlen
Gründungsjahr
2009
Häuser im Angebot
20
Mitarbeiter
>550
Bewertungen von KAMPA
Eine sehr qualifizierte und persönliche Berat...
Eine sehr qualifizierte und persönliche Beratung durch Frau Kraume. Absolutes Lob und nochmals vielen Dank.
27 März 2026Wolfgang R.
Sehr netter mann und sehr freundlich, nettes ...
Sehr netter mann und sehr freundlich, nettes Gespräch gehabt.
13 Dez. 2025Fabian D.
Angebot und Kontakt erhalten.
Angebot und Kontakt erhalten.
01 März 2025Kerstin S.
Leistungsspektrum
Finanzierungsberatung
Preisgarantie
Bauzeit Garantie
Individuelle Planung
Blower Door Test
Persönliche Beratung für Ihre individuellen Wünsche
Finden Sie jetzt Ihren Ansprechpartner
KAMPA
Auszeichnungen, Zertifikate & Mitgliedschaften





Ähnliche Häuser Für Concept 8