




Signature L170 von KAMPA
Ab 606.152 €
Bewertungen von KAMPA
4,2
(118)
Wohnfläche
170 m²
Zimmer
4
Ausbaustufe
Schlüsselfertig
Bauweise
Fertighaus
Etagen
2
Energiestandard
Effizienzhaus 40 Plus
Dachform
Walmdach
Hausart
Einfamilienhaus
Beschreibung
Das Einfamilienhaus Signature L170 vereint moderne Architektur mit höchstem Wohnkomfort. Mit einem stilvollen Satteldach, durchdachtem Raumkonzept und eleganter Ausstattung wird zeitgemäßes Wohnen neu interpretiert.
Das Haus begeistert durch seine klare Architektursprache und eine Ausstattung, die Design und Funktionalität perfekt vereint. Die Kombination aus klassischem Satteldach und modernen Flachdach-Elementen schafft eine markante Silhouette. Eine warmgraue Fassade, edle Holzelemente und Akzente aus Metall verleihen dem Haus seine unverwechselbare Ästhetik. Großzügige Fensterflächen lassen viel Tageslicht ins Innere und erzeugen eine offene, lichte Wohnatmosphäre. Im Erdgeschoss verschmelzen Küche, Ess- und Wohnbereich zu einem stilvollen Lebensmittelpunkt – unterstrichen durch hochwertige Materialien wie Echtholzböden, Naturstein und moderne Einbauten.
Das Obergeschoss überzeugt mit flexibel nutzbaren Räumen für Schlafen, Arbeiten oder Gäste sowie zwei voll ausgestatteten Bädern – ideal für Familien oder anspruchsvolle Wohnkonzepte. Ein überdachter Carport und eine geschützte Terrasse runden das durchdachte Wohnkonzept ab. Ob für das lebendige Familienleben, das Homeoffice oder entspannte Auszeiten – das Signature L170 bietet nachhaltige Lebensqualität auf höchstem Niveau.
Sie haben Interesse?
Laden Sie sich jetzt Ihr kostenloses Exposé zu diesem Haus herunter:
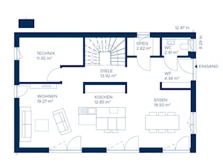
Grundrissfür Signature L170
Außenmaße
Länge: 12,48 m
Breite: 8,28 m
Grundrisse
Der Grundriss entspricht nicht Ihren Vorstellungen?
Passen Sie den Grundriss an Ihre persönlichen Bedürfnisse an und besprechen Sie Ihren individuellen Plan mit einem Bauberater des Anbieters.
Merkmale
Energiestandard und Förderung
Energiestandard
Effizienzhaus 40 Plus
Plusenergiehaus
Dach
Dachform
Walmdach
Dachneigung
10°
Kniestockhöhe
30.6 cm
Preisdetails für Signature L170
Schlüsselfertig ab
606.152 €
Ausbauhaus ab563.443 €
ab 1.824,77 €
Dieser Preis ist ein Beispiel für den Anfang, ein Berater kann Ihnen ein detailliertes Angebot erstellen, das Ihren Bedürfnissen entspricht.
Möchten Sie bei Ihrem Projekt Geld sparen?
Durch einen Angebotsvergleich mit Bungalow.de können Sie bis zu 20 % Ihrer Baukosten sparen.
Über den Anbieter KAMPA
Zum Anbieterprofil
Bewertungen
4,2
(118)

Bewertungen
4,2
118 BewertungenHervorragend
KAMPA in Zahlen
Gründungsjahr
2009
Häuser im Angebot
20
Mitarbeiter
>550
Bewertungen von KAMPA
Eine sehr qualifizierte und persönliche Berat...
Eine sehr qualifizierte und persönliche Beratung durch Frau Kraume. Absolutes Lob und nochmals vielen Dank.
27 März 2026Wolfgang R.
Sehr netter mann und sehr freundlich, nettes ...
Sehr netter mann und sehr freundlich, nettes Gespräch gehabt.
13 Dez. 2025Fabian D.
Angebot und Kontakt erhalten.
Angebot und Kontakt erhalten.
01 März 2025Kerstin S.
Leistungsspektrum
Finanzierungsberatung
Preisgarantie
Bauzeit Garantie
Individuelle Planung
Blower Door Test
Persönliche Beratung für Ihre individuellen Wünsche
Finden Sie jetzt Ihren Ansprechpartner
KAMPA
Auszeichnungen, Zertifikate & Mitgliedschaften





Ähnliche Häuser Für Signature L170