




Signature S152 von KAMPA
Ab 547.537 €
Bewertungen von KAMPA
4,2
(118)
Wohnfläche
152 m²
Zimmer
5
Ausbaustufe
Schlüsselfertig
Bauweise
Fertighaus
Etagen
2
Energiestandard
Effizienzhaus 40 Plus
Dachform
Walmdach
Hausart
Einfamilienhaus
Beschreibung
Willkommen im Signature S152 – einem Zuhause, das zeitlose Architektur mit moderner Lebensqualität vereint, in dem Klarheit auf Wärme und Funktion auf Ästhetik trifft.
Das zweigeschossige Signature S152 besticht durch eine harmonische Fassade aus dezent hellen Riemchen, die dem Haus eine erdverbundene Anmutung verleihen. Das stilvolle Walmdach setzt einen spannenden Kontrast zur kubischen Grundform und verleiht dem Haus eine elegante Silhouette. Schon beim Ankommen überzeugt der durchdachte Komfort: Ein überdachter Zugang führt direkt von der Garage ins Haus. Die großzügige Terrasse mit Holzvordach lädt zum Verweilen ein – ein idealer Ort für entspannte Abende. Bodentiefe Fenster lassen viel Licht ins Innere und verbinden den Außen- mit dem Innenraum auf harmonische Weise.
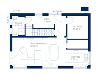
Im Erdgeschoss beginnt die Raumstruktur mit einer einladenden Diele samt Zugang zum Technikraum und einem komfortablen Duschbad. Der offene Wohn- und Essbereich mit angrenzender Küche und Speisekammer bildet das Herzstück des Hauses. Im Obergeschoss erwarten Sie ein großzügiges Hauptschlafzimmer, drei helle Kinderzimmer und zwei vollwertige Bäder. Eine offene Galerie sorgt für Leichtigkeit und ein luftiges Raumgefühl – ein Traumhaus für die ganze Familie.
Sie haben Interesse?
Laden Sie sich jetzt Ihr kostenloses Exposé zu diesem Haus herunter:
Grundrissfür Signature S152
Außenmaße
Länge: 11,73 m
Breite: 8,04 m
Grundrisse
Der Grundriss entspricht nicht Ihren Vorstellungen?
Passen Sie den Grundriss an Ihre persönlichen Bedürfnisse an und besprechen Sie Ihren individuellen Plan mit einem Bauberater des Anbieters.
Merkmale
Energiestandard und Förderung
Energiestandard
Effizienzhaus 40 Plus
Plusenergiehaus
Dach
Dachform
Walmdach
Dachneigung
22°
Preisdetails für Signature S152
Schlüsselfertig ab
547.537 €
Ausbauhaus ab502.156 €
ab 1.648,31 €
Dieser Preis ist ein Beispiel für den Anfang, ein Berater kann Ihnen ein detailliertes Angebot erstellen, das Ihren Bedürfnissen entspricht.
Möchten Sie bei Ihrem Projekt Geld sparen?
Durch einen Angebotsvergleich mit Bungalow.de können Sie bis zu 20 % Ihrer Baukosten sparen.
Über den Anbieter KAMPA
Zum Anbieterprofil
Bewertungen
4,2
(118)

Bewertungen
4,2
118 BewertungenHervorragend
KAMPA in Zahlen
Gründungsjahr
2009
Häuser im Angebot
20
Mitarbeiter
>550
Bewertungen von KAMPA
Eine sehr qualifizierte und persönliche Berat...
Eine sehr qualifizierte und persönliche Beratung durch Frau Kraume. Absolutes Lob und nochmals vielen Dank.
27 März 2026Wolfgang R.
Sehr netter mann und sehr freundlich, nettes ...
Sehr netter mann und sehr freundlich, nettes Gespräch gehabt.
13 Dez. 2025Fabian D.
Angebot und Kontakt erhalten.
Angebot und Kontakt erhalten.
01 März 2025Kerstin S.
Leistungsspektrum
Finanzierungsberatung
Preisgarantie
Bauzeit Garantie
Individuelle Planung
Blower Door Test
Persönliche Beratung für Ihre individuellen Wünsche
Finden Sie jetzt Ihren Ansprechpartner
KAMPA
Auszeichnungen, Zertifikate & Mitgliedschaften





Ähnliche Häuser Für Signature S152