





Familienhaus Luce von Kern-Haus
Ab 625.900 €
Bewertungen von Kern-Haus
3,9
(82)
Wohnfläche
192 m²
Zimmer
5
Ausbaustufe
Schlüsselfertig
Bauweise
Massivhaus
Etagen
1,5
Energiestandard
Effizienzhaus 55 EE
Dachform
Satteldach
Hausart
Einfamilienhaus
Beschreibung
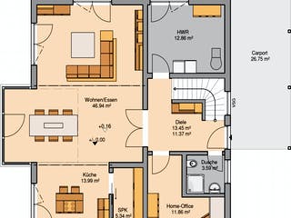
Zuhause ankommen: Luce ist mehr als ein Familienhaus - denn hier trifft repräsentative Eleganz auf lichtdurchflutete Räume. Über den angrenzenden Carport gelangen Sie in Ihr über 190 Quadratmeter großes Traumhaus. Ihre Einkäufe können Sie direkt in den angrenzenden Hauswirtschaftsraum oder in der Speisekammer, die direkt an die Küche angrenzt, abstellen.
Highlight im Erdgeschoss ist der fast 47 Quadratmeter große, offene Wohn- und Essbereich. Dieser wird durch den über beide Etagen ragenden Wintergarten lichtdurchflutet - und das zu jeder Jahreszeit. Das Erdgeschoss wird komplettiert durch ein Home-Office, das entspanntes Arbeiten von Zuhause möglich macht, und ein Gäste-WC mit Dusche.
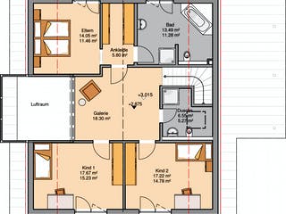
Selbst vom Dachgeschoss aus können Sie über die Galerie durch den Wintergarten in den heimischen Garten blicken. Die beiden Kinderzimmer mit jeweils 17 Quadratmetern verfügen über ein eigenes Badezimmer mit Dusche. Das Eltern-Schlafzimmer ist mit einer Ankleide und einem Wellness-Badezimmer mit Badewanne und Dusche ausgestattet. Alle Schlafzimmer verfügen über einen direkten Zugang auf einen der beiden Balkone. Luce: Symbiose von Licht und Freiraum!
Kern-Haus steht für 40 Jahre Expertise für das massive, energieeffiziente Bauen und realisiert Architektenhäuser in Ziegel, Bims, Porenbeton oder Stahlbeton (DuoTherm). Darüber hinaus setzt der Massivhaushersteller auf Energieeffizienz bei all seinen Häusern, denn bereits im Standard ist jedes Haus in der höchsten Energieeffizienzklasse A+.
Merkmale
- Wintergarten
Sie haben Interesse?
Laden Sie sich jetzt Ihr kostenloses Exposé zu diesem Haus herunter:
Grundrissfür Familienhaus Luce
Außenmaße
Länge: 12,1 m
Breite: 10,6 m
Grundrisse
Der Grundriss entspricht nicht Ihren Vorstellungen?
Passen Sie den Grundriss an Ihre persönlichen Bedürfnisse an und besprechen Sie Ihren individuellen Plan mit einem Bauberater des Anbieters.
Merkmale
Energiestandard und Förderung
Energiestandard
Effizienzhaus 55 EE
Dach
Dachform
Satteldach
Dachneigung
30°
Kniestockhöhe
125 cm
Preisdetails für Familienhaus Luce
Schlüsselfertig ab
625.900 €
ab 1.884,22 €
Dieser Preis ist ein Beispiel für den Anfang, ein Berater kann Ihnen ein detailliertes Angebot erstellen, das Ihren Bedürfnissen entspricht.
Möchten Sie bei Ihrem Projekt Geld sparen?
Durch einen Angebotsvergleich mit Bungalow.de können Sie bis zu 20 % Ihrer Baukosten sparen.
Über den Anbieter Kern-Haus
Zum Anbieterprofil
Bewertungen
3,9
(82)

Bewertungen
3,9
82 BewertungenGut
Kern-Haus in Zahlen
Gründungsjahr
1980
Häuser im Angebot
59
Mitarbeiter
300
Bewertungen von Kern-Haus
Frau Kuss ist sehr nett und engagiert. Sie ke...
Frau Kuss ist sehr nett und engagiert. Sie kennt das Unternehmen und hat eine ausführliche Bedarfsanalyse durchgeführt.
21 März 2026Julia V.
Mail erhalten, leider war ich selbst schlecht...
Mail erhalten, leider war ich selbst schlecht erreichbar.
16 März 2024Florian W.
Email erhalten
Email erhalten
10 März 2024Ana Cecilia S.
Leistungsspektrum
Preisgarantie
Bauzeit Garantie
Individuelle Planung
Blower Door Test
Persönliche Beratung für Ihre individuellen Wünsche
Finden Sie jetzt Ihren Ansprechpartner
Kern-Haus
Auszeichnungen, Zertifikate & Mitgliedschaften





Ähnliche Häuser Für Familienhaus Luce