



Doppelhaus Linus von Kern-Haus
Ab 397.900 €
Bewertungen von Kern-Haus
3,9
(82)
Wohnfläche
110 m²
Zimmer
4
Ausbaustufe
Schlüsselfertig
Bauweise
Massivhaus
Etagen
2
Energiestandard
Effizienzhaus 55 EE
Dachform
Walmdach
Hausart
Doppelhaus
Beschreibung
Ein Doppelhaus mit dem Mehr an Eleganz: Durch ein gemeinsames Walmdach werden die Doppelhaushälften optisch miteinander verbunden, gewinnen dadurch in der Außenwirkung an Größe und vermitteln den Charme einer eleganten Stadtvilla. Dabei ist Linus durch seine Außenmaße bestens für schmal geschnittene Grundstücke geeignet.
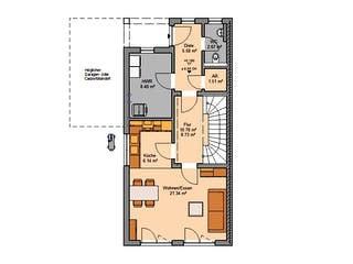
Nicht nur optisch hat das Doppelhaus von außen einiges zu bieten, sondern Linus zeigt sich auch praktisch: Durch einen überdachten Eingangsbereich gelangen Sie trockenen Fußes in Ihr Traumhaus. Einkäufe können Sie direkt neben dem Eingang im Hauswirtschaftsraum oder im Abstellraum unterbringen. Highlight des Erdgeschosses ist die offene Raumgestaltung von der Küche hin in den Wohn- und Essbereich. In der rechten Doppelhaushälfte haben Sie zudem einen Erker in der Küche. Das Erdgeschoss wird komplettiert durch ein Gäste-WC.
Im Obergeschoss hat ein Kinderzimmer, ein Eltern-Schlafzimmer, ein Home-Office und ein Familien-Badezimmer Platz. Durch bodentiefe Fenster werden die Räume zur Gartenseite sowohl im Erd- als auch im Obergeschoss lichtdurchflutet.
Kern-Haus steht für 40 Jahre Expertise für das massive, energieeffiziente Bauen und realisiert Architektenhäuser in Ziegel, Bims, Porenbeton oder Stahlbeton (DuoTherm). Darüber hinaus setzt der Massivhaushersteller auf Energieeffizienz bei all seinen Häusern, denn bereits im Standard ist jedes Haus in der höchsten Energieeffizienzklasse A+.
Sie haben Interesse?
Laden Sie sich jetzt Ihr kostenloses Exposé zu diesem Haus herunter:
Grundrissfür Doppelhaus Linus
Außenmaße
Länge: 12,85 m
Breite: 6,1 m
Grundrisse
Der Grundriss entspricht nicht Ihren Vorstellungen?
Passen Sie den Grundriss an Ihre persönlichen Bedürfnisse an und besprechen Sie Ihren individuellen Plan mit einem Bauberater des Anbieters.
Merkmale
Energiestandard und Förderung
Energiestandard
Effizienzhaus 55 EE
Dach
Dachform
Walmdach
Dachneigung
22.5°
Preisdetails für Doppelhaus Linus
Schlüsselfertig ab
397.900 €
ab 1.197,84 €
Dieser Preis ist ein Beispiel für den Anfang, ein Berater kann Ihnen ein detailliertes Angebot erstellen, das Ihren Bedürfnissen entspricht.
Möchten Sie bei Ihrem Projekt Geld sparen?
Durch einen Angebotsvergleich mit Bungalow.de können Sie bis zu 20 % Ihrer Baukosten sparen.
Über den Anbieter Kern-Haus
Zum Anbieterprofil
Bewertungen
3,9
(82)

Bewertungen
3,9
82 BewertungenGut
Kern-Haus in Zahlen
Gründungsjahr
1980
Häuser im Angebot
59
Mitarbeiter
300
Bewertungen von Kern-Haus
Frau Kuss ist sehr nett und engagiert. Sie ke...
Frau Kuss ist sehr nett und engagiert. Sie kennt das Unternehmen und hat eine ausführliche Bedarfsanalyse durchgeführt.
21 März 2026Julia V.
Mail erhalten, leider war ich selbst schlecht...
Mail erhalten, leider war ich selbst schlecht erreichbar.
16 März 2024Florian W.
Email erhalten
Email erhalten
10 März 2024Ana Cecilia S.
Leistungsspektrum
Preisgarantie
Bauzeit Garantie
Individuelle Planung
Blower Door Test
Persönliche Beratung für Ihre individuellen Wünsche
Finden Sie jetzt Ihren Ansprechpartner
Kern-Haus
Auszeichnungen, Zertifikate & Mitgliedschaften





Ähnliche Häuser Für Doppelhaus Linus