




BAUHAUS ANTEO von Kern-Haus Chemnitz
Ab 592.900 €
Bewertungen von Kern-Haus Chemnitz
5,0
(1)
Wohnfläche
214 m²
Zimmer
5
Ausbaustufe
Schlüsselfertig
Bauweise
Massivhaus
Energiestandard
Effizienzhaus 55
Dachform
Flachdach
Hausart
Einfamilienhaus
Beschreibung
Das Bauhaus Anteo ist ein modernes Kern-Haus mit 214 m². Hier hat eine Familie genügend Platz um sich Wohlzufühlen.
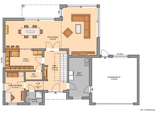
Das Wohn- und Esszimmer auf 55 m² wird zum Lebensmittelpunkt des Hauses, denn direkt angeschlossen ist die offene Küche mit Speisekammer. Große Fensterelemente im Wohnbereich bieten eine grenzenlose Sicht nach draußen. Ebenfalls im Erdgeschoss zu finden sind ein Home-Office, ein Duschbad und der Hauswirtschaftsraum, über den man in die Doppelgarage gelangt.
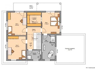
Eine geradlinige Treppe führt in die lichtdurchflutete Galerie im Obergeschoss. Für die Eltern ist hier ein 40 m² großer, separater Bereich geplant. Dieser dient als perfekter Rückzugsort nach einem stressigen Tag. Vom geräumigen Schlafzimmer gelangt man in die Ankleide als auch in das Badezimmer mit Dusche und freistehender Badewanne. Von der Galerie erreicht man außerdem zwei gleichgroße Kinderzimmer und ein weiteres Duschbad.
Abgerundet wird der durchdachte Grundriss von einem großzügigen Balkon in Richtung des Gartens. Dieser ist von einem der Kinderzimmer und dem Elternbereich begehbar.
Dieses Haus wird nach Ihren individuellen Wünschen geplant und ausgestattet!
Angaben zum Ausbauhauspreis: Die Ab-Preise, die aktuell hinterlegt sind, beziehen sich auf schlüsselfertige Häuser mit dem Energiestandard 55. Die Ausbauhäuser haben aber den Energiestandard 40.
Sie haben Interesse?
Laden Sie sich jetzt Ihr kostenloses Exposé zu diesem Haus herunter:
Grundrissfür BAUHAUS ANTEO
Grundrisse
Der Grundriss entspricht nicht Ihren Vorstellungen?
Passen Sie den Grundriss an Ihre persönlichen Bedürfnisse an und besprechen Sie Ihren individuellen Plan mit einem Bauberater des Anbieters.
Merkmale
Energiestandard und Förderung
Energiestandard
Effizienzhaus 55
Dach
Dachform
Flachdach
Preisdetails für BAUHAUS ANTEO
Schlüsselfertig ab
592.900 €
Ausbauhaus ab543.900 €
ab 1.784,88 €
Dieser Preis ist ein Beispiel für den Anfang, ein Berater kann Ihnen ein detailliertes Angebot erstellen, das Ihren Bedürfnissen entspricht.
Möchten Sie bei Ihrem Projekt Geld sparen?
Durch einen Angebotsvergleich mit Bungalow.de können Sie bis zu 20 % Ihrer Baukosten sparen.
Über den Anbieter Kern-Haus Chemnitz
Zum Anbieterprofil
Bewertungen
5,0
(1)

Bewertungen
5,0
1 BewertungHervorragend
Kern-Haus Chemnitz in Zahlen
Gründungsjahr
1995
Häuser im Angebot
52
Häuser pro Jahr
10-20
Mitarbeiter
1-10
Leistungsspektrum
Finanzierungsberatung
Preisgarantie
Bauzeit Garantie
Individuelle Planung
Blower Door Test
Persönliche Beratung für Ihre individuellen Wünsche
Finden Sie jetzt Ihren Ansprechpartner
Kern-Haus Chemnitz
Ähnliche Häuser Für BAUHAUS ANTEO