



BAUHAUS CUBE mit Doppelgarage von Kern-Haus Chemnitz
Ab 502.900 €
Bewertungen von Kern-Haus Chemnitz
5,0
(1)
Wohnfläche
160 m²
Zimmer
5
Ausbaustufe
Schlüsselfertig
Bauweise
Massivhaus
Energiestandard
Effizienzhaus 55
Dachform
Flachdach
Hausart
Einfamilienhaus
Beschreibung
Das Kern-Haus Cube verkörpert Kompromisslosigkeit in Form und Funktion. Die Fassadengestaltung folgt den Proportionen des modernen Bauhausstils.
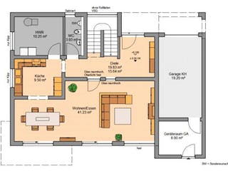
Zur Straße präsentiert sich das Haus in einer modernen Ansicht und bietet mit seiner Eingangsüberdachung einen praktischen Nutzen. Die Rückseite öffnet sich mit großen Fenstern dem eigenen Garten und bietet mit dem Balkon einen besonderen Nutzen. Im Inneren setzt sich die klare Linienführung des Hauses fort: die großzügige Diele präsentiert sich jedem Besucher und bietet durch deckenhohe Glaselemente einen Einblick in den großen Wohn- und Essbereich des Hauses. An die geräumige Küche ist ein Hauswirtschaftsraum angeschlossen, der viel Platz für die Technik, aber auch Vorräte bietet.
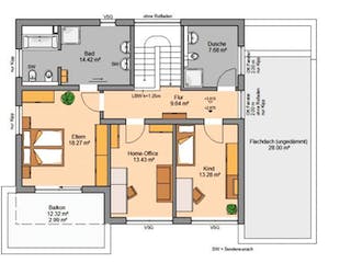
Im Obergeschoss befinden sich die Privaträume. Das Elternschlafzimmer erhält einen direkten Zugang auf den Balkon. Das separate, große Wohlfühl-Badezimmer kann lediglich aus dem Elternzimmer betreten werden. Weiterhin befinden sich im Obergeschoss zwei Zimmer, die beliebig als Kinderzimmer, Gästezimmer oder Home-Office genutzt werden können. Ein hierfür vorgesehenes Duschbad vervollständigt das Raumangebot. Eine zweite Variante des Dachgeschosses beherbergt zwei Kinderzimmer und ein Home-Office. In diesem Falle wird das Badezimmer von allen Bewohnern des Hauses genutzt.
Cube überzeugt außerdem mit einer Doppelgarage mit Geräteraum.
Design und Wohnlichkeit verleihen diesem Lifestyle-Haus einen starken Ausdruck – nie war modernes Wohnen schöner!
Dieses Haus wird nach Ihren individuellen Wünschen geplant und ausgestattet!
Angaben zum Ausbauhauspreis: Die Ab-Preise, die aktuell hinterlegt sind, beziehen sich auf schlüsselfertige Häuser mit dem Energiestandard 55. Die Ausbauhäuser haben aber den Energiestandard 40.
Sie haben Interesse?
Laden Sie sich jetzt Ihr kostenloses Exposé zu diesem Haus herunter:
Grundrissfür BAUHAUS CUBE mit Doppelgarage
Grundrisse
Der Grundriss entspricht nicht Ihren Vorstellungen?
Passen Sie den Grundriss an Ihre persönlichen Bedürfnisse an und besprechen Sie Ihren individuellen Plan mit einem Bauberater des Anbieters.
Merkmale
Energiestandard und Förderung
Energiestandard
Effizienzhaus 55
Dach
Dachform
Flachdach
Preisdetails für BAUHAUS CUBE mit Doppelgarage
Schlüsselfertig ab
502.900 €
Ausbauhaus ab442.900 €
ab 1.513,94 €
Dieser Preis ist ein Beispiel für den Anfang, ein Berater kann Ihnen ein detailliertes Angebot erstellen, das Ihren Bedürfnissen entspricht.
Möchten Sie bei Ihrem Projekt Geld sparen?
Durch einen Angebotsvergleich mit Bungalow.de können Sie bis zu 20 % Ihrer Baukosten sparen.
Über den Anbieter Kern-Haus Chemnitz
Zum Anbieterprofil
Bewertungen
5,0
(1)

Bewertungen
5,0
1 BewertungHervorragend
Kern-Haus Chemnitz in Zahlen
Gründungsjahr
1995
Häuser im Angebot
52
Häuser pro Jahr
10-20
Mitarbeiter
1-10
Leistungsspektrum
Finanzierungsberatung
Preisgarantie
Bauzeit Garantie
Individuelle Planung
Blower Door Test
Persönliche Beratung für Ihre individuellen Wünsche
Finden Sie jetzt Ihren Ansprechpartner
Kern-Haus Chemnitz
Ähnliche Häuser Für BAUHAUS CUBE mit Doppelgarage