










Homestory 101 von LEHNER HAUS
Ab 315.250 €
Bewertungen von LEHNER HAUS
3,8
(28)
Wohnfläche
131 m²
Zimmer
9
Ausbaustufe
Schlüsselfertig
Bauweise
Fertighaus
Etagen
2
Energiestandard
Effizienzhaus 55
Dachform
Pultdach
Hausart
Einfamilienhaus
Beschreibung
Sparsamer Kubus für die ganze Familie mit vielen Extras 150 Quadratmeter Wohnfläche, eine Fußbodenheizung - gespeist von einer Erdwärmepumpe, eine Photovoltaikanlage zur Stromerzeugung für den Eigenbedarf, ein Kamin für die Gemütlichkeit mit Holzaufzug, ein bequemer Wäscheabwurf zum Keller, 2 Balkone und eine großzügige Terrasse aus Holz zum geräumigen Garten hin: Lehner Haus baut energieeffiziente sparsame Häuser, die alles für ein angenehmes Wohnen bieten.
Merkmale
- Terrasse
- Gästezimmer
Sie haben Interesse?
Laden Sie sich jetzt Ihr kostenloses Exposé zu diesem Haus herunter:
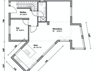
Grundrissfür Homestory 101
Grundrisse
Der Grundriss entspricht nicht Ihren Vorstellungen?
Passen Sie den Grundriss an Ihre persönlichen Bedürfnisse an und besprechen Sie Ihren individuellen Plan mit einem Bauberater des Anbieters.
Merkmale
Energiestandard und Förderung
Energiestandard
Effizienzhaus 55
U-Wert
0,19
Dach
Dachform
Pultdach
Dachneigung
5°
Preisdetails für Homestory 101
Schlüsselfertig ab
315.250 €
Ausbauhaus ab238.550 €
ab 949,03 €
Dieser Preis ist ein Beispiel für den Anfang, ein Berater kann Ihnen ein detailliertes Angebot erstellen, das Ihren Bedürfnissen entspricht.
Möchten Sie bei Ihrem Projekt Geld sparen?
Durch einen Angebotsvergleich mit Bungalow.de können Sie bis zu 20 % Ihrer Baukosten sparen.
Über den Anbieter LEHNER HAUS
Zum Anbieterprofil
Bewertungen
3,8
(28)

Bewertungen
3,8
28 BewertungenGut
LEHNER HAUS in Zahlen
Gründungsjahr
1963
Häuser im Angebot
35
Häuser pro Jahr
100
Mitarbeiter
110
Bewertungen von LEHNER HAUS
Super freundlich und haben versucht uns telef...
Super freundlich und haben versucht uns telefonisch zu helfen. Ein Termin ist in Aussicht
09 Aug. 2025Jonas G.
Ein sehr netter Erstkontakt. Freue mich auf d...
Ein sehr netter Erstkontakt. Freue mich auf die Zusammenarbeit.
08 Sep. 2024Adriana B.
Freundlich und kompetent
Sehr ausführliche und freundliche Beratung
17 Aug. 2024Roland S.
Leistungsspektrum
Preisgarantie
Bauzeit Garantie
Individuelle Planung
Blower Door Test
Persönliche Beratung für Ihre individuellen Wünsche
Finden Sie jetzt Ihren Ansprechpartner
LEHNER HAUS
Ähnliche Häuser Für Homestory 101