




Schönbek von Nissen Massivhaus
Preis auf Anfrage
Bewertungen von Nissen Massivhaus
0
(0)
Wohnfläche
215 m²
Zimmer
6
Ausbaustufe
Schlüsselfertig
Bauweise
Massivhaus
Etagen
2
Energiestandard
Effizienzhaus 40
Dachform
Satteldach
Hausart
Doppelhaus
Beschreibung
Diese Doppelhaus besticht durch seinen nordischen Charme mit Kapitänsgiebel und einer schönen eingangsüberdachung, auch der Grundriss kann natürlich wie bei allen Häusern noch auf 2 Kinderzimmer angepasst werden, im Wohnzimmer mit einer großen Hebeschiebetür damit mehr Platz vorhanden ist
Sie haben Interesse?
Laden Sie sich jetzt Ihr kostenloses Exposé zu diesem Haus herunter:
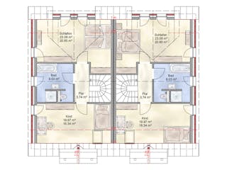
Grundrissfür Schönbek
Außenmaße
Länge: 13,54 m
Breite: 11,12 m
Grundrisse
Der Grundriss entspricht nicht Ihren Vorstellungen?
Passen Sie den Grundriss an Ihre persönlichen Bedürfnisse an und besprechen Sie Ihren individuellen Plan mit einem Bauberater des Anbieters.
Merkmale
Energiestandard und Förderung
Energiestandard
Effizienzhaus 40
Dach
Dachform
Satteldach
Dachneigung
42°
Kniestockhöhe
115 cm
Preisdetails für Schönbek
Schlüsselfertig ab
Preis auf Anfrage
Dieser Preis ist ein Beispiel für den Anfang, ein Berater kann Ihnen ein detailliertes Angebot erstellen, das Ihren Bedürfnissen entspricht.
Möchten Sie bei Ihrem Projekt Geld sparen?
Durch einen Angebotsvergleich mit Bungalow.de können Sie bis zu 20 % Ihrer Baukosten sparen.
Über den Anbieter Nissen Massivhaus
Zum Anbieterprofil
Bewertungen
0
(0)

Bewertungen
0
0 BewertungenKeine
Nissen Massivhaus in Zahlen
Gründungsjahr
2008
Häuser im Angebot
21
Häuser pro Jahr
ca. 50
Mitarbeiter
7
Leistungsspektrum
Preisgarantie
Bauzeit Garantie
Individuelle Planung
Blower Door Test
Persönliche Beratung für Ihre individuellen Wünsche
Finden Sie jetzt Ihren Ansprechpartner
Nissen Massivhaus
Ähnliche Häuser Für Schönbek