




Stadthaus S-150 von NURDA-Hausbau
Ab 275.800 €
Bewertungen von NURDA-Hausbau
5,0
(1)
Wohnfläche
150 m²
Zimmer
5
Ausbaustufe
Schlüsselfertig
Bauweise
Massivhaus
Etagen
2
Energiestandard
Effizienzhaus 55
Dachform
Walmdach
Hausart
Einfamilienhaus
Beschreibung
Modernes Stadthaus mit durchdachtem Grundriss und Zelt- oder Satteldach.
Unser modernes Stadthaus bietet drei unterschiedliche Grundrissvarianten, die sich mit seitlich angeordneten Hauseingängen den Vorgaben Ihres Grundstücks anpassen. Die großzügigen Räume bieten Platz für bis zu vier Bewohner und werden im Obergeschoss durch eine Ankleide sowie einen Abstellraum ergänzt.
Merkmale
- Gästezimmer
Sie haben Interesse?
Laden Sie sich jetzt Ihr kostenloses Exposé zu diesem Haus herunter:
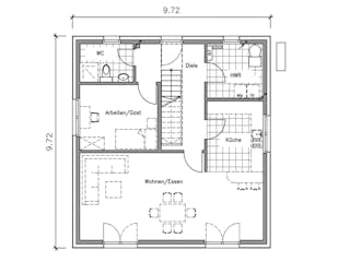
Grundrissfür Stadthaus S-150
Außenmaße
Länge: 9,72 m
Breite: 9,72 m
Grundrisse
Der Grundriss entspricht nicht Ihren Vorstellungen?
Passen Sie den Grundriss an Ihre persönlichen Bedürfnisse an und besprechen Sie Ihren individuellen Plan mit einem Bauberater des Anbieters.
Merkmale
Energiestandard und Förderung
Energiestandard
Effizienzhaus 40
Effizienzhaus 40 Plus
Effizienzhaus 55
Dach
Dachform
Walmdach
Dachneigung
25°
Kniestockhöhe
276 cm
Preisdetails für Stadthaus S-150
Schlüsselfertig ab
275.800 €
ab 830,27 €
Dieser Preis ist ein Beispiel für den Anfang, ein Berater kann Ihnen ein detailliertes Angebot erstellen, das Ihren Bedürfnissen entspricht.
Möchten Sie bei Ihrem Projekt Geld sparen?
Durch einen Angebotsvergleich mit Bungalow.de können Sie bis zu 20 % Ihrer Baukosten sparen.
Über den Anbieter NURDA-Hausbau
Zum Anbieterprofil
Bewertungen
5,0
(1)

Bewertungen
5,0
1 BewertungHervorragend
NURDA-Hausbau in Zahlen
Gründungsjahr
1966
Häuser im Angebot
4
Häuser pro Jahr
51-100
Mitarbeiter
20-25
Bewertungen von NURDA-Hausbau
Es wurde sehr schnell den geplanten bauproje...
Es wurde sehr schnell den geplanten bauprojekt Angebot erstellt .
06 Dez. 2025Siruan A.
Persönliche Beratung für Ihre individuellen Wünsche
Finden Sie jetzt Ihren Ansprechpartner
NURDA-Hausbau
Ähnliche Häuser Für Stadthaus S-150