









Mehrgenerationenhaus von petershaus
Preis auf Anfrage
Bewertungen von petershaus
4,9
(7)
Wohnfläche
292 m²
Zimmer
8
Ausbaustufe
Schlüsselfertig
Bauweise
Fertighaus
Etagen
2
Energiestandard
Effizienzhaus 40
Dachform
Satteldach
Hausart
Zweifamilienhaus
Beschreibung
Ob jung oder alt - das Mehrgenerationenhaus von petershaus bietet Vorteile, von denen alle Generationen profitieren. Das innovative, zukunftsträchtige Wohnkonzept fördert gemeinschaftliches Engagement, es ermöglicht die Begegnung, den Austausch und die Unterstützung im alltäglichen Leben durch die unmittelbare räumliche Nähe zueinander. Zusätzlich wird bei der gemeinsamen Planung eines Mehrgenerationenhauses auf alle Bedürfnisse Rücksicht genommen: So können einerseits das barrierefreie Wohnen für die Senioren oder eine zusätzliche Einliegerwohnung für Pflegekräfte umgesetzt, gleichzeitig aber auch weitere Wünsche und Ideen wie getrennte Eingangsbereiche, ein moderner Wintergarten oder angebaute Garagen flexibel realisiert werden.
Beispiel: Modernes Generationenhaus mit separatem Eingangsbereich
Bei dem vorliegenden Beispielhaus haben sich die Hausherren für ein modernes Äußeres entschieden. Die roten Eingangstüren, graue Holzfensterrahmen und der begrünte Carport setzen besondere optische Akzente. Durch die beiden separaten Eingänge wird ein individuelles Miteinander ermöglicht, welches gleichzeitig auch räumliche Trennung und Rückzugsmöglichkeiten bietet. Insgesamt haben hier drei Generationen Platz zum Leben und Wohnen – in zwei ebenerdigen Wohnungen sowie einer durchgängigen Wohneinheit im Obergeschoss.
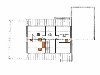
Die zwei Einheiten im ebenerdigen und somit barrierefreien Wohnbereich haben voneinander getrennte Terrassen und Außenbereiche. Die obere Wohneinheit verfügt über eine große Dachterrasse. Eine große Patchworkfamilie findet in diesem Generationenhaus über drei Ebenen Platz.
Das gesamte Satteldach des Mehrgenerationenhauses wurde für die Installation einer energieeffizienter Photovoltaikanlage genutzt.
In der Doppelgarage und dem zusätzlichen Carport finden alle Autos der vielen Familienmitglieder einen Platz, zudem haben unsere Experten das Dach des Carports begrünt.
Preis auf Anfrage
Merkmale
- Garage
- Gästezimmer
Sie haben Interesse?
Laden Sie sich jetzt Ihr kostenloses Exposé zu diesem Haus herunter:
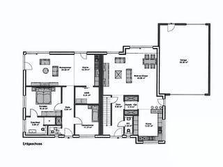
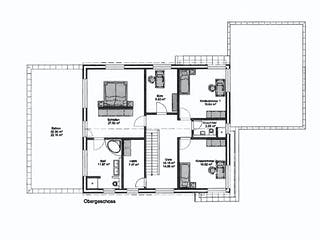
Grundrissfür Mehrgenerationenhaus
Außenmaße
Länge: 15 m
Breite: 11 m
Grundrisse
Der Grundriss entspricht nicht Ihren Vorstellungen?
Passen Sie den Grundriss an Ihre persönlichen Bedürfnisse an und besprechen Sie Ihren individuellen Plan mit einem Bauberater des Anbieters.
Merkmale
Energiestandard und Förderung
Energiestandard
Effizienzhaus 40
Dach
Dachform
Satteldach
Preisdetails für Mehrgenerationenhaus
Schlüsselfertig ab
Preis auf Anfrage
Dieser Preis ist ein Beispiel für den Anfang, ein Berater kann Ihnen ein detailliertes Angebot erstellen, das Ihren Bedürfnissen entspricht.
Möchten Sie bei Ihrem Projekt Geld sparen?
Durch einen Angebotsvergleich mit Bungalow.de können Sie bis zu 20 % Ihrer Baukosten sparen.
Über den Anbieter petershaus
Zum Anbieterprofil
Bewertungen
4,9
(7)

Bewertungen
4,9
7 BewertungenHervorragend
petershaus in Zahlen
Gründungsjahr
1965
Häuser im Angebot
5
Häuser pro Jahr
20
Häuser gesamt
>1000
Mitarbeiter
30
Bewertungen von petershaus
Wir erhielten eine sehr gute Beratung, die ke...
Wir erhielten eine sehr gute Beratung, die keine Fragen mehr offen ließ
09 März 2026Stefanie T.
Wir sind sehr zufrieden mit dem professionell...
Wir sind sehr zufrieden mit dem professionellen Umgang. Zuerst waren wir etwas skeptisch, sind dann aber sehr schnell vom Gegenteil überzeugt worden. Wir haben uns entschieden mit Petershaus ein Bungalow zu bauen und freuen uns drauf. Die Zusammenarbeit bis jetzt war sehr positiv. Ehrlich, wertschätzend und vertrauensvoll. Auch die Geschwindigkeit der bis jetzt angefallen Themen war echt klasse. Liebe Frau Sell, weiter so. :-)
22 Okt. 2025Dirk N.
sich als Kunde gut aufgehoben fühlen
Frau Sell und das ganze Team sind bereitwillig auf Wünsche eingegangen und haben aktiv mögliche Lösungen präsentiert. Die Mitarbeiter auf der Baustelle sind motiviert und arbeiten präzise. Das Haus passt auf den mm genau
21 Okt. 2025Eheleute M.
Leistungsspektrum
Preisgarantie
Bauzeit Garantie
Individuelle Planung
Blower Door Test
Persönliche Beratung für Ihre individuellen Wünsche
Finden Sie jetzt Ihren Ansprechpartner
petershaus
Ähnliche Häuser Für Mehrgenerationenhaus