









Ohlig von Plan-Concept Massivhaus
Preis auf Anfrage
Bewertungen von Plan-Concept Massivhaus
4,2
(4)
Wohnfläche
193 m²
Zimmer
7
Bauweise
Massivhaus
Etagen
1,5
Energiestandard
Effizienzhaus 55
Dachform
Satteldach
Hausart
Einfamilienhaus
Beschreibung
Bewusst anders, bewusst individuell.
Keine Frage, das Haus von Familie Ohlig fällt auf. Hebt es sich doch in so vielen Punkten vom Mainstream zeitgenössischer Architektur ab und bietet so seinen Bewohnern einen rundum passenden, individuellen Wohnkomfort. Dieses Unikat strahlt mit seinen minimalen Dachüberständen und der schlichten Linienführung schnörkellosen Purismus aus. Oben unterbrechen Fensterreihen mit schwarzen Putzflächen den Giebel, unten durchbrechen sie Symmetrieachsen und erzeugen so doch ein absolut stimmiges Bild. Darin fügt sich auch der Kontrast durch die Holzfunierverkleidung ein, den man so sicherlich nicht erwartet hätte. Auf der Süd- und Westseite des Hauses ermöglichen geschützte Freiflächen ein aktives Leben im Freien und bewirken zusätzlich eine im Sommer wohltuende Beschattung.
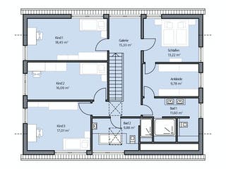
Die Räume auf insgesamt rund 194 m² Wohnfläche sind in extrovertierte Kommunikationsbereiche und introvertierte Rückzugsbereiche unterteilt. Viel Platz und die offene Gestaltung laden zum Durchatmen ein. Und auch das über ein geradläufiges Faltwerk mit Geländer erschlossene Obergeschoss präsentiert sich als durchgeplante Ebene. Ein Elternschlafzimmer, drei gut geschnittene Kinderzimmer sowie zwei Bäder finden hier Platz.
Preis auf Anfrage
Merkmale
- Gästezimmer
Sie haben Interesse?
Laden Sie sich jetzt Ihr kostenloses Exposé zu diesem Haus herunter:
Grundrissfür Ohlig
Außenmaße
Länge: 10,49 m
Breite: 13,36 m
Grundrisse
Der Grundriss entspricht nicht Ihren Vorstellungen?
Passen Sie den Grundriss an Ihre persönlichen Bedürfnisse an und besprechen Sie Ihren individuellen Plan mit einem Bauberater des Anbieters.
Merkmale
Energiestandard und Förderung
Energiestandard
Effizienzhaus 40
Effizienzhaus 40 Plus
Effizienzhaus 55
Dach
Dachform
Satteldach
Dachneigung
22°
Kniestockhöhe
137.5 cm
Preisdetails für Ohlig
Preis auf Anfrage
Dieser Preis ist ein Beispiel für den Anfang, ein Berater kann Ihnen ein detailliertes Angebot erstellen, das Ihren Bedürfnissen entspricht.
Möchten Sie bei Ihrem Projekt Geld sparen?
Durch einen Angebotsvergleich mit Bungalow.de können Sie bis zu 20 % Ihrer Baukosten sparen.
Über den Anbieter Plan-Concept Massivhaus
Zum Anbieterprofil
Bewertungen
4,2
(4)

Bewertungen
4,2
4 BewertungenHervorragend
Plan-Concept Massivhaus in Zahlen
Gründungsjahr
2000
Häuser im Angebot
13
Häuser pro Jahr
22
Häuser gesamt
310
Mitarbeiter
7
Bewertungen von Plan-Concept Massivhaus
Herr Lauff ist einfach ein sehr guter Berater...
Herr Lauff ist einfach ein sehr guter Berater.
03 Juli 2024Alaa A.
Leistungsspektrum
Preisgarantie
Bauzeit Garantie
Individuelle Planung
Blower Door Test
Persönliche Beratung für Ihre individuellen Wünsche
Finden Sie jetzt Ihren Ansprechpartner
Plan-Concept Massivhaus
Weitere Häuser
Ähnliche Häuser Für Ohlig