










Alois von Regnauer Hausbau
Ab 786.020 €
Bewertungen von Regnauer Hausbau
5,0
(1)
Wohnfläche
247 m²
Zimmer
7
Ausbaustufe
Schlüsselfertig
Bauweise
Fertighaus
Etagen
2
Energiestandard
Effizienzhaus 55
Dachform
Satteldach
Hausart
Einfamilienhaus
Beschreibung
Außen ländliche Idylle, drinnen ein modernes Zuhause mit jeglichem Komfort. So präsentiert sich das Holzfertighaus „Alois“ mitten in Oberbayern. Mit Haus Alois haben sich seine Bewohner den Traum erfüllt vom Rückzugsort, vom Gefühl "daheim zu sein" in wohltuender Geborgenheit. Selbstverständlich mit allem modernen Komfort.
Entwurfsverfasser: Dipl. Ing. (FH) Architektin Irini Solakidou, www.solakidou.de (externer Architekt);
Ausführung gemäß aktueller Regnauer Bauleistungs- und Ausstattungsbeschreibung. Abbildungen können Sonderausstattung zeigen.
Wir legen großen Wert darauf, Ihr Vitalhaus ganz nach Ihren persönlichen Wünschen zu gestalten.
Gemäß Ihren Wünschen und Ihrer Grundstückssituation ergibt sich dann ein exakter Festpreis für Ihr Traumhaus. Daher beziehen sich die Preise auf eine Vitalausstattung ohne spezifische Sonderausstattung.
Merkmale
- Kamin
- Balkon
Sie haben Interesse?
Laden Sie sich jetzt Ihr kostenloses Exposé zu diesem Haus herunter:
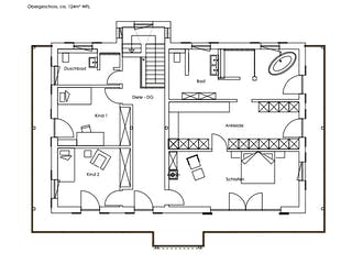
Grundrissfür Alois
Außenmaße
Länge: 15 m
Breite: 10 m
Grundrisse
Der Grundriss entspricht nicht Ihren Vorstellungen?
Passen Sie den Grundriss an Ihre persönlichen Bedürfnisse an und besprechen Sie Ihren individuellen Plan mit einem Bauberater des Anbieters.
Merkmale
Energiestandard und Förderung
Energiestandard
Effizienzhaus 40
Effizienzhaus 40 Plus
Effizienzhaus 55
Plusenergiehaus
U-Wert
0,14
Dach
Dachform
Satteldach
Dachneigung
20°
Kniestockhöhe
246 cm
Preisdetails für Alois
Schlüsselfertig ab
786.020 €
ab 2.366,25 €
Dieser Preis ist ein Beispiel für den Anfang, ein Berater kann Ihnen ein detailliertes Angebot erstellen, das Ihren Bedürfnissen entspricht.
Möchten Sie bei Ihrem Projekt Geld sparen?
Durch einen Angebotsvergleich mit Bungalow.de können Sie bis zu 20 % Ihrer Baukosten sparen.
Über den Anbieter Regnauer Hausbau
Zum Anbieterprofil
Bewertungen
5,0
(1)

Bewertungen
5,0
1 BewertungHervorragend
Regnauer Hausbau in Zahlen
Gründungsjahr
1929
Häuser im Angebot
26
Häuser pro Jahr
ca. 100
Häuser gesamt
über 3.000
Mitarbeiter
250
Bewertungen von Regnauer Hausbau
Wir waren den Sommer über im Allgäu und haben...
Wir waren den Sommer über im Allgäu und haben dort diese wunderschönen Häuser bestaunen können! In unserer Phantasie wünschen wir uns auch schon länger solch ein tolles Haus.
07 Dez. 2025Elphi W.
Leistungsspektrum
Finanzierungsberatung
Preisgarantie
Bauzeit Garantie
Individuelle Planung
Blower Door Test
Persönliche Beratung für Ihre individuellen Wünsche
Finden Sie jetzt Ihren Ansprechpartner
Regnauer Hausbau
Auszeichnungen, Zertifikate & Mitgliedschaften






Ähnliche Häuser Für Alois