




Vitalhaus Bad Endorf von Regnauer Hausbau
Ab 485.550 €
Bewertungen von Regnauer Hausbau
5,0
(1)
Wohnfläche
150 m²
Zimmer
5
Ausbaustufe
Schlüsselfertig
Bauweise
Fertighaus
Energiestandard
Effizienzhaus 40 Plus
Dachform
Satteldach
Hausart
Einfamilienhaus
Beschreibung
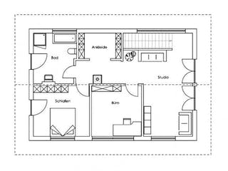
Eine Oase der Entspannung – Die symmetrische Fassadengestaltung mit klaren Linien und großzügigen, teilweise ebenerdigen Fenstern strahlt Ruhe aus und wirkt gleichzeitig einladend. Fließend gestaltet sich der Übergang zwischen Garten, Terrasse und dem Haus, von dessen Rückseite der Blick zu den Alpen reicht. Das üppige Grün des Gartens und die weiß verputzte Hausfassade signalisieren Vitalität und Lebenskraft. Das flach geneigte Satteldach lässt auch im Obergeschoss noch genügend Licht ins Hausinnere. Ein auf zwei Hausseiten verlaufender breiter Balkon ergänzt das Haus.
Ein Haus, das gut tut - Schon die ersten Schritte in die Diele unterstreichen das gewünschte offene Ambiente, das auf der Liste der Bauherren, beide um die sechzig, ganz oben stand. Die klare Formensprache der Inneneinrichtung und die vorherrschende Farbe Weiß verstärken die weitläufige Atmosphäre, die durch geschickt gesetzte farbliche Akzente unterstrichen wird. Neben der offenen Küche liegt der lichtdurchflutete Ess- und Wohnbereich, von dem aus man die breite Terrasse betritt. Wärme vermitteln die hellen Bodendielen und die Holztreppe ins Dachgeschoss. An den Garderobenbereich schließen sich ein kompaktes Duschbad sowie ein praktischer Hauswirtschaftsraum an. Die Raumaufteilung im Obergeschoss orientiert sich ganz an den Wünschen der Bauherren: Großzügig und hell präsentiert sich das Schlafzimmer, das Bad beeindruckt durch seine hochwertige, edle Ausstattung. Ordnung schafft der übersichtliche Ankleideraum mit platzsparenden Schiebetüren. Der beruflichen Position als Anwalt trägt das Büro des Bauherrn Rechnung, sodass sich Arbeiten in der entspannenden Atmosphäre des eigenen Hauses erledigen lassen.
Träume verwirklichen – Je anstrengender das berufliche Engagement, umso wichtiger ist ein Rückzugsort, der wieder Kraft und Energie spendet. Die Leidenschaft des Hausherrn gilt der Musik. Als besonderes Extra gönnte sich der Anwalt in seinem Traumhaus einen eigenen Musikraum.
Ausführung gemäß aktueller Regnauer Bauleistungs- und Ausstattungsbeschreibung. Weitere Informationen auf www.regnauer.de. Abbildungen können Sonderausstattung zeigen. Wir legen großen Wert darauf, Ihr Vitalhaus ganz nach Ihren persönlichen Wünschen zu gestalten. Gemäß Ihren Wünschen und Ihrer Grundstückssituation ergibt sich dann ein exakter Festpreis für Ihr Traumhaus. Daher beziehen sich die Preise auf eine Vitalausstattung ohne spezifische Sonderausstattung.
Voraussetzung zur Erlangung der Bundesförderung für Effiziente Gebäude ist die Einhaltung der diesbezüglichen Förderrichtlinien. So wird hierfür unter anderem die Ausführung einer förderfähigen Haustechnik sowie die entsprechende Ausführung der bauherrenseitigen Leistungen (z.B. Keller und -ausbau) vorausgesetzt. Die Förderrichtlinien sind auch Änderungen unterworfen, sodass die Förderfähigkeit jeweils im Einzelfall geprüft und objektspezifisch durch das Förderinstitut bestätigt werden muss. Auch können einzelne Programme ausgesetzt oder verändert werden. Die Regnauer Hausbau GmbH & Co KG kann keine Finanzierungs- oder Förderberatung durchführen.
Sie haben Interesse?
Laden Sie sich jetzt Ihr kostenloses Exposé zu diesem Haus herunter:
Grundrissfür Vitalhaus Bad Endorf
Grundrisse
Der Grundriss entspricht nicht Ihren Vorstellungen?
Passen Sie den Grundriss an Ihre persönlichen Bedürfnisse an und besprechen Sie Ihren individuellen Plan mit einem Bauberater des Anbieters.
Merkmale
Energiestandard und Förderung
Energiestandard
Effizienzhaus 40
Effizienzhaus 40 Plus
Dach
Dachform
Satteldach
Preisdetails für Vitalhaus Bad Endorf
Schlüsselfertig ab
485.550 €
ab 1.461,71 €
Dieser Preis ist ein Beispiel für den Anfang, ein Berater kann Ihnen ein detailliertes Angebot erstellen, das Ihren Bedürfnissen entspricht.
Möchten Sie bei Ihrem Projekt Geld sparen?
Durch einen Angebotsvergleich mit Bungalow.de können Sie bis zu 20 % Ihrer Baukosten sparen.
Über den Anbieter Regnauer Hausbau
Zum Anbieterprofil
Bewertungen
5,0
(1)

Bewertungen
5,0
1 BewertungHervorragend
Regnauer Hausbau in Zahlen
Gründungsjahr
1929
Häuser im Angebot
26
Häuser pro Jahr
ca. 100
Häuser gesamt
über 3.000
Mitarbeiter
250
Bewertungen von Regnauer Hausbau
Wir waren den Sommer über im Allgäu und haben...
Wir waren den Sommer über im Allgäu und haben dort diese wunderschönen Häuser bestaunen können! In unserer Phantasie wünschen wir uns auch schon länger solch ein tolles Haus.
07 Dez. 2025Elphi W.
Leistungsspektrum
Finanzierungsberatung
Preisgarantie
Bauzeit Garantie
Individuelle Planung
Blower Door Test
Persönliche Beratung für Ihre individuellen Wünsche
Finden Sie jetzt Ihren Ansprechpartner
Regnauer Hausbau
Auszeichnungen, Zertifikate & Mitgliedschaften






Ähnliche Häuser Für Vitalhaus Bad Endorf