




Vitalhaus Bad Reichenhall von Regnauer Hausbau
Ab 481.000 €
Bewertungen von Regnauer Hausbau
5,0
(1)
Wohnfläche
130 m²
Zimmer
4
Ausbaustufe
Schlüsselfertig
Bauweise
Fertighaus
Energiestandard
Effizienzhaus 40 Plus
Dachform
Satteldach
Hausart
Einfamilienhaus
Beschreibung
Ein Traumgrundstück in Ortsrandlage setzt natürlich Maßstäbe beim Bauen. Zum einen soll sich das Haus in die Landschaft einfügen. Gleichzeitig sollte das Haus die Landschaft einbeziehen und sich in diese integrieren.
Natürlich bauen mit Holz
Natürlich bauen: Darin besitzt das Familienunternehmen Regnauer eine jahrzehntelange Erfahrung. Der Baustoff Holz ist ein nachwachsendes Produkt aus der Natur. Ihm ordnet sich auch die Architektur der Vitalhäuser unter. Sie werden durch eine klassische Eleganz geprägt, die auch das Holzständerhaus der Bauherren kennzeichnet. Der Baukörper besitzt eine klare, symmetrische Aufteilung mit einem vorgestellten Quergiebel in der Mitte. Das Satteldach behütet ein Dachgeschoss, wo durch eine 24-Grad-Neigung hohe Räume mit Sichtdachstuhl entstanden sind. Die Fassade ist durch eine waagerechte Holzschalung im Erdgeschoss gegliedert. Holz und die Farbe Weiß auch bei der Wahl der wartungsfreien, serienmäßig eingebauten Holz-Alu-Fenster und bei den Türen geben den Ton an.
Zur Straßenseite schirmen schmale Fenster das Wohnhaus ab, nach Süden öffnet sich das Gebäude mit großen Glasflächen in die Landschaft. Von der Terrasse und vom Balkon des Quergiebels genießen die Hausherren einen traumhaften Blick auf das Alpenpanorama und eine Bergwiese. Ihre Garage schließt sich an einen offenen Carport am Haus an, sodass die doppelten Stellmöglichkeiten nicht massiv wirken. Filigran erscheint auch die Überdachung eines Teils der Terrasse mit einem weißen Sonnensegel. Diese Transparenz wird im Innern des Neubaus im Erdgeschoss durch einen offenen Wohn- und Essbereich mit Küche unterstrichen. Die Außenanlagen sind bewusst nicht gegliedert worden. Das weite Grün beruhigt das Auge, hier gibt es außerdem viel Platz zum Toben für den jüngsten Bewohner des Hauses. Als wohltuend empfinden die Bauherren auch das gesunde Raumklima, das durch den Baustoff Holz entsteht. Er garantiert in Kombination mit dem spezifischen Regnauer-Wandaufbau hohe Energieeffizenz und einen hervorragenden sommerlichen Hitzeschutz.
Ausführung gemäß aktueller Regnauer Bauleistungs- und Ausstattungsbeschreibung. Weitere Informationen auf www.regnauer.de. Abbildungen können Sonderausstattung zeigen. Wir legen großen Wert darauf, Ihr Vitalhaus ganz nach Ihren persönlichen Wünschen zu gestalten. Gemäß Ihren Wünschen und Ihrer Grundstückssituation ergibt sich dann ein exakter Festpreis für Ihr Traumhaus. Daher beziehen sich die Preise auf eine Vitalausstattung ohne spezifische Sonderausstattung.
Voraussetzung zur Erlangung der Bundesförderung für Effiziente Gebäude ist die Einhaltung der diesbezüglichen Förderrichtlinien. So wird hierfür unter anderem die Ausführung einer förderfähigen Haustechnik sowie die entsprechende Ausführung der bauherrenseitigen Leistungen (z.B. Keller und -ausbau) vorausgesetzt. Die Förderrichtlinien sind auch Änderungen unterworfen, sodass die Förderfähigkeit jeweils im Einzelfall geprüft und objektspezifisch durch das Förderinstitut bestätigt werden muss. Auch können einzelne Programme ausgesetzt oder verändert werden. Die Regnauer Hausbau GmbH & Co KG kann keine Finanzierungs- oder Förderberatung durchführen.
Merkmale
- Einliegerwohnung
Sie haben Interesse?
Laden Sie sich jetzt Ihr kostenloses Exposé zu diesem Haus herunter:
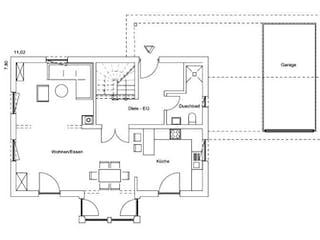
Grundrissfür Vitalhaus Bad Reichenhall
Grundrisse
Der Grundriss entspricht nicht Ihren Vorstellungen?
Passen Sie den Grundriss an Ihre persönlichen Bedürfnisse an und besprechen Sie Ihren individuellen Plan mit einem Bauberater des Anbieters.
Merkmale
Energiestandard und Förderung
Energiestandard
Effizienzhaus 40
Effizienzhaus 40 Plus
Dach
Dachform
Satteldach
Preisdetails für Vitalhaus Bad Reichenhall
Schlüsselfertig ab
481.000 €
ab 1.448,01 €
Dieser Preis ist ein Beispiel für den Anfang, ein Berater kann Ihnen ein detailliertes Angebot erstellen, das Ihren Bedürfnissen entspricht.
Möchten Sie bei Ihrem Projekt Geld sparen?
Durch einen Angebotsvergleich mit Bungalow.de können Sie bis zu 20 % Ihrer Baukosten sparen.
Über den Anbieter Regnauer Hausbau
Zum Anbieterprofil
Bewertungen
5,0
(1)

Bewertungen
5,0
1 BewertungHervorragend
Regnauer Hausbau in Zahlen
Gründungsjahr
1929
Häuser im Angebot
26
Häuser pro Jahr
ca. 100
Häuser gesamt
über 3.000
Mitarbeiter
250
Bewertungen von Regnauer Hausbau
Wir waren den Sommer über im Allgäu und haben...
Wir waren den Sommer über im Allgäu und haben dort diese wunderschönen Häuser bestaunen können! In unserer Phantasie wünschen wir uns auch schon länger solch ein tolles Haus.
07 Dez. 2025Elphi W.
Leistungsspektrum
Finanzierungsberatung
Preisgarantie
Bauzeit Garantie
Individuelle Planung
Blower Door Test
Persönliche Beratung für Ihre individuellen Wünsche
Finden Sie jetzt Ihren Ansprechpartner
Regnauer Hausbau
Auszeichnungen, Zertifikate & Mitgliedschaften






Ähnliche Häuser Für Vitalhaus Bad Reichenhall