




Vitalhaus Bayerisch Gmain von Regnauer Hausbau
Ab 572.475 €
Bewertungen von Regnauer Hausbau
5,0
(1)
Wohnfläche
170 m²
Zimmer
5
Ausbaustufe
Schlüsselfertig
Bauweise
Fertighaus
Energiestandard
Effizienzhaus 40 Plus
Dachform
Flachdach
Hausart
Einfamilienhaus
Beschreibung
Das Grundstück der Bauherren in Bayerisch Gmain hat eine Traumlage – im leicht hügeligen Tal bietet es phantastische Blicke auf das Bergmassiv des Alpennationalparks. Eine moderne, klare Architektursprache, die mit der eindrucksvollen Landschaft korrespondiert und diese aufgreift, wünschten die Auftraggeber. Regnauer entwickelte einen klaren Baukörper mit 173 Quadratmetern Wohnfläche.
Die Massivholz-Riegel-Konstruktion baut auf einer 310 bis 350 Millimeter starken Regnauer-Vitalwand mit einer leistungsstarken Holzfaserdämmung auf. Für die Fassade wurde ein weißer Strukturputz gewählt.
Stilbildende Transparenz
Leistenschalungen setzen optisch Akzente – ebenso wie doppelte Flügeltüren und große Fensterflächen, die den Neubau im Süden durchgehend über Erd- und Obergeschoss in die Landschaft öffnen. Im Innern ist offenes Wohnen angesagt: Die Räume für Wohnen, Essen und Kochen sind durch Glas-Schiebetür und zentral gelegenen Ofen gegliedert. Weiß ist die dominierende Farbe bei Wandgestaltung und Inneneinrichtung. Kühle Eleganz steht im Kontrast zum dunklen Holzboden und der Wendeltreppe aus Holz. Die Holzfaserdämmung der Wände schafft eine gesunde Raumluft und bietet neben höchster Energieeffizienz auch einen hervorragenden sommerlichen Hitzeschutz. Eine umlaufende Eck-Terrasse verlängert das Haus nach draußen in einen großzügigen Garten mit Spielbereich für das vierjährige Kind. Im Obergeschoss hat sich das Ehepaar eine häusliche Wellnessoase geschaffen: An das geräumige Bad schließt eine Sauna an. Je ein Arbeitszimmer im Erd- und Obergeschoss ist für die beiden Bewohner, die in leitender Position im Gesundheitswesen arbeiten, vorgesehen. Aufgrund ihres anstrengenden Alltags haben die Bauherren neben vielen praktischen Details wie etwa elektrischen Jalousien Wert vor allem auf die Vitalbauweise Wert gelegt. Die Haustechnik mit Gasheizung und Solarspeicher ist im Keller integriert worden, der auch einen großzügigen Hauswirtschaftsraum umfasst.
Ausführung gemäß aktueller Regnauer Bauleistungs- und Ausstattungsbeschreibung. Weitere Informationen auf www.regnauer.de. Abbildungen können Sonderausstattung zeigen. Wir legen großen Wert darauf, Ihr Vitalhaus ganz nach Ihren persönlichen Wünschen zu gestalten. Gemäß Ihren Wünschen und Ihrer Grundstückssituation ergibt sich dann ein exakter Festpreis für Ihr Traumhaus. Daher beziehen sich die Preise auf eine Vitalausstattung ohne spezifische Sonderausstattung.
Voraussetzung zur Erlangung der Bundesförderung für Effiziente Gebäude ist die Einhaltung der diesbezüglichen Förderrichtlinien. So wird hierfür unter anderem die Ausführung einer förderfähigen Haustechnik sowie die entsprechende Ausführung der bauherrenseitigen Leistungen (z.B. Keller und -ausbau) vorausgesetzt. Die Förderrichtlinien sind auch Änderungen unterworfen, sodass die Förderfähigkeit jeweils im Einzelfall geprüft und objektspezifisch durch das Förderinstitut bestätigt werden muss. Auch können einzelne Programme ausgesetzt oder verändert werden. Die Regnauer Hausbau GmbH & Co KG kann keine Finanzierungs- oder Förderberatung durchführen.
Sie haben Interesse?
Laden Sie sich jetzt Ihr kostenloses Exposé zu diesem Haus herunter:
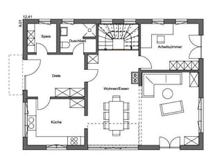
Grundrissfür Vitalhaus Bayerisch Gmain
Grundrisse
Der Grundriss entspricht nicht Ihren Vorstellungen?
Passen Sie den Grundriss an Ihre persönlichen Bedürfnisse an und besprechen Sie Ihren individuellen Plan mit einem Bauberater des Anbieters.
Merkmale
Energiestandard und Förderung
Energiestandard
Effizienzhaus 40
Effizienzhaus 40 Plus
Dach
Dachform
Flachdach
Preisdetails für Vitalhaus Bayerisch Gmain
Schlüsselfertig ab
572.475 €
ab 1.723,39 €
Dieser Preis ist ein Beispiel für den Anfang, ein Berater kann Ihnen ein detailliertes Angebot erstellen, das Ihren Bedürfnissen entspricht.
Möchten Sie bei Ihrem Projekt Geld sparen?
Durch einen Angebotsvergleich mit Bungalow.de können Sie bis zu 20 % Ihrer Baukosten sparen.
Über den Anbieter Regnauer Hausbau
Zum Anbieterprofil
Bewertungen
5,0
(1)

Bewertungen
5,0
1 BewertungHervorragend
Regnauer Hausbau in Zahlen
Gründungsjahr
1929
Häuser im Angebot
26
Häuser pro Jahr
ca. 100
Häuser gesamt
über 3.000
Mitarbeiter
250
Bewertungen von Regnauer Hausbau
Wir waren den Sommer über im Allgäu und haben...
Wir waren den Sommer über im Allgäu und haben dort diese wunderschönen Häuser bestaunen können! In unserer Phantasie wünschen wir uns auch schon länger solch ein tolles Haus.
07 Dez. 2025Elphi W.
Leistungsspektrum
Finanzierungsberatung
Preisgarantie
Bauzeit Garantie
Individuelle Planung
Blower Door Test
Persönliche Beratung für Ihre individuellen Wünsche
Finden Sie jetzt Ihren Ansprechpartner
Regnauer Hausbau
Auszeichnungen, Zertifikate & Mitgliedschaften






Ähnliche Häuser Für Vitalhaus Bayerisch Gmain